JBMC Arquitetura Lifts a Bold Orange Volume Above the Trees in Araraquara
A raised steel-and-timber house in interior São Paulo balances industrial structure with tropical domesticity and passive cooling.
In Araraquara, a mid-sized city in the interior of São Paulo state, JBMC Arquitetura e Urbanismo has built a house that refuses to hide behind its garden wall. The upper volume, wrapped in sliding orange panels and supported on an exposed steel frame, pushes itself above the canopy of mature trees that line the street. The result is a residence that reads simultaneously as an industrial object and a deeply comfortable tropical home, held together by an honest structural logic and a material palette that never pretends to be something it isn't.
What makes the project genuinely interesting is the way it negotiates between openness and enclosure. The ground floor dissolves into courtyards, planted beds, and a lap pool, while the upper level operates as a controlled environment of timber-lined rooms shielded by operable louvered shutters. A central double-height void stitches the two stories together with a steel-and-timber staircase, pulling natural light deep into the plan through clerestory windows. Every decision seems aimed at one outcome: letting the occupants dial the house between fully open and fully sheltered without ever losing contact with the landscape.
Street Presence and the Orange Screen



The front facade is the strongest move the house makes. Sliding panels in a saturated orange create a kinetic surface that changes character depending on how far they are drawn open. Behind them, large windows and a steel gate compose a second, more permanent layer. The color choice is deliberate and unapologetic: against the green canopy of the existing trees, the orange reads as warm rather than aggressive, a terracotta tone that roots the house in a regional material tradition even as its steel skeleton pulls it toward something more contemporary.
From the upper balcony, black louvered shutters add a third operable layer. The house essentially has three skins at this elevation: solid wall, louvered screen, sliding panel. Each responds to a different condition of light, heat, or privacy. It is a layered approach common in tropical architecture, but here it is expressed with unusual precision and an almost graphic clarity.
The Double-Height Core



The heart of the house is its double-height void. An open-tread timber staircase rises through this space, braced by exposed steel diagonals that are left proudly visible. Above, clerestory windows and a skylight flood the core with diffused light, which bounces off the timber ceiling planks and filters down to the ground-floor living areas. The effect is generous without being grandiose: the proportions feel more like a well-scaled studio than a trophy atrium.
Structurally, the diagonal bracing does real work, stiffening the steel frame against lateral loads while also giving the interior its visual rhythm. JBMC treats structure as decoration and decoration as structure, a position that keeps the interiors honest and avoids the awkwardness of concealed engineering. The timber planks of the ceiling, the steel columns, the glass guardrails on the mezzanine all read as components of a single legible system.
Staircase and Mezzanine as Social Infrastructure



The staircase itself deserves separate attention. Open timber treads are supported by a steel stringer, with glass guardrails that keep the visual field continuous. From the mezzanine, you look down into the living space and across to the planted courtyard visible through full-height glazing. The walkway that connects the upper rooms is lined with open timber cabinets, turning circulation into storage without cramming it into a corridor.



The mezzanine functions less as a hallway and more as a lookout. It is wide enough to pause in, furnished with seating in places, and framed by the timber guardrail that runs its full length. A central doorway on the upper level frames the view straight through to the screened balcony, setting up a visual axis that connects interior depth to exterior sky. The wood-paneled storage wall beneath the clerestory skylight completes the composition, giving the mezzanine its own enclosed character distinct from the open void it overlooks.
Ground Floor: Kitchen, Courtyard, Pool



At ground level, the house opens outward in every direction. The kitchen and dining area sit beneath the mezzanine, with a long timber table positioned under exposed steel beams. Sliding glass walls retract to merge the interior with a rear courtyard filled with tropical planting, and a narrow lap pool runs along one edge of the site, bordered by a dense planted bed. The relationship between inside and outside is not metaphorical here. It is literal: when the glass is open, the dining table is functionally outdoors.
The courtyard at the rear shows the elevated volume from below, its louvered shutters and planted beds creating a secondary facade that is quieter and more domestic than the orange street front. Terracotta pavers laid in gravel paths weave through side gardens, softening the transition between built surface and soil. The material palette at ground level leans earthy: terracotta, gravel, timber, and foliage.
Upper Rooms: Shelter Within the Canopy



The bedrooms occupy the upper level, arranged around the central void. Each opens through sliding glass doors to a balcony or terrace, where louvered shutters control the intake of light and breeze. The effect is of sleeping within the tree canopy itself: palm fronds fill the frame of every window, and the timber ceilings overhead extend the warm materiality into even the most private rooms. Steel columns are left exposed at the edges, reminding you that this is a lifted object, not a rooted one.



Upper-level living spaces take advantage of their elevation. A seating area framed by timber beams and steel columns looks out over the treetops, while the screened balcony acts as a buffer zone between conditioned interior and open sky. Diagonal steel bracing reappears here, giving the upper volume its structural stiffness and its visual identity. Sliding glass doors throughout allow the floor plan to flex between an enclosed suite and a breezy pavilion.
Material Discipline: Timber, Steel, Terracotta



The material palette is tight: timber planks, steel sections, terracotta tiles, and glass. In the dining area, a sliding timber wall allows the space to expand or contract. In the bathrooms, circular mirrors and timber paneling sit on terracotta tile floors beneath angled skylights, achieving a warmth that most contemporary houses struggle to find. The consistency is the point. Every surface belongs to the same family, so the house reads as a single gesture rather than a collection of rooms.
The skylight over the bathroom is a small detail that reveals the architects' care. Its angled glazing washes light across the timber wall and down onto the terracotta, producing a gradient of tone that changes throughout the day. It is a passive strategy that also happens to be beautiful, which is exactly the kind of overlap that makes buildings like this worth studying.
Gardens and In-Between Spaces



Between the house's defined rooms lies a series of ambiguous thresholds: side gardens paved in terracotta, the rear courtyard with its planted beds, and clerestory bands that perforate the ceiling to bring light into transitional zones. These are not leftover spaces. They are designed with the same attention as the living room. The terracotta paver path through the side garden, laid in gravel, is a deliberate landscape move that slows you down and gives the boundary wall purpose as a backdrop.
The perforated ceiling panels visible beneath the clerestory strip are a quiet technical achievement. They diffuse light and likely contribute to acoustic comfort in the double-height volume, but they also texture the ceiling surface in a way that prevents the large interior from feeling cavernous. JBMC handles scale carefully: every expansive move is counterbalanced by an intimate detail.
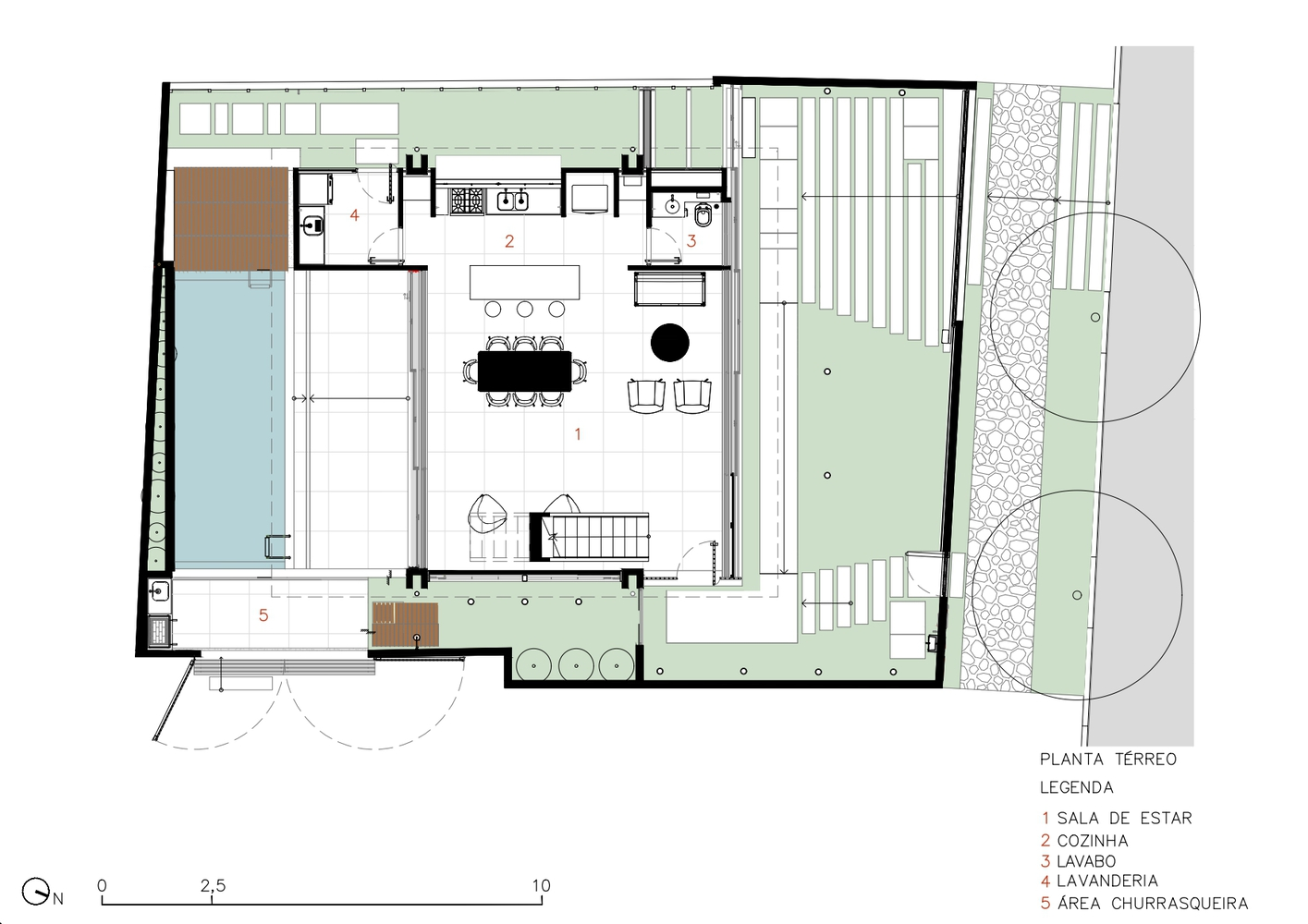
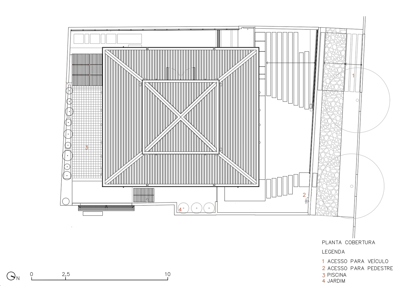
Plans and Drawings





The ground floor plan confirms what the photographs suggest: the living areas are arranged around a central void with the pool and courtyard pulling the plan toward the rear of the site. Existing trees on the street side are preserved and integrated as part of the spatial strategy. The first floor plan shows bedrooms organized around the double-height opening, each with balcony access, while the central stairwell acts as the pivot. The sections reveal the stacked logic most clearly: a grounded base, a lifted upper volume, and a hipped roof that caps the composition with a traditional silhouette that belies the industrial frame beneath.
Why This Project Matters
The Araraquara House matters because it demonstrates that tropical passive strategies and industrial construction are not opposing ideas. The exposed steel frame, the operable screens, the central void with its clerestory: these are all performance-driven decisions that also define the house's character. JBMC does not apply sustainability as a veneer. It builds the environmental logic into the bones of the project and lets the aesthetic follow.
It also matters as a proposition about identity. In a Brazilian interior city where residential architecture often defaults to either imported minimalism or conventional masonry, this house carves out a third position. The orange panels, the timber ceilings, the terracotta floors all draw from a regional palette, but they are deployed within a structural system that belongs to a contemporary global practice. The house is specific to its place without being nostalgic about it, and that balance is harder to achieve than it looks.
Araraquara House by JBMC Arquitetura e Urbanismo. Location: Araraquara, São Paulo, Brazil. Category: Residential.
About the Studio
Share Your Own Work on uni.xyz
If projects like this are the kind of work you want to make, uni.xyz is a place to publish your own, find collaborators, and enter design competitions.
Popular Articles
Popular articles from the community
YOAP Architects Round a Corner in Yeongcheon with a Cylindrical Community Hub
A 197-square-meter brick and ribbed-clad tower turns a forgotten alley corner in South Korea into a public garden with a low threshold.
RDTH architekti Rips Out Nearly Every Wall in a Prague Apartment and Replaces Them with Furniture
A 101-square-meter post-war flat in Prague trades rigid partitions for a single rotated furniture block, curtains, and glass concrete.
20 Most Popular Office Building Projects of 2025
From biophilic workspaces in India to net-positive energy offices in New Delhi, 20 office building projects that defined architecture in 2025.
Takeshi Hosaka Architects Suspends a Concrete Cross Above a Yokohama Cemetery
A 28-square-meter burial renovation in Yokohama lifts the symbol of resurrection into the sky so mourners see it against heaven.
Similar Reads
You might also enjoy these articles
Olio Towers: A Mid-Rise for Performers That Fuses Housing, Rehearsal, and Stage
Located blocks from Houston's Theater District, this modular tower stacks living units around a central performance atrium.
Oasis: Modular Green Housing Carved into Dhaka's Urban Fabric
A shortlisted Plugin Housing entry reclaims unauthorized settlements in Dhaka with stepped concrete volumes, green roofs, and ventilation-driven design.
Black Hole: A Floating Megastructure for the Post-Physical Era
Emiliano Mazzarotto envisions a spherical, self-scaling arena where e-sports, digital hotels, and holographic stadiums replace traditional public space.
Compact & Sustainable Living in Piraeus: A Four-Level Family Home Built Around Light and Air
A narrow townhouse in one of Greece's densest port cities uses a central atrium and passive strategies to house three generations under one roof.
Explore Architecture Competitions
Discover active competitions in this discipline
The International Standard for Design Portfolios
The Global Benchmark for Architecture Dissertation Awards
The Global Benchmark for Graduation Excellence
Challenge to reimagine the Iron Throne
Comments (0)
Please login or sign up to add comments
No comments yet. Be the first to comment!