AMASA Estudio Carves a Garnet-Red Art Studio from a Coyoacán Rooftop
A 52-square-meter upper floor in Mexico City becomes a light-filled painting and jewelry workshop framed in bold ironwork.
There is a particular kind of renovation that only makes sense when you understand the person who will inhabit it. The Daniela Riquelme Studio Workshop, completed in 2024 by AMASA Estudio, takes the cramped upper floor of a house in central Coyoacán and turns it into a precisely calibrated workspace for painting, jewelry making, and exhibition. The original space failed on two counts: not enough room and not enough light. Rather than relocate, the architect and artist chose to fundamentally rethink the floor's relationship to the sky, the street canopy, and the work itself.
What makes the project worth studying is the economy of its ambition. At just 52 square meters, every element pulls double duty. A sawtooth roof washes indirect eastern light across walls meant to display art. A rotating window frame ventilates the room while serving as a compositional gesture in garnet red ironwork, a color drawn directly from Riquelme's own artistic palette. The pre-existing spiral staircase, rather than being demolished, becomes the spatial hinge that organizes everything. It is a renovation that refuses to treat constraint as a limitation.
The Spiral Stair as Spatial Hinge


The spiral staircase was already there. Tearing it out would have been expensive and structurally complicated, so AMASA Estudio did the smarter thing: they made it the organizational spine. Ascending the stair, you land in a circulation zone beneath a skylight that throws light down through a grated metal platform to the public rooms on the floor below. To one side lies the open studio with terrace access. To the other, a more enclosed zone for focused work and a full bathroom.
The decision to let the stair dictate the plan's geometry rather than fight it is the kind of pragmatism that separates good renovation work from indulgent ones. The grated platform is a particularly clever detail: it transforms a narrow corridor into a light well, making the staircase not just a passage but an active contributor to the building's environmental performance.
Garnet Red and the Identity of Color



The garnet red ironwork is impossible to ignore, and that is the point. AMASA Estudio selected the color not from a material sample board but from Riquelme's own paintings and artistic production. It appears on window frames, portal-like thresholds, tubular railings, and the terrace doors, creating a visual thread that stitches every room together. Against the white plaster walls and the warm tones of plywood, the red reads as both structural punctuation and artistic declaration.
Color in architecture often gets treated as finish, applied at the end. Here it functions as identity. Walk through the layered red portal frames and you understand immediately whose studio this is. The choice also links the interior to the cultural fabric of Coyoacán itself, a neighborhood where strong color has always been a form of civic expression.
Engineering Light for an Artist's Eye


The original upper floor was too dark for serious painting, and any artist will tell you that the quality of light is not negotiable. AMASA Estudio responded with a sawtooth roof incorporating three overhead openings oriented east to capture indirect morning light. The sawtooth profile, borrowed from industrial architecture, prevents direct glare and harsh shadows: precisely the conditions needed for evaluating color on canvas or for displaying finished work.
A large east-facing window was added by expanding an existing opening, and its frame includes a weather-vane mechanism that rotates on a central axis to enable cross-ventilation. This is passive design with real rigor. Rather than relying on mechanical systems, the studio breathes through the window, while the skylight above the staircase creates a vertical stack effect that further encourages airflow. For a 52-square-meter space, the environmental strategy is surprisingly layered.
Custom Carpentry as Workflow Infrastructure


A long plywood carpentry unit runs along one wall of the private section, integrating shelving, a drafting table, pull-out drawers, and a workbench with a built-in sink. The sink sits in the rear zone, which was expanded from the original floor plan to accommodate it. Nothing about this furniture is generic. Each element corresponds to a specific step in Riquelme's dual practice of painting and jewelry making, from material storage to finishing and cleanup.
The carpentry's material consistency matters as much as its functionality. Plywood panels wrap around the walls and ceiling in places, creating a warm interior shell that contrasts with the cool white plaster and the sharp red iron. The result feels deliberate without being precious: a working studio, not a showroom.
Terrace and the Coyoacán Canopy


The studio's terrace offers views directly into the treetops that line Coyoacán's streets. Framed by the red ironwork doors, this outdoor platform is small but powerful. It extends the studio's footprint without adding built area and gives the artist a visual release point from concentrated work. The trees read almost as collaborators, shifting with season and weather, providing the kind of changing visual texture that no wall finish can replicate.
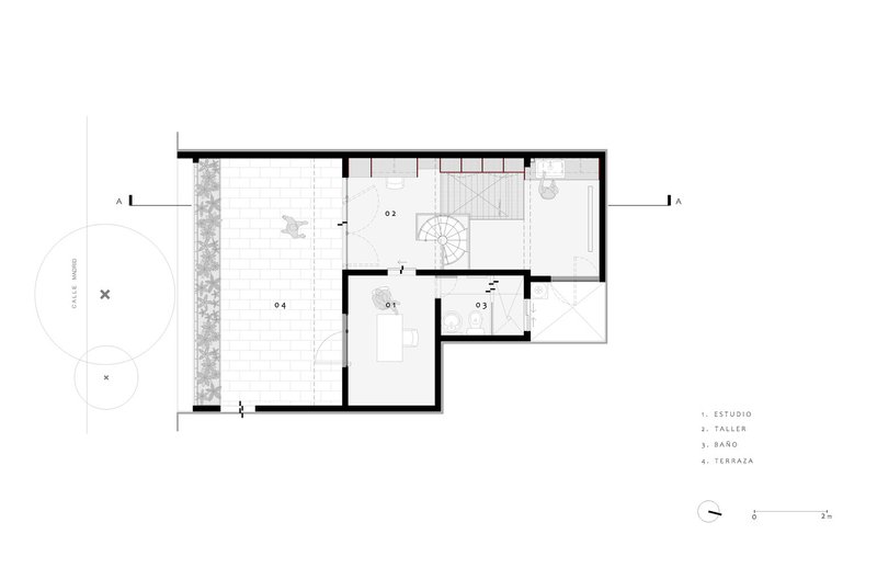
Plans and Drawings



The floor plan reveals the clarity of the spatial strategy: the spiral stair sits almost dead center, dividing the studio zone from the service zone. The section drawing shows how the sawtooth roof creates multiple light planes at different angles, while the skylight above the stair generates a vertical light shaft. The axonometric drawing is especially useful for understanding how the floors, stairs, and roof structure interlock, making visible the careful three-dimensional thinking that holds such a compact project together.
Why This Project Matters
Renovation projects of this scale rarely receive serious architectural attention, and that is a problem. The vast majority of built work in cities like Mexico City is not new construction but the incremental transformation of existing buildings. AMASA Estudio's approach here demonstrates that intelligence in architecture is not proportional to budget or square footage. Fifty-two square meters, a pre-existing staircase, and a clear understanding of one person's creative process produced a space that is functionally rigorous and visually compelling.
The project also raises a broader question about personalization in architecture. In an era of flexible coworking spaces and generic live-work units, there is something radical about building a room that only fully works for one person. The garnet red is Daniela Riquelme's red. The carpentry maps her specific workflow. The light is calibrated to her medium. That level of specificity is not a limitation; it is the definition of architecture at its most attentive.
Daniela Riquelme Studio Workshop by AMASA Estudio, Coyoacán, Mexico City, Mexico. 52 sq m. Completed 2024. Photography by Zaickz Moz.
About the Studio
Share Your Own Work on uni.xyz
If projects like this are the kind of work you want to make, uni.xyz is a place to publish your own, find collaborators, and enter design competitions.
Popular Articles
Popular articles from the community
3dor Concepts Wraps a Kerala Home in Mirrored Concrete Arcs Around a Courtyard Tree
In the Western Ghats foothills of Thamarassery, a 270 m² single-story house uses two curved volumes to frame nature as its center.
Rojkind Arquitectos and Think Parametric Build a Glueless Pavilion from 67 Interlocking Panels
A serpentine fiber-cement installation in Chapultepec Park celebrates a decade of architectural media in Mexico City.
Takeshi Hosaka Architects Suspends a Concrete Cross Above a Yokohama Cemetery
A 28-square-meter burial renovation in Yokohama lifts the symbol of resurrection into the sky so mourners see it against heaven.
YOAP Architects Round a Corner in Yeongcheon with a Cylindrical Community Hub
A 197-square-meter brick and ribbed-clad tower turns a forgotten alley corner in South Korea into a public garden with a low threshold.
Similar Reads
You might also enjoy these articles
Olio Towers: A Mid-Rise for Performers That Fuses Housing, Rehearsal, and Stage
Located blocks from Houston's Theater District, this modular tower stacks living units around a central performance atrium.
Oasis: Modular Green Housing Carved into Dhaka's Urban Fabric
A shortlisted Plugin Housing entry reclaims unauthorized settlements in Dhaka with stepped concrete volumes, green roofs, and ventilation-driven design.
Black Hole: A Floating Megastructure for the Post-Physical Era
Emiliano Mazzarotto envisions a spherical, self-scaling arena where e-sports, digital hotels, and holographic stadiums replace traditional public space.
Compact & Sustainable Living in Piraeus: A Four-Level Family Home Built Around Light and Air
A narrow townhouse in one of Greece's densest port cities uses a central atrium and passive strategies to house three generations under one roof.
Explore Architecture Competitions
Discover active competitions in this discipline
The International Standard for Design Portfolios
The Global Benchmark for Architecture Dissertation Awards
The Global Benchmark for Graduation Excellence
Challenge to reimagine the Iron Throne
Comments (0)
Please login or sign up to add comments
No comments yet. Be the first to comment!