Awa Bank's New Flagship Branch Embodies Sound Management with Innovative Design
Redefining the Future of Brick-and-Mortar Bank Branches
In a world where fintech and new financial services are rapidly changing the landscape of banking, what role can traditional bank branch buildings play in a sustainable regional city? Awa Bank sought to answer this question with their new flagship branch in Japan, which embodies the spirit of "Sound Management" that has underpinned the bank's 123-year history.

After a year of discussions, Awa Bank realized that "partnership" for those who share their values was the key to creating a sustainable bank branch. This led to the creation of a public space at the center of the building that could attract not only current customers but also local residents and tourists. By doing so, Awa Bank aimed to create a "win-win-win" relationship between customers, the community, and the bank.

To embody their motto of "Sound Management," Awa Bank's new flagship branch sought an architecture that followed basic truths and principles, paid respect to clients' trust, and preserved tradition while challenging the future. The design's "purity" was achieved through a modular design and clean structural façades that eliminated any incongruent materials locked into the frame.

The exterior of the building is set back to create depth and draw in the activities of the adjacent shopping arcade. Different floor levels are exposed to reveal the movement that occurs inside. Awa Bank's new flagship branch creates an architecture with a rich spatial duality where the "dignity" of the flagship office and the "liveliness" of the public coexist.


Activity Design for a Human-Centered Space
Architecture takes on meaning only when people are involved, and this was a central focus of Awa Bank's new flagship branch. The goal was to sublimate architecture in a comfortable, human space by designing furniture and other elements that people touch and that determine their behavior.
Furniture design was based on the project's architectural modules, imbuing a sense of unity while focusing on the way people face each other in its angular orientation. Furniture is arranged at an angle, providing a calm personal space where people are not compelled to gaze directly at each other. The goal was to create an interior that would allow visitors to see and feel regional materials and craftsmanship and to feel proud of their hometown.


Creating a Compelling Walkaround Tour
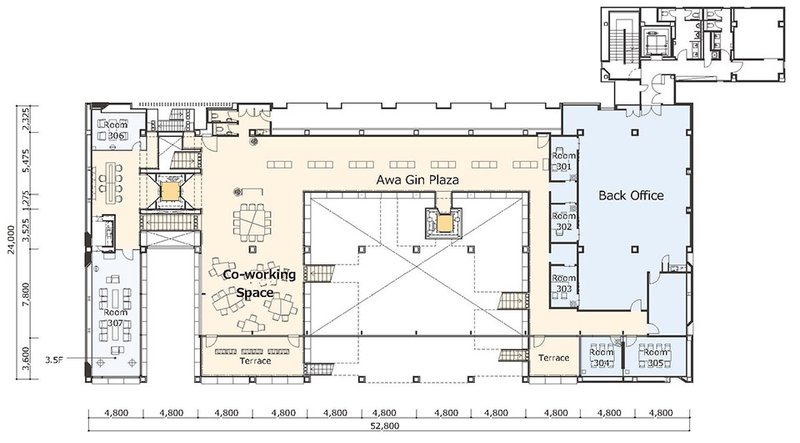
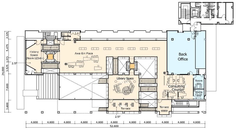
The layout of Awa Bank's new flagship branch enables each half-floor to be connected to the next, creating a structure with a high degree of circulation without dead-ends, compelling visitors to circle the premises in search of "new encounters." The bank's new counter services were re-assigned into speedy "quick services" and more knowledge/skill-based "personal services," developed on different floors.


Public functions connected these services, including a "library space" to facilitate reading, a "co-working space" for businessmen and students to meet, and the "Awa Bank Plaza," a citizen's gallery with a history dating back more than 20 years. These areas are scattered throughout the building. The design intent was to provide "incidental new encounters" that would expand the aspirations of both people who do business with the bank and those who do not.



Awa Bank's new flagship branch in Japan redefines the future of brick-and-mortar bank branches. It embodies the bank's history, values, and commitment to sound management with innovative design that creates a comfortable, human space where people can gather, work, and socialize.




















Building name: Awa Bank Head Office Sales Department Building
Location: Tokushima City, Japan
Building use: Office
Building owner: The Awa Bank, Ltd.
Architect: Nikken Sekkei (design & supervision)
Floor area: 1,775.14 m²
Extended bed area: 4,974.08 m²
Number of floors: one underground, four above ground
Maximum height: 21.918 meters
Main structure: Steel structure
Completion date: November 2019
Construction period: March 2018 – November 2019
Contractor: TAKENAKA CORPORATION
Photographer: FUMITO Studio KZUKI Photo
Popular Articles
Popular articles from the community
Flamboyant House by Juliana Camargo + Prumo Projetos
Modern Brazilian house integrating existing tree, pool, and volumes with glass, wood, and transitional spaces blending interior, exterior, and landscape seamlessly.
Louis Malle Cinema: A Limestone Cultural Landmark Revitalizing Community Life in Prayssac
Limestone cinema extension with public forecourt, blending heritage and modern design to create flexible cultural spaces and strengthen community interaction.
A Contemporary Take on Iranian Residential Architecture
A modern interior design in Mashhad that reinterprets brick, light, and spatial flow to create a warm, contemporary residential architecture.
Atelier Macri Concept Store Interior Design by CASE-REAL
Atelier Macri store features a "ko" counter, walnut wood details, cork displays, blending retail, gallery, and seamless customer experiences.
Similar Reads
You might also enjoy these articles
Zhuxi Wonderland: Reimagining Traditional Chinese Gardens by Doarchi Architects
Zhuxi Wonderland by Doarchi Architects reinterprets traditional Yangzhou gardens, integrating courtyards, pavilions, and tea houses in modern cultural design.
Doble Soga House: A Contemporary Brick Residence Rooted in Landscape in Quito, Ecuador
Brick house in Quito integrating nature, flexible living spaces, exposed materials, and rooftop terrace, creating warm contemporary architecture for modern family life.
Al Gharra Mosque in Medina Redefining Contemporary Islamic Architecture
Minimalist Medina mosque using concrete, light, and landscape to reinterpret Islamic worship spaces through symbolic spiritual transitions and contemporary architecture.
Viczonecode Villa by DDconcept – Tropical Family Living in Ho Chi Minh City
Tropical family villa in Ho Chi Minh City featuring courtyards, skylights, natural ventilation, elevated flooring, and seamless indoor–outdoor living surrounded by greenery.
Comments (0)
Please login or sign up to add comments
No comments yet. Be the first to comment!