Baroneza XI Residence by Gui Mattos: A Masterpiece in Contemporary Brazilian Architecture
This article explores the Baroneza XI Residence by Gui Mattos, showcasing its sustainable design, natural integration, and architectural brilliance.
The Baroneza XI Residence, designed by renowned architect Gui Mattos, is an architectural gem located in Bragança Paulista, Brazil, approximately 70 kilometers from São Paulo. Completed in 2020, this 10,667-square-foot residence exemplifies the harmonious blend of modernity and nature. Its thoughtful design, innovative use of materials, and meticulous spatial organization make it a standout example of contemporary Brazilian architecture.

Location and Context
Nestled within the lush greenery of the interior of São Paulo, the Baroneza XI Residence is strategically positioned on the front portion of its lot. The natural surroundings play a crucial role in shaping the residence's aesthetic and functional aspects, creating a seamless dialogue between built spaces and the environment.

Architectural Concept and Spatial Organization
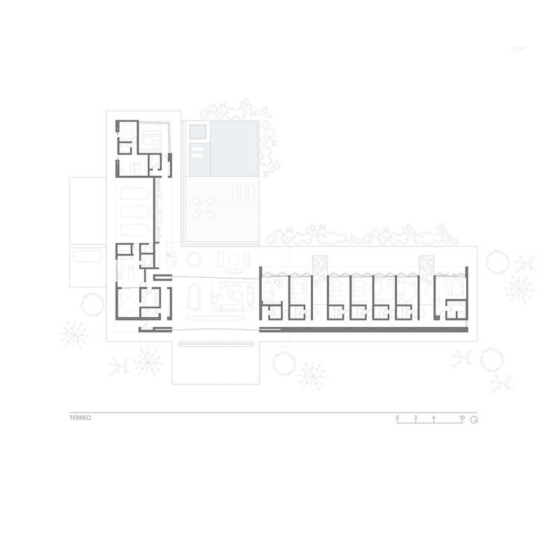
The residence’s layout is rooted in simplicity and efficiency. The design features an L-shaped plan that divides the space into distinct functional areas:
Intimate Sector
The north-facing volume houses the private spaces, ensuring privacy and comfort for the residents. This orientation allows for optimized natural lighting and ventilation while maintaining thermal comfort.

Service and Utility Areas
Located on the eastern elevation and facing the back of the lot, the service areas are discreetly integrated into the design. This separation ensures a clear distinction between public and private functions within the residence.
Central Meeting Space
At the heart of the Baroneza XI Residence is a central meeting space that connects the private and service areas. This zone features a striking 14-meter span, accentuated by an extensive metal shelf that serves as both a functional and aesthetic element. Acting as a folding screen, the shelf is detached from the floor, walls, and ceiling, creating a sense of lightness and transparency.


Facade and Materiality
The front facade of the residence exudes minimalism and privacy. The rectangular box-like volume, devoid of windows on the front elevation, is punctuated by zenithal openings that provide natural lighting. These openings are strategically positioned along the intimate circulation corridor and at the entrance of each access point.
The facade’s material palette is dominated by stone wood and white mortar, creating a continuous surface that enhances the structure’s aesthetic purity. This design choice not only protects against excessive sun exposure but also maintains the residents' privacy.


Integration with Nature
In contrast to the closed and dense front elevation, the south-facing volumes open generously to the surrounding garden and forest. Wooden panels and large windows create a rhythmic interplay of light and shadow, inviting the outdoors into the interior spaces. The integration of vegetation is a defining feature of the Baroneza XI Residence, with greenery infiltrating the bedrooms and communal areas, enriching the interior with vibrant colors and natural light.

Sustainability and Environmental Considerations
The residence’s design reflects a commitment to environmental sustainability. The use of natural materials, efficient spatial organization, and strategic orientation minimizes energy consumption while maximizing comfort. The elevated ground implantation further enhances thermal performance and protects the structure from excessive moisture.

Interior Design and Furnishings
The interior spaces of the Baroneza XI Residence are marked by their understated elegance. Furniture from prestigious manufacturers such as Arteal, Carlos Motta, and Estúdio Bola complements the architectural design. The use of natural textures, such as wood and stone, reinforces the connection between the indoors and outdoors.



The Baroneza XI Residence by Gui Mattos is a testament to the transformative power of architecture. Its thoughtful integration of form, function, and nature creates a living environment that is both serene and inspiring. From its minimalist facade to its lush, light-filled interiors, the residence embodies the essence of contemporary Brazilian design.


All Photographs are work of Maíra Acayaba
Popular Articles
Popular articles from the community
Inverted Architecture Installation by Studio Link-Arc: Exploring the Intersection of Architecture and Living Organisms
Inverted Architecture Installation by Studio Link-Arc blends mycelium, sustainability, inverted design, ecological cycles, and urban adaptive architecture in Shenzhen.
The Ken Roberts Memorial Delineation Competition (Krob)
As the most senior architectural drawing competition currently in operation anywhere in the world, it draws hundreds of entries each year, awarding the very best submissions in a series of medium-based categories.
Free Architecture Competitions You Can Enter Right Now
No entry fees, real prizes. Here are the best free architecture competitions open for submissions in 2026.
Alton Cliff House: A Harmonious Retreat by f2a Architecture in Lake Country, Canada
Alton Cliff House blends corten steel, prefabrication, and sustainable design, creating a luxurious, energy-efficient retreat perched on Canadian cliffs.
Similar Reads
You might also enjoy these articles
The Ken Roberts Memorial Delineation Competition (Krob)
As the most senior architectural drawing competition currently in operation anywhere in the world, it draws hundreds of entries each year, awarding the very best submissions in a series of medium-based categories.
Waterfront Redevelopment and Urban Revitalization in Mumbai: Forging a New Dawn for Darukhana
A transformative waterfront redevelopment project reimagining Darukhana’s shipbreaking heritage into an inclusive urban future.
OUT-OF-MAP: A Call for Postcards on Feminist Narratives of Public Space
Rhizoma Design and Research Lab invites artists, designers, architects, researchers, and students to reflect on how feminist perspectives can reshape public space. Selected works will be exhibited in Barcelona, October 2026. Submissions open until 15 April 2026.
Documentation Work on Buddhist Wooden Temple
Architectural syncretism and cultural hybridity: A comparative study of the Buddhist temples in Chattogram Hill tracks
Explore Architecture Competitions
Discover active competitions in this discipline
The International Standard for Design Portfolios
The Global Benchmark for Architecture Dissertation Awards
The Global Benchmark for Graduation Excellence
Challenge to reimagine the Iron Throne
Comments (0)
Please login or sign up to add comments
No comments yet. Be the first to comment!