Biophilic Office Design: Revolutionizing Workspaces at Forward Group Headquarter Office by Studio 10
Discover the transformation of Forward Group's headquarters by Studio 10 into a biophilic office design that mimics an indoor park.
In the bustling urban setting of Shenzhen's OCT Loft Creative Park, Studio 10 has transformed a traditional industrial space into a thriving biophilic office for the Forward Group. This project exemplifies how biophilic design principles can be integrated within an office setting to foster a productive and invigorating environment for a youthful, dynamic team.


What is Biophilic Office Design?
Defining Biophilic Design
Biophilic design involves integrating natural elements into the built environment to connect occupants more closely with nature. This approach has been shown to reduce stress, enhance creativity, and improve overall well-being.



Benefits for Workspaces
Incorporating biophilic design in offices can significantly boost employee satisfaction and productivity. Natural light, vegetation, and open spaces encourage a healthier and more dynamic workplace, reducing burnout and enhancing employee morale.


Implementation at Forward Group Headquarter Office
Design Philosophy
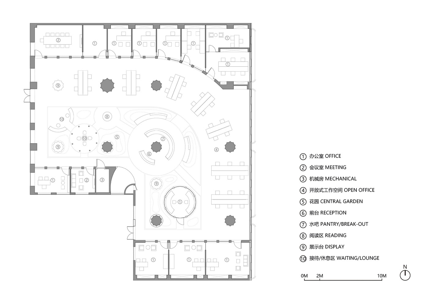
The design by Studio 10 was guided by the concept of "parks" as man-made natural spaces. The architects aimed to disrupt the conventional office layout by creating an interior that mimics the outdoor environment, complete with natural light, air flow, and greenery.


Spatial Layout and Features
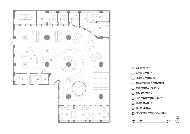
Creating a Central Green Zone
The heart of the office is a central green zone designed as an indoor park. This area serves as a flexible space for open offices, break-out areas, and reception, surrounded by high partitions that simulate the outdoors within an indoor setting.


Integration of Natural Elements
The office features undulating hills, gazebos, and pathways that enhance the park-like atmosphere. These elements are not just decorative but functional, serving various needs from informal meeting points to relaxation zones.


Material and Aesthetic Choices
Use of Sustainable Materials
Sustainability was a key consideration in material selection, with a focus on natural and eco-friendly options. This not only supports the biophilic design but also aligns with the company’s commitment to environmental stewardship.


Visual and Sensory Experience
The use of stone pathways, sports turf, and strategic lighting mimics outdoor conditions. Adjustable lighting in communal areas replicates the shifting nuances of daylight, transitioning into warmer tones for evening events, creating a vibrant social hub.


Impact on Employee Experience and Corporate Culture
Enhancing Well-being and Productivity
The biophilic design of Forward Group's headquarters significantly contributes to employee well-being, making the workplace a more enjoyable and health-promoting environment. This has direct positive effects on productivity and job satisfaction.


Reflecting Corporate Identity
The design reflects the company's identity, which is deeply connected to outdoor sports and activities. The office space embodies this ethos, promoting an active, flexible, and innovative workplace culture.

The Interior Design of Forward Group Headquarter Office by Studio 10 is a pioneering example of biophilic office design. It showcases how workplaces can be transformed into lively, health-promoting environments that enhance employee well-being and reflect corporate values. This project sets a benchmark for future office designs, proving that workspaces can be both functional and closely connected to nature.


All photographs are work of Chao Zhang
Popular Articles
Popular articles from the community
20 Most Popular Commercial Architecture Projects of 2025
From sustainable market concepts to heritage factories, the commercial buildings and proposals that drew the most attention on uni.xyz this year.
Free Architecture Competitions You Can Enter Right Now
No entry fees, real prizes. Here are the best free architecture competitions open for submissions in 2026.
Filtering Space: A Gradual Spatial Experience
From urban intensity to spatial calm.
Magic Box Office Barcelona Innovative Sustainable Workplace Design
Innovative sustainable office design featuring triangular form, ceramic façade, flexible interiors, natural light optimization, and creative workspace for modern work culture.
Similar Reads
You might also enjoy these articles
Filtering Space: A Gradual Spatial Experience
From urban intensity to spatial calm.
The Ken Roberts Memorial Delineation Competition (Krob)
As the most senior architectural drawing competition currently in operation anywhere in the world, it draws hundreds of entries each year, awarding the very best submissions in a series of medium-based categories.
Waterfront Redevelopment and Urban Revitalization in Mumbai: Forging a New Dawn for Darukhana
A transformative waterfront redevelopment project reimagining Darukhana’s shipbreaking heritage into an inclusive urban future.
OUT-OF-MAP: A Call for Postcards on Feminist Narratives of Public Space
Rhizoma Design and Research Lab invites artists, designers, architects, researchers, and students to reflect on how feminist perspectives can reshape public space. Selected works will be exhibited in Barcelona, October 2026. Submissions open until 15 April 2026.
Explore Office Building Competitions
Discover active competitions in this discipline
The International Standard for Design Portfolios
The Global Benchmark for Architecture Dissertation Awards
The Global Benchmark for Graduation Excellence
Challenge to reimagine the Iron Throne
Comments (0)
Please login or sign up to add comments
No comments yet. Be the first to comment!