Biophilic Office Design – The Jellicoe Workspace by Universal Design Studio
The Jellicoe Workspace redefines biophilic office design, blending nature, sustainability, and adaptable spaces to support wellbeing and modern work culture.
Introduction to The Jellicoe Workspace
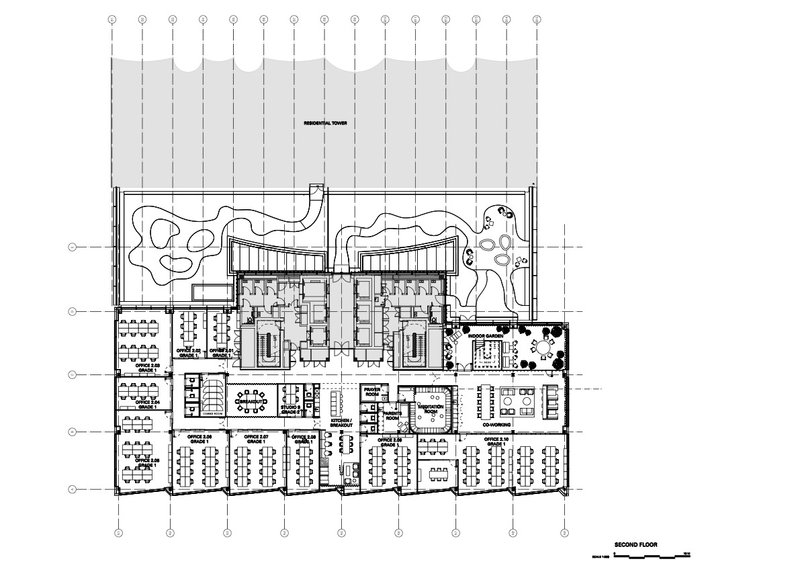
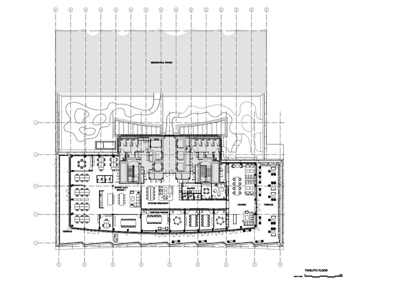
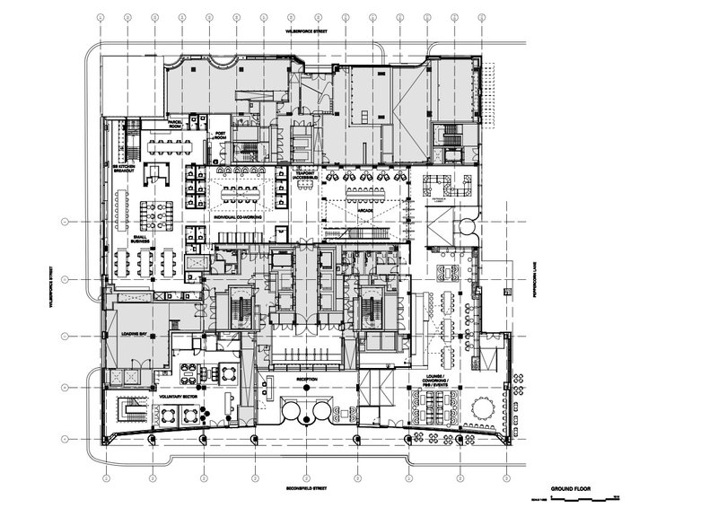
In the heart of London’s King’s Cross redevelopment stands The Jellicoe Workspace — a biophilic office design by Universal Design Studio, developed in collaboration with Fora and the King’s Cross Estate. Spanning 12,450 square meters, this destination workspace reimagines the modern office as a series of distinct “worlds within a world,” offering an adaptable and human-focused environment for the evolving needs of contemporary professionals.
A New Concept for the Modern Workplace
The design moves beyond traditional corporate layouts by borrowing from hospitality, cultural, and wellness spaces. Each zone has its own character and function, accommodating everything from focused work to social gatherings and quiet reflection. The public townhall “world” is a prime example — with its adaptable grid ceiling and flexible furnishings, it effortlessly transforms between café, co-working lounge, and event venue.


Cinematic Flow and Sensory Experience
As users move through the workspace, they encounter a cinematic sequence of environments that encourage behavioural shifts. Textural contrasts, varied layouts, and curated materials — from Søuld eelgrass acoustic panels to PineSkins wall coverings — stimulate the senses. A meditation room, wrapped in timber and lavender-scented wallpaper, provides a cocoon-like escape from the pace of daily work.

Cohesion Across Diverse Spaces
While each zone has a unique identity, coherence is achieved through recurring design elements, such as ash joinery and a consistent grid-based architectural language. These details unify the overall experience while preserving the individuality of each setting.

Sustainability at the Core
Sustainability shapes every aspect of The Jellicoe Workspace. Natural, low-impact finishes like linoleum flooring and raw Clayworks walls ensure durability and environmental responsibility. Ash timber, repurposed from trees felled due to Ash Dieback, forms much of the joinery. Modular components future-proof the building, allowing spaces to evolve and adapt without unnecessary waste, in line with circular design principles.



Biophilic Integration and Wellbeing
Biophilic design is central to the project’s philosophy. An indoor garden built from clay, brick, and natural minerals offers a daily connection to nature. The workspace incorporates inclusive design principles, informed by neurodiversity consultants and academic expertise, ensuring environments that respond to a broad range of sensory needs — from acoustic conditions to tactile finishes and visual tone.


A Workplace for the Future
The Jellicoe Workspace is more than a functional office; it’s an immersive, adaptable, and sustainable environment. By embracing biophilic office design, Universal Design Studio has created a space that promotes productivity, fosters wellbeing, and sets a new benchmark for human-centric workplace architecture.



All Photographs are works of Chris Tirrell, Toby Mitchell
Popular Articles
Popular articles from the community
Split House: A Compact Urban Home Blending Privacy, Light, and Flexible Living in Japan
Compact Japanese home featuring DOMA space, flexible café potential, passive lighting, privacy zoning, and sustainable urban living design.
Inverted Architecture Installation by Studio Link-Arc: Exploring the Intersection of Architecture and Living Organisms
Inverted Architecture Installation by Studio Link-Arc blends mycelium, sustainability, inverted design, ecological cycles, and urban adaptive architecture in Shenzhen.
The Ken Roberts Memorial Delineation Competition (Krob)
As the most senior architectural drawing competition currently in operation anywhere in the world, it draws hundreds of entries each year, awarding the very best submissions in a series of medium-based categories.
Gads Hill Early Learning Center by JGMA: Adaptive Reuse Shaping Community-Focused Educational Architecture
Adaptive reuse transforms fragmented structure into vibrant early learning center with playful façade, natural light, and community-focused sustainable design.
Similar Reads
You might also enjoy these articles
Free Architecture Competitions You Can Enter Right Now
No entry fees, real prizes. Here are the best free architecture competitions open for submissions in 2026.
Top 15 Architecture Competitions to Enter in 2026
From student-friendly idea competitions to prestigious international awards, here are the best architecture competitions open for entries in 2026. Updated regularly.
DIY & Engineering in Computational Design : Enter the BeeGraphy Design Awards
Showcase Your Creativity with Computational Design and Open Source Projects

Innovative Design Solutions: Award-Winning Projects from Recent Architecture Competitions
Exploring award-winning architectural projects shaping the future of design, sustainability, and community.
Explore Architecture Competitions
Discover active competitions in this discipline
The International Standard for Design Portfolios
The Global Benchmark for Architecture Dissertation Awards
The Global Benchmark for Graduation Excellence
Challenge to reimagine the Iron Throne
Comments (0)
Please login or sign up to add comments
No comments yet. Be the first to comment!