Blending Commerce and Comfort: House in Shirsagi's Modern Home with Integrated Store Design
House in Shirsagi by Buttondesign is a unique blend of a modern home with an integrated store, fostering community engagement in Japan.
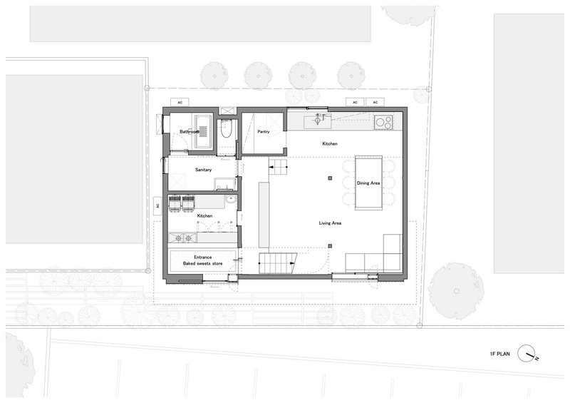
In the tranquil neighborhood of Nakano City, Japan, lies a remarkable example of modern home with integrated store design. The House in Shirsagi, conceptualized by the innovative team at Buttondesign and realized in 2019, redefines the traditional boundaries between living spaces and commercial areas within its 90 m² footprint. Captured beautifully by photographer Satoshi Asakawa, this project presents a harmonious blend of personal and public realms.





Designing for Openness and Connectivity
Embracing the Urban Landscape
Despite its flagpole lot characteristic, the House in Shirsagi enjoys an unencumbered openness, courtesy of its adjacency to a vast parking area reminiscent of a park's expanse. This setup, while temporary like the fleeting nature of urban green spaces, inspired a thoughtful design approach that emphasizes connection with the environment and anticipates future urban transformations.


A Storefront that Welcomes
At the heart of the design lies the integration of a small baked sweets store, invitingly positioned at the residence's entrance. This strategic co-location blurs the distinction between the domicile and the bustling street life, creating a welcoming threshold that draws the community in.



The Architectural Journey Within
A Subterranean Sanctuary of Culinary Delight
Venturing deeper into the residence, visitors are greeted by an expansive, semi-buried earthen floor that hosts a sprawling kitchen. This area, designed as the house's nucleus, not only showcases the central role of "food" but is also envisioned as a future hub for cooking workshops, further opening the house to the local community.




Ascending to Light and Versatility
The second floor, emerging from the earthen foundation, offers a flexible living area that adapts to the residents' evolving needs. Shielded from the external parking lot, this space relies on skylights to bathe the interior in natural light, creating an intimate atmosphere disconnected from the immediate urban fabric yet deeply rooted in the home's core axis.





A Vision of Living and Sharing
House in Shirsagi by Buttondesign exemplifies the potential of modern home with integrated store design, showcasing how architecture can fluidly merge the public allure of a storefront with the privacy and warmth of a residential space. As this home continues to evolve and embrace its urban context, it stands as a testament to the adaptive and inclusive nature of contemporary living spaces, where commerce and comfort coexist in seamless harmony.




All photographs are work of Satoshi Asakawa
Popular Articles
Popular articles from the community
Inverted Architecture Installation by Studio Link-Arc: Exploring the Intersection of Architecture and Living Organisms
Inverted Architecture Installation by Studio Link-Arc blends mycelium, sustainability, inverted design, ecological cycles, and urban adaptive architecture in Shenzhen.
On the Brooks House by Monsoon Collective – A Contemporary Kerala Home Rooted in Tradition
Kerala home blending tradition and modernity with water-inspired design, brick architecture, courtyard planning, and sustainable rainwater harvesting strategies.
Flamboyant House by Juliana Camargo + Prumo Projetos
Modern Brazilian house integrating existing tree, pool, and volumes with glass, wood, and transitional spaces blending interior, exterior, and landscape seamlessly.
Atelier Macri Concept Store Interior Design by CASE-REAL
Atelier Macri store features a "ko" counter, walnut wood details, cork displays, blending retail, gallery, and seamless customer experiences.
Similar Reads
You might also enjoy these articles
The Ken Roberts Memorial Delineation Competition (Krob)
As the most senior architectural drawing competition currently in operation anywhere in the world, it draws hundreds of entries each year, awarding the very best submissions in a series of medium-based categories.
Waterfront Redevelopment and Urban Revitalization in Mumbai: Forging a New Dawn for Darukhana
A transformative waterfront redevelopment project reimagining Darukhana’s shipbreaking heritage into an inclusive urban future.
OUT-OF-MAP: A Call for Postcards on Feminist Narratives of Public Space
Rhizoma Design and Research Lab invites artists, designers, architects, researchers, and students to reflect on how feminist perspectives can reshape public space. Selected works will be exhibited in Barcelona, October 2026. Submissions open until 15 April 2026.
Documentation Work on Buddhist Wooden Temple
Architectural syncretism and cultural hybridity: A comparative study of the Buddhist temples in Chattogram Hill tracks
Explore Architecture Competitions
Discover active competitions in this discipline
The International Standard for Design Portfolios
The Global Benchmark for Architecture Dissertation Awards
The Global Benchmark for Graduation Excellence
Challenge to reimagine the Iron Throne
Comments (0)
Please login or sign up to add comments
No comments yet. Be the first to comment!