Bohumil Sendagaya: A Case Study in Sustainable Micro Cafe Design
Bohumil Sendagaya exemplifies sustainable micro cafe design, transforming underutilized urban space into an experimental, adaptable café that merges architecture and fourth-wave coffee
Bohumil Sendagaya is an innovative example of sustainable micro cafe design, blending adaptability, sustainability, and minimalist aesthetics. Designed by Jo Nagasaka and Schemata Architects, this Tokyo-based café operates as both a functional space and a design experiment. Originating from Seoul, the café’s concept reflects the fourth-wave coffee movement, which seeks to create accessible, community-focused spaces outside the cycle of commercial gentrification.



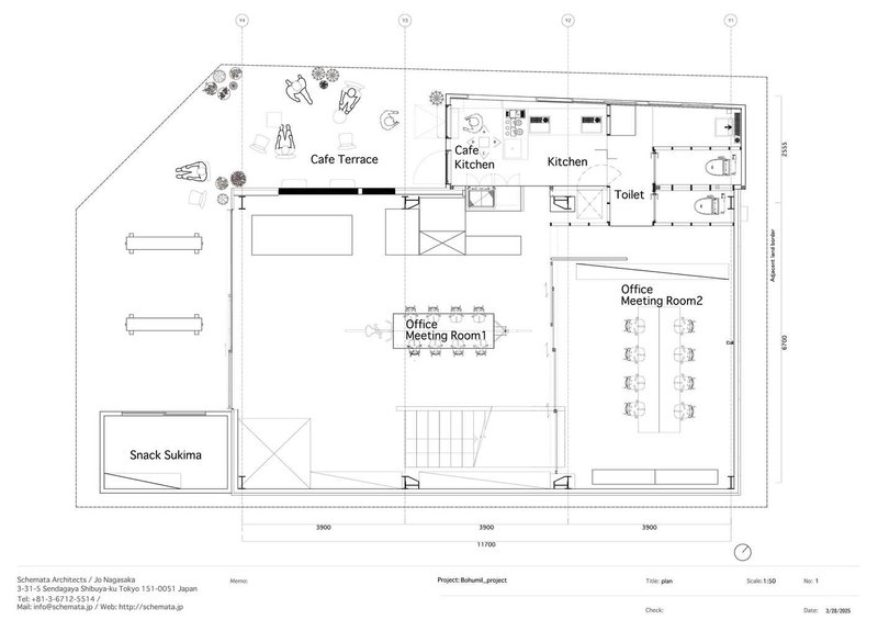
The project is housed within a small 25 m² section of Schemata Architects’ office, demonstrating how underutilized urban spaces can be repurposed into vibrant social hubs. Through continuous experimentation with layout, materials, and design elements, Bohumil Sendagaya serves as a prototype for sustainable and adaptable café architecture.



Reimagining Small-Scale Hospitality Spaces
Bohumil Sendagaya was born out of necessity when the original Bohumil Coffee in Seongsu, Seoul, faced demolition due to urban redevelopment. Rather than pausing operations, the café temporarily relocated to Tokyo, taking over a former stationery wholesaler’s warehouse on a small urban corner. The design challenge was to transform a compact parking space into a fully operational café without disrupting the surrounding architectural context.

The café’s integration into an existing structure exemplifies an adaptive reuse strategy, which maximizes available resources while minimizing environmental impact. The space functions as a mock-up laboratory, where various furniture arrangements, lighting techniques, and material selections are tested in real time before being incorporated into the eventual flagship store in Seoul.

Sustainability Through Adaptive Reuse
The project aligns with contemporary sustainable micro cafe design principles by prioritizing minimal intervention and material conservation. Rather than constructing a new standalone building, the architects embraced the existing structure, maintaining its industrial charm while introducing thoughtful modifications.


The interior is constantly evolving, allowing for flexible design solutions that respond to both functionality and user experience. Materials and furniture are carefully selected to enhance longevity and reduce waste. Instead of opting for a fixed layout, the design team implements a trial-and-error approach, ensuring that every modification is purposeful and sustainable.


A New Wave of Coffee Culture and Architecture
The Bohumil project is part of a larger architectural and cultural movement that challenges the commercialization of urban coffee spaces. While the third-wave coffee movement emphasized artisanal coffee within stylish, repurposed spaces, it often led to rapid gentrification. Bohumil embraces a fourth-wave approach, fostering an atmosphere where coffee culture is more inclusive, experimental, and community-driven.


By embedding the café within an existing workspace, the project challenges the conventional boundaries between hospitality and workplace environments. The result is a space that is dynamic and multifunctional, reflecting the evolving relationship between architecture and contemporary social habits.



Bohumil Sendagaya stands as a compelling model for sustainable micro cafe design, demonstrating how small spaces can be redefined through adaptive reuse, sustainability, and ongoing experimentation. By treating the café as a living prototype, Jo Nagasaka and Schemata Architects introduce a new architectural methodology that prioritizes flexibility, environmental consciousness, and cultural integration.


This Tokyo-based project offers valuable insights into how micro-scale hospitality spaces can thrive within urban environments, paving the way for a future where sustainable and adaptable architecture becomes the standard rather than the exception.

All Photographs are works of Takeshi Abe
Popular Articles
Popular articles from the community
Louis Malle Cinema: A Limestone Cultural Landmark Revitalizing Community Life in Prayssac
Limestone cinema extension with public forecourt, blending heritage and modern design to create flexible cultural spaces and strengthen community interaction.
On the Brooks House by Monsoon Collective – A Contemporary Kerala Home Rooted in Tradition
Kerala home blending tradition and modernity with water-inspired design, brick architecture, courtyard planning, and sustainable rainwater harvesting strategies.
Fifth NRE Jazz Club – De Bever Architecten: Eindhoven’s Revitalized Cultural Hub
Historic gas factory transformed into Fifth NRE Jazz Club blending modern sustainability, jazz culture, dining, and heritage architecture seamlessly.
Gads Hill Early Learning Center by JGMA: Adaptive Reuse Shaping Community-Focused Educational Architecture
Adaptive reuse transforms fragmented structure into vibrant early learning center with playful façade, natural light, and community-focused sustainable design.
Similar Reads
You might also enjoy these articles
Bamboo Housing Challenge 2026: Design Affordable, Sustainable Homes Using Bamboo
An international design competition by Bamboo U and IBUKU inviting architects and designers to reimagine affordable housing using bamboo — with the winning design built full-scale in Bali.
Computational Design & Education: Beegraphy Design Awards Introduces 7th Category (Featuring Jiyun's Innovative Approach)
Dive into Beegraphy’s 7th Design Awards category, where computational design meets education to create immersive, interactive learning tools, inspired by Jiyun’s work.
From Parametric Lighting to Urban Furniture: Join the 2nd Workshop in Beegraphy’s Computational Design Series
Dive into Cutting-Edge Design Techniques and Practical Applications with Industry Experts
Introducing Sphere by UNI: Pioneering a New Era in AEC Industry
Unlocking Global Potential with BIM and Agile Management
Explore Architecture Competitions
Discover active competitions in this discipline
The International Standard for Design Portfolios
The Global Benchmark for Architecture Dissertation Awards
The Global Benchmark for Graduation Excellence
Challenge to reimagine the Iron Throne
Comments (0)
Please login or sign up to add comments
No comments yet. Be the first to comment!