Burgbühne Beeskow: A Contemporary Pavilion Design by Atelier Fanelsa in Germany
Burgbühne Beeskow by Atelier Fanelsa is a contemporary pavilion design merging timber construction with a historic castle courtyard.
Situated within the historic walls of a medieval castle complex in Beeskow, Germany, the Burgbühne Beeskow is a remarkable example of contemporary pavilion design. Completed in 2024 by Atelier Fanelsa, the 400-square-meter cultural space seamlessly blends modern architecture with centuries-old heritage.

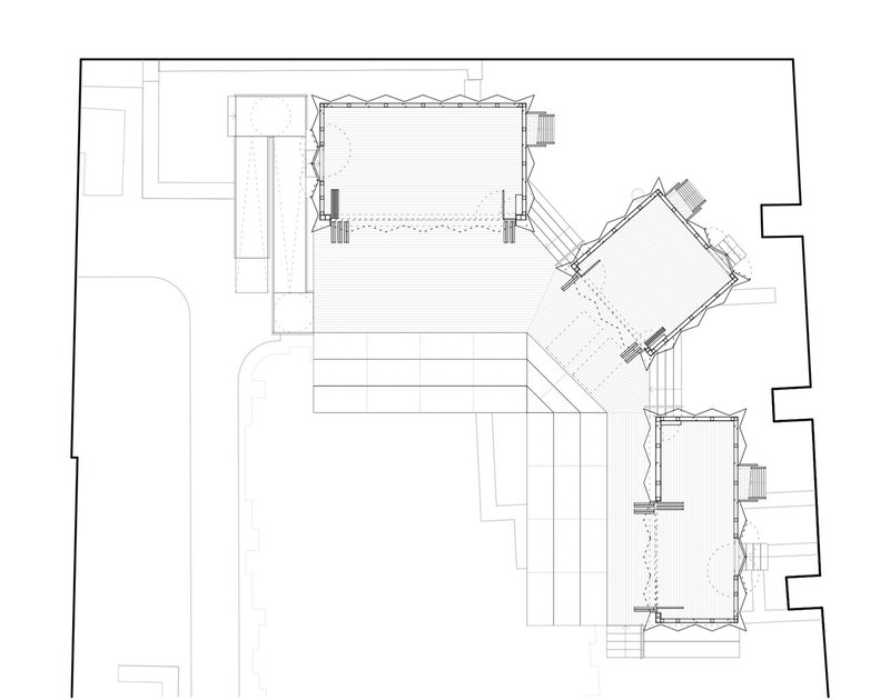
The project introduces three timber-framed pavilions alongside an outdoor stage, transforming the castle courtyard into a dynamic venue for cultural performances, exhibitions, and community gatherings. Through thoughtful design and the use of sustainable materials, the new structures elevate the castle's role as a cultural and educational center for the region.

Context and Historical Significance
The medieval Beeskow Castle has stood for centuries as a symbol of regional history and resilience. Over time, the castle evolved through phases of destruction, restoration, and adaptive reuse. Today, it functions as a cultural hub, offering space for art, education, and public events.

Atelier Fanelsa approached the project with deep respect for the castle's legacy. The contemporary pavilion design carefully integrates with the historic site, ensuring that the new additions enhance, rather than overpower, the existing architecture. This approach preserves the castle’s character while introducing modern functionality to meet the needs of the community.

Architectural Concept and Spatial Organization
The design revolves around three interconnected pavilions arranged within the castle’s courtyard. At the heart of this composition is an outdoor stage, serving as a performance platform for actors and musicians. The pavilions support this central stage, functioning as backstage areas, dressing rooms, and set extensions during live performances.

The accessible roofs of the pavilions become part of the stage, allowing actors and performers to incorporate multiple levels into their presentations. This spatial fluidity is a defining feature of the contemporary pavilion design, promoting versatility and creativity in event programming.

Beyond performance seasons, the pavilions transform into flexible spaces for castle festivals, community workshops, and gallery exhibitions. The adaptable nature of the design ensures that the venue remains active throughout the year, reinforcing its role as a cultural cornerstone for the town of Beeskow.

Sustainable Materials and Construction Approach
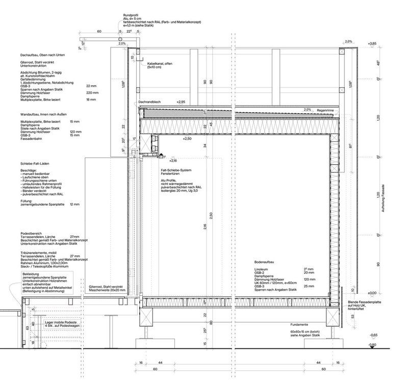
Sustainability lies at the core of the Burgbühne Beeskow project. Atelier Fanelsa prioritized the use of geo-based and bio-based materials to minimize environmental impact. The pavilions are constructed with timber frames and insulated with wood fiber, creating energy-efficient structures suitable for year-round use.

Point foundations were chosen to elevate the pavilions above the historic paving, reducing the need for concrete and preserving the original stonework beneath. This construction method reflects a light-touch intervention, safeguarding the archaeological significance of the site while enabling modern functionality.

The majority of construction was executed by a local carpentry firm with generational ties to the castle. This collaboration not only ensured craftsmanship of the highest standard but also fostered a sense of continuity between past and present.

Façade Design and Architectural Expression
The exterior of the pavilions draws inspiration from the castle’s red brick walls. A folded, curtain-wall façade reflects the rich textures and earthy tones of the medieval masonry, creating a dialogue between old and new.
When closed, the pavilions merge discreetly into their historic backdrop. When opened, large folding shutters and sliding windows dissolve the boundary between interior and exterior. This operable façade invites visitors into the spaces while offering unobstructed views of the castle’s courtyard.

Internally, the contemporary pavilion design maintains a minimalist aesthetic. Light-colored wood and linoleum flooring create a neutral backdrop, allowing the castle’s architectural heritage and the evolving cultural activities to take center stage.

Indoor-Outdoor Connection and User Experience
The relationship between the pavilions and their surroundings is central to the project’s success. The courtyard façades open generously, allowing performances to spill into the outdoor spaces. Visitors can flow effortlessly between indoor galleries, open-air events, and the historic castle grounds.
This emphasis on fluidity is a hallmark of contemporary pavilion design. The pavilions are not static structures; they adapt and respond to the activities they host. Whether serving as a stage extension, a gallery, or a gathering space, the architecture supports diverse forms of cultural expression.

Seasonal Adaptability and Year-Round Use
While the outdoor stage thrives during summer festivals, the pavilions ensure that the cultural heartbeat of Beeskow continues through winter. Insulated with wood fiber and designed for thermal efficiency, the interiors become warm and inviting spaces for exhibitions, workshops, and community meetings during colder months.
This adaptability ensures that Burgbühne Beeskow remains an active venue regardless of season, enhancing its value as a cultural resource for the town and its residents.

Preservation Through Innovation
The success of Burgbühne Beeskow lies in its ability to bridge past and present. Atelier Fanelsa has demonstrated that contemporary pavilion design can complement historical sites without compromising their authenticity. The pavilions respect the castle’s architectural heritage while introducing modern functionality that enriches community life.
This project exemplifies how architecture can act as a mediator between eras. It preserves the identity of Beeskow Castle while ensuring that the site remains relevant, accessible, and vibrant for future generations.

A Model of Contemporary Pavilion Design
Burgbühne Beeskow stands as a model for contemporary pavilion design in historic contexts. Atelier Fanelsa’s sensitive approach has resulted in a cultural venue that celebrates both architectural innovation and heritage preservation.

By harmonizing timber-framed pavilions with medieval stone walls, the project demonstrates the potential of architecture to revitalize historic sites. It offers an inspiring blueprint for future projects seeking to balance tradition with progress, ultimately proving that the past and present can coexist in architectural harmony.

All Photographs are works of Simon Menges & Nino Tugushi
Popular Articles
Popular articles from the community
Atelier Macri Concept Store Interior Design by CASE-REAL
Atelier Macri store features a "ko" counter, walnut wood details, cork displays, blending retail, gallery, and seamless customer experiences.
Free Architecture Competitions You Can Enter Right Now
No entry fees, real prizes. Here are the best free architecture competitions open for submissions in 2026.
Alton Cliff House: A Harmonious Retreat by f2a Architecture in Lake Country, Canada
Alton Cliff House blends corten steel, prefabrication, and sustainable design, creating a luxurious, energy-efficient retreat perched on Canadian cliffs.
Gads Hill Early Learning Center by JGMA: Adaptive Reuse Shaping Community-Focused Educational Architecture
Adaptive reuse transforms fragmented structure into vibrant early learning center with playful façade, natural light, and community-focused sustainable design.
Similar Reads
You might also enjoy these articles
The Ken Roberts Memorial Delineation Competition (Krob)
As the most senior architectural drawing competition currently in operation anywhere in the world, it draws hundreds of entries each year, awarding the very best submissions in a series of medium-based categories.
Waterfront Redevelopment and Urban Revitalization in Mumbai: Forging a New Dawn for Darukhana
A transformative waterfront redevelopment project reimagining Darukhana’s shipbreaking heritage into an inclusive urban future.
OUT-OF-MAP: A Call for Postcards on Feminist Narratives of Public Space
Rhizoma Design and Research Lab invites artists, designers, architects, researchers, and students to reflect on how feminist perspectives can reshape public space. Selected works will be exhibited in Barcelona, October 2026. Submissions open until 15 April 2026.
Documentation Work on Buddhist Wooden Temple
Architectural syncretism and cultural hybridity: A comparative study of the Buddhist temples in Chattogram Hill tracks
Explore Architecture Competitions
Discover active competitions in this discipline
The International Standard for Design Portfolios
The Global Benchmark for Architecture Dissertation Awards
The Global Benchmark for Graduation Excellence
Challenge to reimagine the Iron Throne
Comments (0)
Please login or sign up to add comments
No comments yet. Be the first to comment!