Carlo Scarpa Architecture: The Timeless Brilliance of the Olivetti Showroom in Venice
A detailed look at Carlo Scarpa’s Olivetti Showroom, where modern architecture, material craft, and historical context harmoniously converge.
A Masterpiece Hidden in Plain Sight
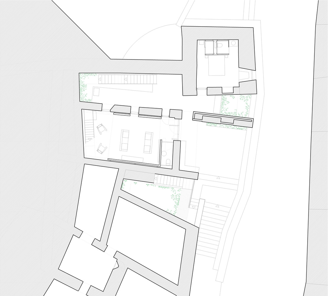
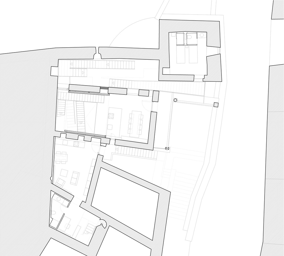
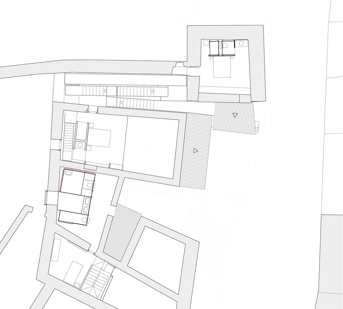
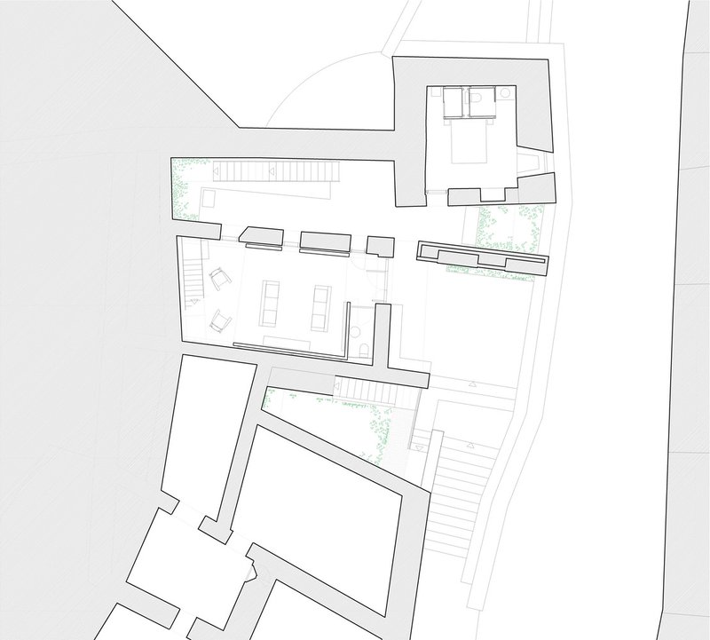
Under the arches of Saint Mark's Square in Venice, the Olivetti Showroom by Carlo Scarpa remains one of modern architecture’s most refined yet understated gems. Modest in scale but masterful in execution, this 1958 project transforms a narrow corner of urban fabric into an architectural meditation on material, light, and form. It is a case study in Carlo Scarpa architecture—where the poetic and the practical converge in extraordinary ways.



Commission and Concept: Elevating Industrial Design through Architecture
The story of the Olivetti Showroom began in 1956, when Scarpa won the National Olivetti Award for Architecture. Inspired by Olivetti's pioneering vision in industrial design—particularly its iconic typewriters—Scarpa was commissioned to design a showroom that was less commercial and more theatrical. Completed in 1958, it became a spatial stage to elevate machines through architectural choreography, aligning perfectly with Scarpa’s ethos of turning construction into composition.




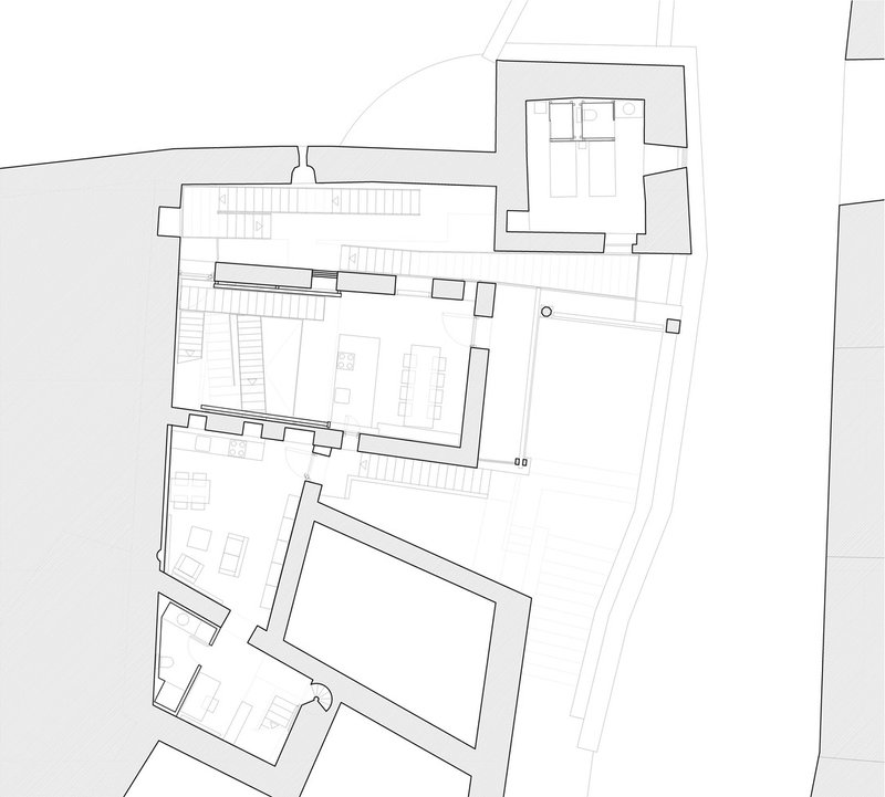
Transforming Constraints into Opportunities
Working within the historical shell of a Venetian colonnade, Scarpa introduced transformative spatial gestures. The interior was flooded with natural light through newly opened windows, and the upper level was reorganized into suspended walkways and open balconies. These insertions respected the building's original shell but infused it with a modern sense of spatial fluidity. Scarpa’s signature staircase became the project’s central sculptural element—both a functional link and a poetic anchor.




The Staircase: Asymmetry as Architecture
At the heart of the space stands a staircase that epitomizes Scarpa's attention to detail, rhythm, and illusion. Each tread varies in shape and dimension, supported by brass brackets that are intentionally misaligned. This creates an organic irregularity within a strict geometric grid, bringing softness to the space. The stair does more than connect levels—it becomes a display surface, a sculptural form, and a functional object, simultaneously concealing a storage core and articulating circulation.




Material Mastery: Brass, Wood, and Light
Scarpa’s use of brass and metal detailing is not merely decorative but elemental to the architecture’s rhythm. From door pulls and handrails to stair brackets and tension rods, metal accents serve as visual punctuation, marking transitions and anchoring junctions. The brass catches and reflects ambient light, introducing a second layer of illumination that subtly changes with the passage of time. As the metal patinates, it embeds time itself into the material story of the showroom.




Illusion and Precision in Joinery
Perhaps the most intellectually provocative detail is the central column, which appears to penetrate a horizontal beam in the style of traditional Japanese joinery. Upon close inspection, the illusion is revealed: the post is hollow, separated from the beam it seems to support. Scarpa uses such visual misdirection not to deceive, but to engage viewers in a deeper awareness of architectural craft. Even the lap joints at column edges are intentionally rough, emphasizing material truth over formal perfection.


Flooring and Final Details: Grounding the Space
The floor of the showroom completes Scarpa’s holistic architectural vision. A terrazzo-like surface made of marble and glass chips shimmers softly under natural light, subtly organizing spatial zones through color shifts and joint placement. Like the stair or column, the floor is rich in texture and meaning. Its quiet elegance enhances the showroom’s identity as a cohesive, contemplative space—where every joint and junction speaks of care, control, and intention.


Restoration and Legacy
After years of neglect and misuse, the Olivetti Showroom was restored in 2011, faithfully returning Scarpa’s vision to the public. Today, it is maintained by the Fondo Ambiente Italiano (FAI) and remains a pilgrimage site for architecture lovers, designers, and scholars of Carlo Scarpa architecture. It is more than a historic interior—it is a lasting testament to the expressive potential of architectural detail.

A Living Monument to Craft and Culture
The Olivetti Showroom is not just a showroom, but a narrative space where craftsmanship, structure, and light engage in ongoing dialogue. It embodies the essence of Carlo Scarpa architecture: respectful of history, daring in detail, and deeply human in scale. This small but mighty project continues to inspire generations with its quiet brilliance—a timeless example of how architecture can elevate both place and product into poetry.

All photographs are works of Jonathan Yeung, Orch_chemollo, EBRIMINI via Shutterstock
Popular Articles
Popular articles from the community
An Miên Lumière Cafe by xưởng xép, Ho Chi Minh City, Vietnam
An industrial-inspired café where layered steel and warm light create a dynamic, immersive environment shaped by reflection, depth, and perception.
On the Brooks House by Monsoon Collective – A Contemporary Kerala Home Rooted in Tradition
Kerala home blending tradition and modernity with water-inspired design, brick architecture, courtyard planning, and sustainable rainwater harvesting strategies.
Louis Malle Cinema: A Limestone Cultural Landmark Revitalizing Community Life in Prayssac
Limestone cinema extension with public forecourt, blending heritage and modern design to create flexible cultural spaces and strengthen community interaction.
Inverted Architecture Installation by Studio Link-Arc: Exploring the Intersection of Architecture and Living Organisms
Inverted Architecture Installation by Studio Link-Arc blends mycelium, sustainability, inverted design, ecological cycles, and urban adaptive architecture in Shenzhen.
Similar Reads
You might also enjoy these articles
Bamboo Housing Challenge 2026: Design Affordable, Sustainable Homes Using Bamboo
An international design competition by Bamboo U and IBUKU inviting architects and designers to reimagine affordable housing using bamboo — with the winning design built full-scale in Bali.
Computational Design & Education: Beegraphy Design Awards Introduces 7th Category (Featuring Jiyun's Innovative Approach)
Dive into Beegraphy’s 7th Design Awards category, where computational design meets education to create immersive, interactive learning tools, inspired by Jiyun’s work.
From Parametric Lighting to Urban Furniture: Join the 2nd Workshop in Beegraphy’s Computational Design Series
Dive into Cutting-Edge Design Techniques and Practical Applications with Industry Experts
Introducing Sphere by UNI: Pioneering a New Era in AEC Industry
Unlocking Global Potential with BIM and Agile Management
Explore Architecture Competitions
Discover active competitions in this discipline
The International Standard for Design Portfolios
The Global Benchmark for Architecture Dissertation Awards
The Global Benchmark for Graduation Excellence
Challenge to reimagine the Iron Throne
Comments (0)
Please login or sign up to add comments
No comments yet. Be the first to comment!