Casa Chorizo Renovation in Buenos Aires: A Modern Twist on Traditional Living by Estudio Tecla
The article describes the transformation of Garu House, a traditional Casa Chorizo in Buenos Aires, by Estudio Tecla into a modern space.
In the heart of Buenos Aires, Argentina, the Garu House emerges as a prime example of "Casa Chorizo Renovation in Buenos Aires". Led by Estudio Tecla, this project breathes new life into the classic Argentine residential style, blending tradition with contemporary design.

Reimagining Traditional Spaces
Bringing Light and Space to the Forefront
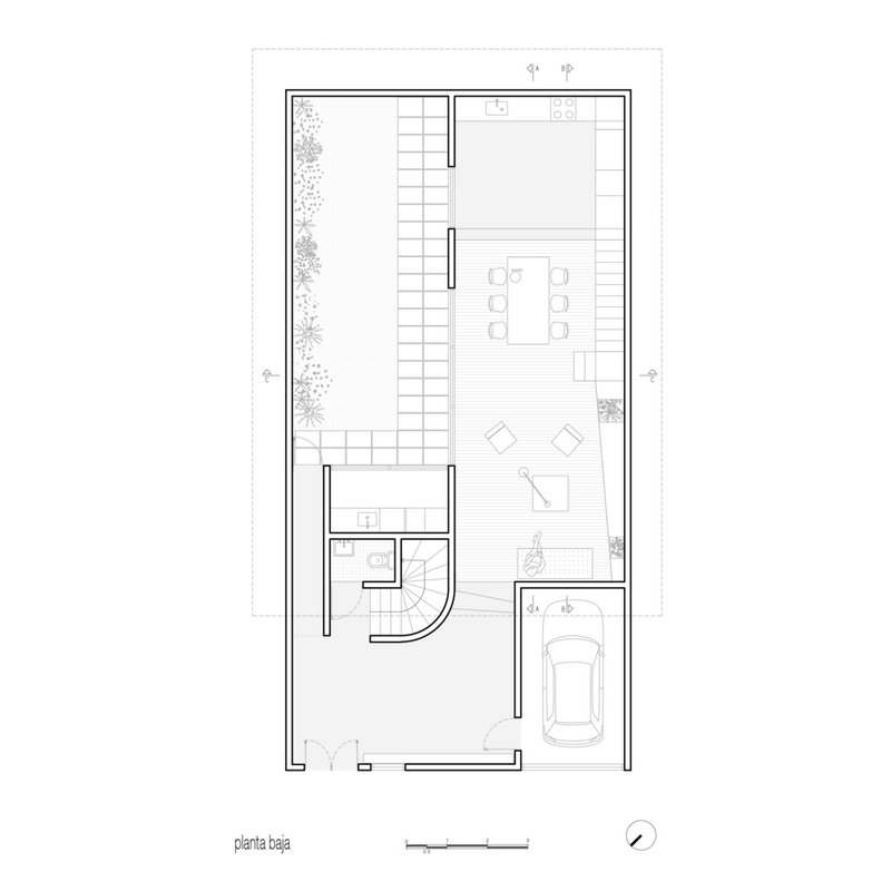
The renovation's main challenge was transforming the dark, segmented layout of the traditional Casa Chorizo into an open, light-filled living environment. By demolishing central walls and incorporating floor-to-ceiling windows, Estudio Tecla has crafted a space where light becomes a central character, enhancing the home's spaciousness.


Preserving Architectural Heritage
Despite the extensive modernization, key elements of the original architecture, such as the wooden floors and vaulted ceilings, were carefully restored. This approach respects the building's historical value while introducing modern comfort and aesthetics.



Innovative Design Solutions
The Central Patio: A Green Haven
The redesign of the central patio was crucial in eliminating the previous dark ceramics and metal structures, replacing them with a vibrant green space that seamlessly integrates with the home's interior, thereby enhancing the living experience.



Multifunctional Furniture as a Space Enhancer
A standout feature is the ingenious continuous furniture piece that transitions from kitchen countertop to staircase and living area, exemplifying smart space utilization and design fluidity in "Casa Chorizo Renovation in Buenos Aires".





Exterior Enhancements
Facade Restoration with a Modern Touch
The facade restoration balanced historical preservation with modern needs. The original doorway was maintained, adding character, while new corrugated metal modules introduced a contemporary element that redefines the home's street presence.

Blending Past and Present
The Garu House by Estudio Tecla stands as a testament to the potential of "Casa Chorizo Renovation in Buenos Aires", showcasing how traditional homes can meet modern living standards while preserving their unique cultural heritage.






All photographs are work of Malena Fradkin
Popular Articles
Popular articles from the community
BICA Arquitectos Buries a Coastal Home in a Man-Made Dune on Portugal's Tróia Peninsula
A 300-square-meter house of timber, sand mortar, and travertine dissolves into the dune landscape it helped regenerate on the Alentejo coast.
20 Most Popular Furniture Design Projects of 2025
Modular street systems, parametric benches, and insect hotels: the furniture design projects that captivated architects on uni.xyz in 2025.
Paco Oria Estudio Rebuilds a 1949 Valencian Town House Around Timber, Terracotta, and a New Interior Patio
In Godella, Spain, a semi-detached house from the postwar era is stripped to its party walls and rebuilt with wood and ceramics.
Architects Group RAUM Stacks Offset White Volumes into a Compact Office Tower in Busan
A 524-square-meter building on a tight corner lot in Haeundae plays with sunlight rights and shifting floor plates to create generous terraces.
Similar Reads
You might also enjoy these articles
Olio Towers: A Mid-Rise for Performers That Fuses Housing, Rehearsal, and Stage
Located blocks from Houston's Theater District, this modular tower stacks living units around a central performance atrium.
Oasis: Modular Green Housing Carved into Dhaka's Urban Fabric
A shortlisted Plugin Housing entry reclaims unauthorized settlements in Dhaka with stepped concrete volumes, green roofs, and ventilation-driven design.
Black Hole: A Floating Megastructure for the Post-Physical Era
Emiliano Mazzarotto envisions a spherical, self-scaling arena where e-sports, digital hotels, and holographic stadiums replace traditional public space.
Compact & Sustainable Living in Piraeus: A Four-Level Family Home Built Around Light and Air
A narrow townhouse in one of Greece's densest port cities uses a central atrium and passive strategies to house three generations under one roof.
Explore Architecture Competitions
Discover active competitions in this discipline
The International Standard for Design Portfolios
The Global Benchmark for Architecture Dissertation Awards
The Global Benchmark for Graduation Excellence
Challenge to reimagine the Iron Throne
Comments (0)
Please login or sign up to add comments
No comments yet. Be the first to comment!