Chamboirat House: An Adaptive Reuse Farmhouse Transformation by COVE Architectes
Adaptive reuse meets sustainability in Chamboirat House, where COVE Architectes transform a heritage farmhouse into a modern family haven.
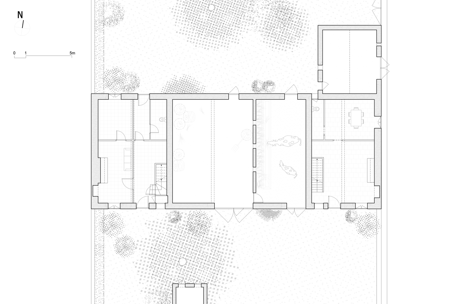
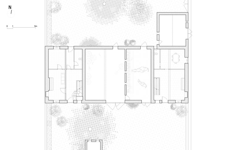
Nestled in the picturesque hamlet of Chamboirat in Auvergne, France, the Chamboirat House by COVE Architectes exemplifies a harmonious balance between preserving heritage and modernizing functionality. This adaptive reuse project transforms a two-century-old farmhouse into a comfortable family home while retaining its historical character and architectural essence.



Restoring the Past: Respecting Heritage
Maintaining Historical Integrity
The original farmhouse showcased remarkable elements, including:
- 9-meter-high stone masonry walls
- A complex wooden framework
- Expansive volumes that highlighted its rustic charm

The architects employed minimally invasive techniques to honor the building's historical significance, using lime chainings and cut stones for selective repairs. The wooden framework was preserved and enhanced with new oak beams, ensuring continuity between the old and new.

Craftsmanship and Local Materials
Inspired by traditional craftsmanship, the design integrates locally sourced materials, maintaining the farmhouse's connection to its roots. The lime and hemp insulation provided a sustainable solution, while preserving the warm, raw texture of the walls.




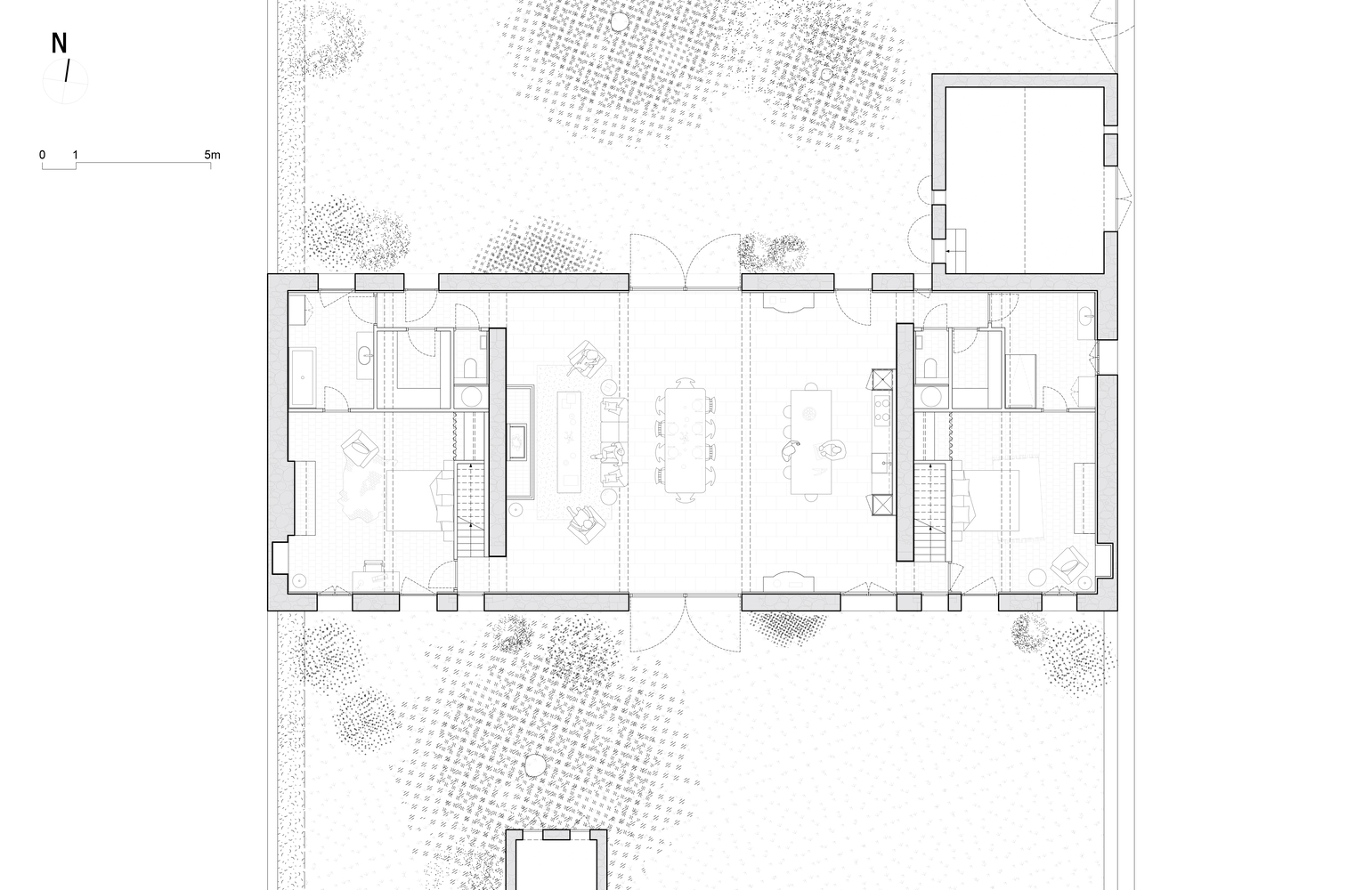
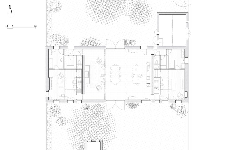
A Home for Modern Living
Central Gathering Space
To foster familial connections, the central stable wall was removed, creating a large, open area that seamlessly integrates:
- Kitchen
- Dining Room
- Living Room


Embracing Light and Nature
A new aperture on the north façade mirrors the existing south gateway, ensuring natural light floods the space and enhances views of the surrounding garden.


Sustainability Through Design
Eco-Friendly Enhancements
The design incorporates:
- Hemp concrete slabs combined with a ventilated crawl space for moisture control
- Breathable floor coverings like natural stone and terracotta tiles
- Roof insulation with external layers, making the framework visible indoors



Passive Comfort Solutions
The lime and hemp-coated walls provide improved thermal comfort, enabling healthy and energy-efficient interiors while respecting the original structure's authenticity.




Subtle Yet Impactful Exterior Changes
Facade Preservation
The outer coatings and exposed stones were left untouched, reflecting the building’s age and authenticity. White wooden shutters and glazed oak windows were added to enhance functionality without compromising the aesthetic.


The Chamboirat House by COVE Architectes is a prime example of adaptive reuse architecture, blending history, sustainability, and modern living. By prioritizing subtle interventions, the architects preserved the farmhouse’s distinctive character while ensuring it serves as a functional and inviting family retreat for generations to come.


All Photographs are work of Charles Bouchaïb, Olivier Sabatier