Chateau Pavie Macquin: A Case Study in Sustainable Winery Design
This article discusses Chateau Pavie Macquin Winery's design, focusing on its sustainable architecture and integration with the historical landscape.
Chateau Pavie Macquin Winery, located in the historic wine region of Saint-Émilion, France, stands as a beacon of sustainable winery design. Overseen by BPM Architectes, this project seamlessly blends architectural innovation with environmental consciousness.

Design Philosophy and Approach
Integration with the Landscape
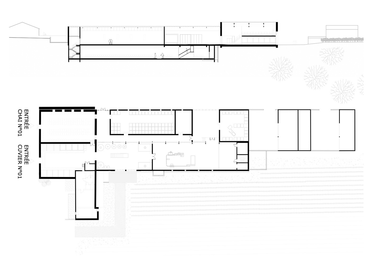
Perched on a hill, the winery extends horizontally, mirroring the contours of the surrounding landscape. This design strategy not only enhances the aesthetic appeal but also minimizes the structure's impact on the natural environment.


Emphasizing Historical Continuity
The rehabilitation and extension of Chateau Pavie Macquin respect the site's rich heritage. The project includes the renovation of the production unit and the addition of an underground aging cellar, symbolizing a new era while honoring the winery’s historical roots.

Sustainable Features and Materials
Durable and Local Materials
The choice of materials was driven by sustainability and durability. Local construction materials were selected to ensure the longevity of the building and reduce the environmental impact associated with transportation.




Energy and Water Efficiency
The design leverages the thermal inertia of the soil, significantly reducing the energy required for air conditioning. Additionally, rainwater harvesting systems are implemented to minimize water usage, reflecting a comprehensive approach to sustainable winery design.


Architectural Details and Functionality
Underground Aging Cellar
One of the project’s highlights is the underground cellar, which reaches depths of more than 7 meters. Constructed with concrete mixed from topsoil excavated on-site, the cellar walls reflect the terroir’s geological richness, bringing the essence of the land into the building itself.



Workflow Optimization
The layout of the winery is meticulously planned to optimize the winemaking process. The rehabilitation of existing spaces focuses on enhancing efficiency and reducing energy consumption, further contributing to the sustainability goals of the project.



The Future of Winery Design
Chateau Pavie Macquin Winery by BPM Architectes sets a new standard for sustainable winery design. By integrating cutting-edge architectural techniques with a strong commitment to environmental stewardship, this project demonstrates how modern wineries can operate in harmony with their historical and natural contexts.


All photographs are work of 11h45
Popular Articles
Popular articles from the community
Solar Steam: A Climate-Responsive Architecture That Redefines the Monument
A climate-responsive memorial architecture that transforms heat, decay, and time into a living system reflecting humanity’s ecological impact.
The Ken Roberts Memorial Delineation Competition (Krob)
As the most senior architectural drawing competition currently in operation anywhere in the world, it draws hundreds of entries each year, awarding the very best submissions in a series of medium-based categories.
A Contemporary Take on Iranian Residential Architecture
A modern interior design in Mashhad that reinterprets brick, light, and spatial flow to create a warm, contemporary residential architecture.
Flamboyant House by Juliana Camargo + Prumo Projetos
Modern Brazilian house integrating existing tree, pool, and volumes with glass, wood, and transitional spaces blending interior, exterior, and landscape seamlessly.
Similar Reads
You might also enjoy these articles
The Ken Roberts Memorial Delineation Competition (Krob)
As the most senior architectural drawing competition currently in operation anywhere in the world, it draws hundreds of entries each year, awarding the very best submissions in a series of medium-based categories.
Waterfront Redevelopment and Urban Revitalization in Mumbai: Forging a New Dawn for Darukhana
A transformative waterfront redevelopment project reimagining Darukhana’s shipbreaking heritage into an inclusive urban future.
OUT-OF-MAP: A Call for Postcards on Feminist Narratives of Public Space
Rhizoma Design and Research Lab invites artists, designers, architects, researchers, and students to reflect on how feminist perspectives can reshape public space. Selected works will be exhibited in Barcelona, October 2026. Submissions open until 15 April 2026.
Documentation Work on Buddhist Wooden Temple
Architectural syncretism and cultural hybridity: A comparative study of the Buddhist temples in Chattogram Hill tracks
Explore Architecture Competitions
Discover active competitions in this discipline
The International Standard for Design Portfolios
The Global Benchmark for Architecture Dissertation Awards
The Global Benchmark for Graduation Excellence
Challenge to reimagine the Iron Throne
Comments (0)
Please login or sign up to add comments
No comments yet. Be the first to comment!