Cheongdam Carapace: A Biomorphic Architecture Design by L’EAU Design
A protective shell-inspired commercial building blending biomorphic architecture design with privacy, adaptability, and urban sensitivity in Seoul.
A Shell-Inspired Building in Urban Seoul
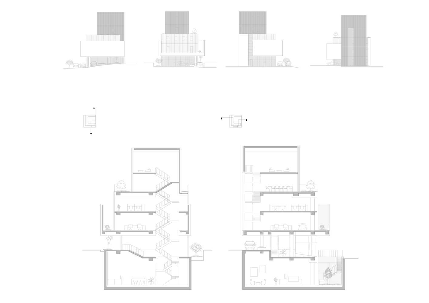
Located in the tranquil residential district of Cheongdam-dong, Seoul, Cheongdam Carapace by L’EAU design is a compelling example of biomorphic architecture design. Drawing direct inspiration from the evolutionary defense mechanisms of nature—namely the carapace, or protective shell found in turtles and crustaceans—the building encapsulates both metaphor and function. With its 886 m² of built area, the structure forms a physical and symbolic shell, offering privacy, protection, and thermal regulation amidst a dense urban landscape.


Architecture as Evolutionary Protection
The design concept takes a biological cue: the carapace, a structural and defensive form developed by many organisms to survive in hostile environments. This exoskeletal structure safeguards vital systems, regulates internal temperature, and defends against predators or environmental challenges. L’EAU design appropriates this natural system as an architectural metaphor, creating a hardened outer structure that wraps the internal program much like a crustacean shell.


Much like how crustaceans shed and regenerate their shells, Cheongdam Carapace also hints at architectural transformation and renewal, adapting itself to the site’s dual condition: a boundary between private residences and adjacent urban blocks.


Urban Shell: Context and Function
Set within a tight, visually exposed site, the building serves a dual purpose: shielding its interior functions from the visual noise of the neighborhood while also offering comfort and controlled permeability to its occupants. The hard, angular envelope emerges as a continuous shell that modulates visibility, solar exposure, and acoustic insulation.


Despite its sculptural quality, the form is not arbitrary. Each elevation and opening reacts to contextual pressure points: residential facades, street views, and the shadows of the adjacent apartment buildings. The exterior may appear monolithic, but it’s an intricately calibrated biomorphic skin—thick where needed for privacy and thin where light and air are allowed to penetrate.


Interior Spatial Strategy: Wrapped in Comfort
The internal organization reflects a cocoon-like layout, maximizing usable volume while maintaining a sense of enclosure. Materials and detailing continue the biomorphic language: flowing curves, layered textures, and softened transitions between zones create a sense of organic continuity.

The structure protects from the exterior world, much like its natural counterparts, yet it opens subtly in curated places. Large glazing apertures are shielded by the shell’s overhangs, acting like biological opercula—regulating exposure without compromising internal comfort.

Metaphor Meets Function in Biomorphic Design
Cheongdam Carapace stands out not only for its expressive shell form but for how deeply it roots its architecture in biological logic. The result is not a literal biomimicry, but a refined biomorphic architecture design that transforms metaphor into material. It’s a building that behaves like a living organism—protective, adaptive, and deeply aware of its environment.

By synthesizing biological reference and urban necessity, L’EAU design delivers a structure that goes beyond commercial utility. It tells a story—of evolution, adaptation, and the poetic beauty of architectural resilience.

All the photographs are works of Yongkwan Kim