Natalia Leves Wraps a Corner Apartment Building in General Roca with Perforated Brick Screens
On a 20-by-20-meter industrial lot in Patagonian Argentina, courtyards and communal terraces dissolve the line between housing and city.
General Roca is not a city that shows up on many architecture radars. A mid-sized town in the Río Negro valley of northern Patagonia, it has the topography, the light, and the dry continental climate that reward careful building, but not the development pressure that usually attracts design attention. That makes the Chile 893 Building, completed in 2022 by Arq. Natalia Leves, worth studying closely. On a compact 20-by-20-meter corner lot in a former industrial zone, Leves organized 1,450 square meters of housing around two internal courtyards, wrapped everything in a brick skin that local masons could build confidently, and gave the ground floor and the roof back to the neighborhood.
What makes the project genuinely interesting is how it stacks public and private programs without letting either one dominate. The classical three-part logic of base, body, and crown is deployed literally: the ground floor opens to the street, the middle floors hold adaptable apartments, and the rooftop terrace, complete with grills and 360-degree views of the surrounding valley, belongs to everyone in the building. That vertical social gradient is held together by a single material move: a perforated brick screen that modulates light, privacy, and thermal gain as conditions change from floor to floor.
A Brick Skin That Works for Its Living


Brick is not an exotic choice in the Río Negro valley. It is the material local crews know, the material local suppliers stock, and the material that ages well in a dry, sun-heavy climate. Leves leans into that familiarity rather than fighting it, deploying brick as the building's dominant exterior skin while pushing its performance further through perforated screen panels. At ground level the facade lifts off white columns, and the brick above reads as a warm, backlit lantern at dusk. Higher up, the same perforation pattern doubles as a sunshade, particularly on the west-facing balconies where afternoon heat gain would otherwise overwhelm shallow apartments.
The decision to let the screen "disassemble" at balcony edges gives the facade textural depth without resorting to decorative appliqué. Light passes through the brick lattice in shifting patterns, turning corridors and balconies into instruments that register the time of day. The manufacturer, PreNova, supplied terracotta units that hold a warm ochre tone, tying the building to the valley's earth palette rather than to the grey concrete vernacular of speculative housing.
Courtyards as Climate Engines


Two internal courtyards do most of the heavy lifting in the building's passive strategy. They pull daylight deep into the plan, create stack-effect ventilation paths, and give every unit a second orientation. The narrow courtyard captured here, lined with perforated brick and capped by a board-formed concrete ceiling with a linear skylight, channels sunlight into a diffused wash that changes character by the hour. The effect is closer to a cloister than a light well.
A metal staircase with translucent panel balustrades threads through one of the courtyards, turning vertical circulation into an event rather than a chore. The rectangular skylight overhead floods the stair with direct light, and the exposed brick wall beside it anchors the space with material gravity. It is the kind of shared passage that encourages the casual encounters Leves wants the building to generate.
The Threshold Between Inside and Out



The apartment interiors are deliberately simple: board-formed concrete ceilings, clean wall planes, and generous glazed doors that open onto balconies screened by the perforated brick lattice. The timber thresholds at these openings mark the transition without blocking it; you step from living room to filtered exterior in a single stride. Foldable partitions inside each unit allow residents to reconfigure rooms as needs change, which matters when the target market spans single professionals to growing families.
What these images communicate most clearly is the quality of light. The brick screens do not simply block the sun; they edit it, projecting shifting grids of shadow across floors and walls. Combined with the rough texture of the board-formed concrete above, the interiors achieve a warmth that owes nothing to applied finishes. The corridor shot, with its brick walls converging toward a glazed balcony opening, demonstrates how even a service passage can become atmospheric when material and light are handled with discipline.
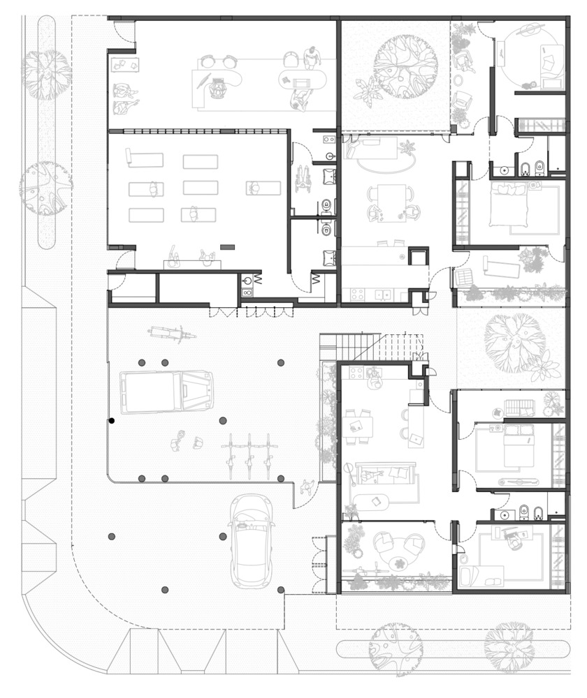
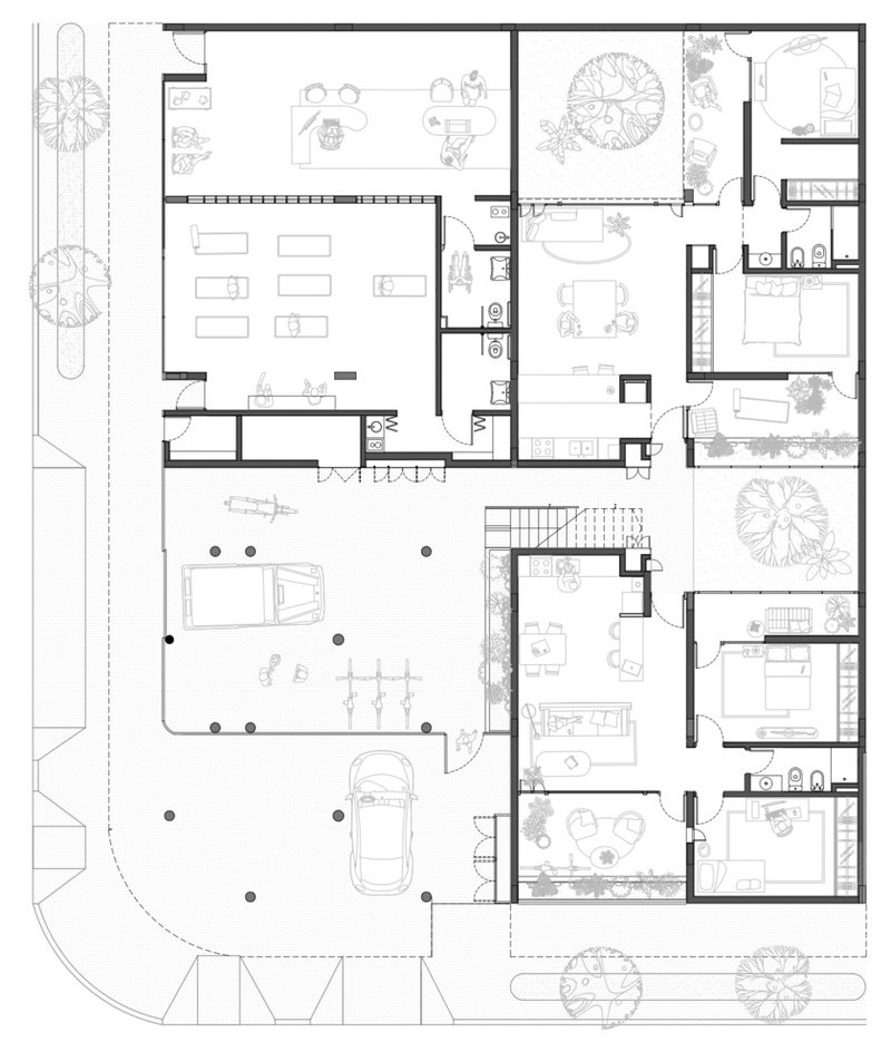
Plans and Drawings

The floor plan reveals the compact logic of the 20-by-20-meter lot. Parking occupies the lower portion of the site, tucked beneath the residential mass so that the street-facing ground floor can remain open and permeable. The two courtyards read clearly as voids punched through the plan, pulling light and air into the center while separating clusters of units. Surrounding vegetation at the lot edges softens the transition to adjacent properties, and the corner condition is exploited to give the building two public faces rather than one.
Why This Project Matters
The Chile 893 Building is not trying to reinvent housing. Its courtyard typology, its brick construction, and its base-body-crown organization are all inherited strategies. What Leves does well is calibrate those strategies to a specific place, a specific workforce, and a specific climate, then refuse to let cost engineering strip away the communal spaces that make a building more than a stack of apartments. The open ground floor, the shared rooftop with its grill stations and panoramic views, the courtyard stairs where neighbors actually cross paths: these are the moves that separate considered design from real estate product.
For a small practice operating in a secondary Argentine city, the project also demonstrates that material intelligence can substitute for budget. Brick screens are not expensive, but they solve privacy, solar control, and facade identity in a single gesture. The board-formed concrete ceilings are structural, not decorative, yet they give every room a handmade texture. When you add it up, Chile 893 makes a persuasive case that good urban housing does not require exotic materials or headline-grabbing form; it requires an architect who understands how public generosity and private comfort can coexist on a tight site.
Chile 893 Building by Arq. Natalia Leves, with collaborator Camila Lopez and interior design by Yenien Salas. General Roca, Río Negro, Argentina. 1,450 m². Completed 2022. Structural engineering and construction by INGESUD. Photographs by German Curihuinca.
About the Studio
Share Your Own Work on uni.xyz
If projects like this are the kind of work you want to make, uni.xyz is a place to publish your own, find collaborators, and enter design competitions.
Popular Articles
Popular articles from the community
Daisuke Ibano and Ryosuke Fujii Shape an Osaka Family Home Around Spline Curves and Forest Views
On a triangular plot left empty since the 1970 Expo, a looping timber-and-stucco house in Osaka opens every room to the adjacent woods.
Studio Gram Unfurls a Concrete Curve Through an Adelaide Queen Anne Villa
In Rose Park, a billowing concrete threshold stitches a century-old house to a sun-chasing pavilion organized around an existing pool.
Biophilic Architecture and Regenerative Stadium Design: Biophilia Lagos by Rachel George
A regenerative stadium in Lagos transforms landfill into a living ecosystem through biophilic architecture, waste reuse, and environmental healing.
Goldstein Heather Doubles a Victorian Terrace in West London with a Four-Storey Lateral Extension
A 244 square metre addition in Stamford Brook transforms a narrow end-of-terrace house into a 500 square metre family home of sculpted arches and daylight.
Similar Reads
You might also enjoy these articles
Olio Towers: A Mid-Rise for Performers That Fuses Housing, Rehearsal, and Stage
Located blocks from Houston's Theater District, this modular tower stacks living units around a central performance atrium.
Oasis: Modular Green Housing Carved into Dhaka's Urban Fabric
A shortlisted Plugin Housing entry reclaims unauthorized settlements in Dhaka with stepped concrete volumes, green roofs, and ventilation-driven design.
Black Hole: A Floating Megastructure for the Post-Physical Era
Emiliano Mazzarotto envisions a spherical, self-scaling arena where e-sports, digital hotels, and holographic stadiums replace traditional public space.
Compact & Sustainable Living in Piraeus: A Four-Level Family Home Built Around Light and Air
A narrow townhouse in one of Greece's densest port cities uses a central atrium and passive strategies to house three generations under one roof.
Explore Architecture Competitions
Discover active competitions in this discipline
The International Standard for Design Portfolios
The Global Benchmark for Architecture Dissertation Awards
The Global Benchmark for Graduation Excellence
Challenge to reimagine the Iron Throne
Comments (0)
Please login or sign up to add comments
No comments yet. Be the first to comment!