Church Renovation in Dallas: Transforming All Saints Dallas by Cunningham Architects
Explore the transformation of All Saints Dallas, a project that converts an old auto dealership into a vibrant community church.
Renovating historical buildings into functional modern spaces presents unique challenges and opportunities. In Dallas, the transformation of a former auto dealership into All Saints Dallas by Cunningham Architects exemplifies a thoughtful approach to church renovation in Dallas, blending historical preservation with contemporary design.



Project Overview: All Saints Dallas
Historical Background and Architectural Challenge
Originally built in the early twentieth century as an auto dealership, the building that now houses All Saints Church had fallen into significant disrepair. The architectural challenge was to revitalize this historic structure, preserving its essential elements while adapting it to meet the needs of a dynamic and growing congregation.



Design Strategy and Execution
Cunningham Architects focused on maintaining the original structural framework, enhancing it with modern materials and innovative architectural solutions. The project involved careful preservation combined with strategic interventions to ensure the building met both the spiritual and functional requirements of the church community.



Key Features of the Renovation
Creation of Entry Courts and Open Spaces
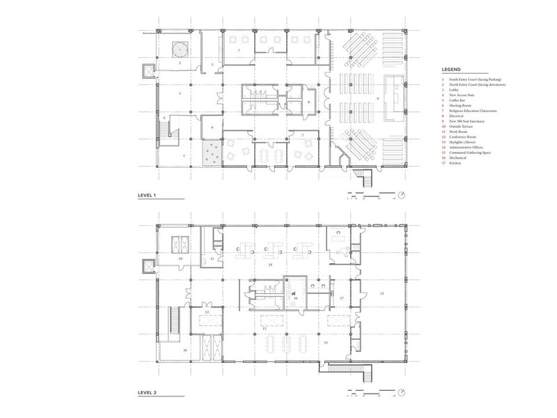
A major architectural intervention was the removal of several exterior masonry walls to establish two inviting entry courts. These courts, one facing the parking area and another toward downtown Dallas, are connected to a central interior lobby. Large sliding glass doors bridge the indoor and outdoor spaces, fostering a welcoming, open environment that can be transformed into a vast gathering area when the doors are open.



The Sanctuary: A Blend of Tradition and Modernity
The heart of the renovation is the new Sanctuary, designed to be a serene yet simple space for worship. It features expansive glass windows that introduce natural light while offering views of the surrounding cityscape. The exposed original structure within the Sanctuary adds a layer of historical authenticity and aesthetic appeal.


Sustainability and Community Impact
Enhancing Community Engagement
The renovation of All Saints Dallas not only provided a new spiritual home for its congregation but also revitalized a part of the city. By converting a disused and deteriorating structure into a vibrant community hub, the project has had a significant positive impact on the local area, encouraging community engagement and urban renewal.



Integration with Urban Environment
The church’s location near downtown Dallas and its open, welcoming design integrate it seamlessly into the urban fabric. This integration helps the church to serve not just as a place of worship but as a community landmark accessible to all city residents.


A New Benchmark for Church Renovations
The transformation of All Saints Dallas sets a new benchmark for church renovation in Dallas, showcasing how adaptive reuse of buildings can serve contemporary needs while respecting historical integrity. This project by Cunningham Architects demonstrates the potential of architectural innovation to create spaces that are both spiritually enriching and community-oriented.



All photographs are work of Robert Tsai
Popular Articles
Popular articles from the community
Flamboyant House by Juliana Camargo + Prumo Projetos
Modern Brazilian house integrating existing tree, pool, and volumes with glass, wood, and transitional spaces blending interior, exterior, and landscape seamlessly.
Inverted Architecture Installation by Studio Link-Arc: Exploring the Intersection of Architecture and Living Organisms
Inverted Architecture Installation by Studio Link-Arc blends mycelium, sustainability, inverted design, ecological cycles, and urban adaptive architecture in Shenzhen.
Treehouse Apartment: A Warm Timber Interior Blending Craft, Play, and Contemporary Living
Warm timber apartment with integrated treehouse, combining natural materials, craftsmanship, and playful design to create a flexible, family-oriented living environment.
The Ken Roberts Memorial Delineation Competition (Krob)
As the most senior architectural drawing competition currently in operation anywhere in the world, it draws hundreds of entries each year, awarding the very best submissions in a series of medium-based categories.
Similar Reads
You might also enjoy these articles
The Ken Roberts Memorial Delineation Competition (Krob)
As the most senior architectural drawing competition currently in operation anywhere in the world, it draws hundreds of entries each year, awarding the very best submissions in a series of medium-based categories.
Waterfront Redevelopment and Urban Revitalization in Mumbai: Forging a New Dawn for Darukhana
A transformative waterfront redevelopment project reimagining Darukhana’s shipbreaking heritage into an inclusive urban future.
OUT-OF-MAP: A Call for Postcards on Feminist Narratives of Public Space
Rhizoma Design and Research Lab invites artists, designers, architects, researchers, and students to reflect on how feminist perspectives can reshape public space. Selected works will be exhibited in Barcelona, October 2026. Submissions open until 15 April 2026.
Documentation Work on Buddhist Wooden Temple
Architectural syncretism and cultural hybridity: A comparative study of the Buddhist temples in Chattogram Hill tracks
Explore Architecture Competitions
Discover active competitions in this discipline
The International Standard for Design Portfolios
The Global Benchmark for Architecture Dissertation Awards
The Global Benchmark for Graduation Excellence
Challenge to reimagine the Iron Throne
Comments (0)
Please login or sign up to add comments
No comments yet. Be the first to comment!