Circular Renovation Architecture in Tokyo: Studyroom#1 by TOOLBOX
A circular renovation in Tokyo by TOOLBOX transforms a maisonette into a sustainable, award-winning model of interior reuse.
Innovating Sustainability Through Circular Renovation
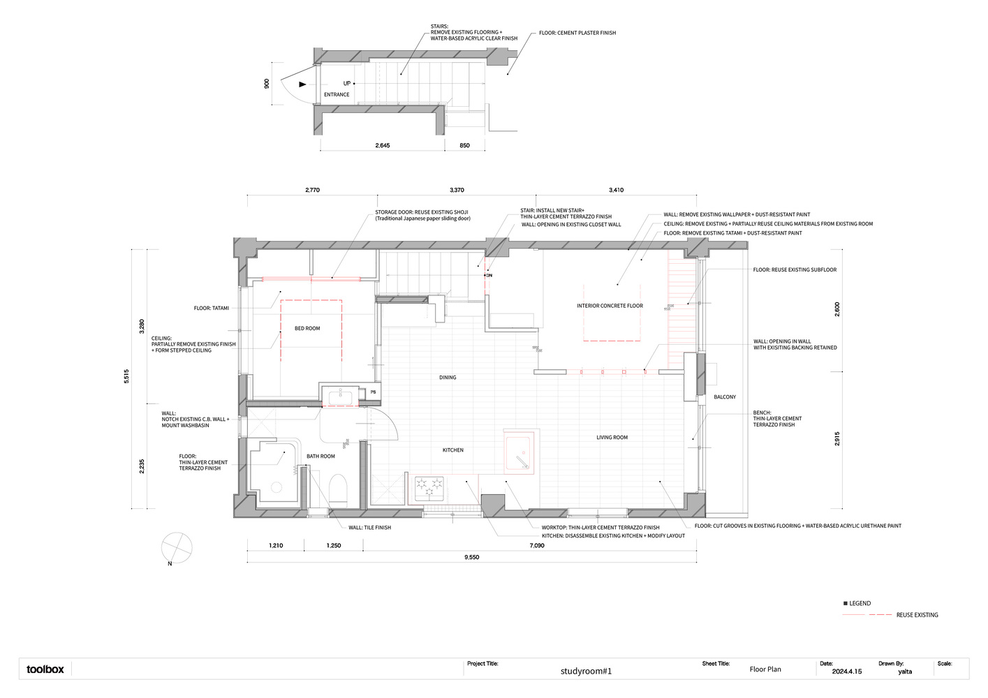
Located in a maisonette-style apartment in Tokyo, Studyroom#1 by TOOLBOX exemplifies the forefront of circular renovation architecture. The 57-square-meter residence underwent a sensitive yet transformative interior overhaul in 2024, challenging traditional renovation practices with a “ReMAKE” approach that emphasizes reuse, resourcefulness, and design experimentation. The result is a space that not only honors the existing structure but also sets a benchmark for sustainable design practices in urban residential architecture.




Redefining Renovation with the ReMAKE Approach
TOOLBOX, a Tokyo-based company known for its curated housing components and artisanal design solutions, undertook Studyroom#1 as a research-based project. Instead of adopting the conventional method of full-skeleton renovation, the architects, Kimiyoshi Arakawa and Iori Hitosugi, chose to retain and reinterpret the apartment’s existing layout and materials. This strategy minimized waste, cut costs, and opened up new avenues for creative design, in line with circular economy principles.



The original interior had suffered from years of piecemeal remodeling, resulting in a fragmented aesthetic. However, rather than stripping everything away, TOOLBOX embraced the imperfections and existing materials as a design opportunity. The transformation focused on targeted interventions and adaptive reuse, with craftsmanship at the core of every decision.



Spatial Adjustments for Better Flow and Light
The maisonette's lower level houses the entrance and a reoriented staircase, now improved for spatial clarity and movement. The original cranked staircase was modified by adding treads and redirecting its course, making circulation more intuitive. At the top, a closet was opened up to introduce a new entry point and allow natural light to reach deeper into the stairwell—turning a once-dark area into a bright and welcoming transition space.



Material strategy was another highlight. Instead of reapplying new wall finishes, the architects left surfaces raw, using a clear coat to protect and celebrate the textures left behind by removed wallpaper. A ceiling panel salvaged from a former Japanese-style room was repurposed to conceal new electrical wiring, exemplifying the blend of respect for existing elements with modern needs.



Adaptive Kitchen Redesign and Surface Reinterpretation
One of the most impactful changes was the reconfiguration of the kitchen. The existing linear system kitchen was split and reshaped into an L-formation by repositioning the sink unit closer to the balcony. At the point of this transformation, a plaster finish was hand-applied to subtly blend the intervention into the overall aesthetic. This mix of industrial precision and artisanal detailing is a signature of TOOLBOX’s approach.




The floor, rather than being replaced, was refined through surface coatings. Walls were selectively opened to improve sightlines and create a feeling of openness without physically enlarging the space. These minimal but meaningful moves demonstrate how circular renovation can also be a powerful spatial strategy.




Award-Winning Innovation with a Public Purpose
Studyroom#1 was not only an internal experiment but a contribution to the broader architectural community. TOOLBOX has made its techniques and findings publicly available, promoting reproducibility and accessibility in sustainable interior design. For its ingenuity and environmental consciousness, the project received the Grand Prix in the "Renovation of the Year 2024" awards.




This residence shows how circular renovation architecture can address contemporary urban challenges—offering solutions that are cost-effective, low-impact, and rich in character. It challenges the idea that sustainability must compromise design quality and instead proposes a deeply textured, thoughtful alternative that celebrates continuity and innovation in equal measure.



All Photographs are works of Akira Nakamura
Popular Articles
Popular articles from the community
Gads Hill Early Learning Center by JGMA: Adaptive Reuse Shaping Community-Focused Educational Architecture
Adaptive reuse transforms fragmented structure into vibrant early learning center with playful façade, natural light, and community-focused sustainable design.
Free Architecture Competitions You Can Enter Right Now
No entry fees, real prizes. Here are the best free architecture competitions open for submissions in 2026.
The Ken Roberts Memorial Delineation Competition (Krob)
As the most senior architectural drawing competition currently in operation anywhere in the world, it draws hundreds of entries each year, awarding the very best submissions in a series of medium-based categories.
Similar Reads
You might also enjoy these articles
Free Architecture Competitions You Can Enter Right Now
No entry fees, real prizes. Here are the best free architecture competitions open for submissions in 2026.
Top 15 Architecture Competitions to Enter in 2026
From student-friendly idea competitions to prestigious international awards, here are the best architecture competitions open for entries in 2026. Updated regularly.
DIY & Engineering in Computational Design : Enter the BeeGraphy Design Awards
Showcase Your Creativity with Computational Design and Open Source Projects

Innovative Design Solutions: Award-Winning Projects from Recent Architecture Competitions
Exploring award-winning architectural projects shaping the future of design, sustainability, and community.
Explore Architecture Competitions
Discover active competitions in this discipline
The International Standard for Design Portfolios
The Global Benchmark for Architecture Dissertation Awards
The Global Benchmark for Graduation Excellence
Challenge to reimagine the Iron Throne
Comments (0)
Please login or sign up to add comments
No comments yet. Be the first to comment!