COA ARQUITECTURA unveils the stunning 'Vigilant Abode' - a house that stands guard with architectural elegance
What makes the Watchman House by COA ARQUITECTURA a remarkable example of modern architecture?

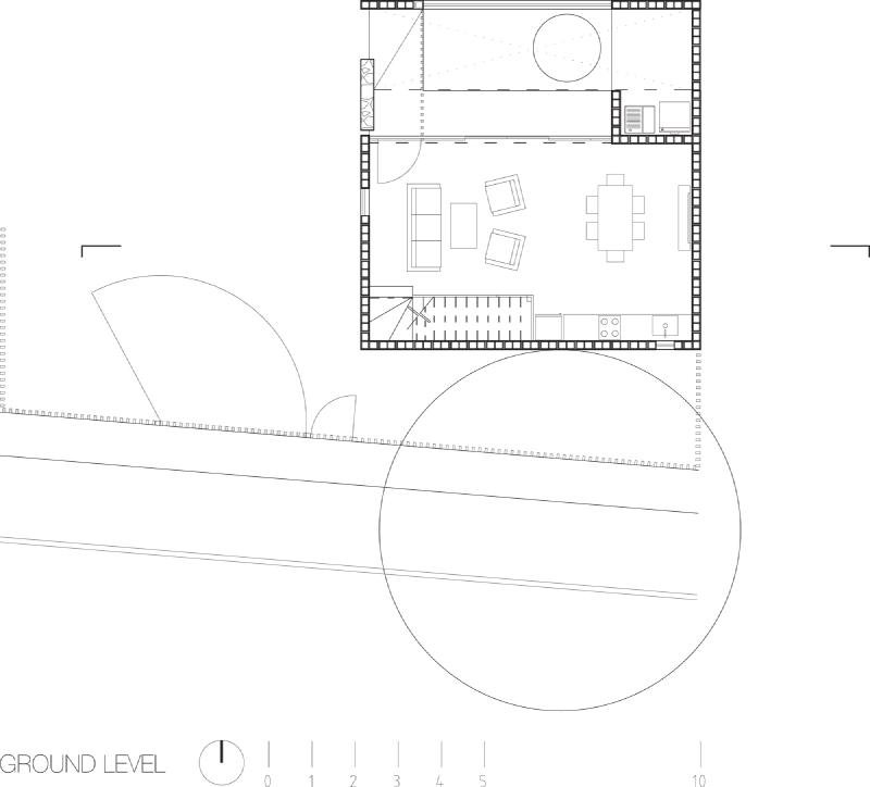
This house, situated on a 62-square-meter corner lot, is perfect for a watchman and his family. It features a living room, dining area, kitchen, two bedrooms, a bathroom, and a laundry patio.
A house was sought that could be quickly and efficiently constructed with minimal elements, yet still provide a dignified home for a family.
The walls of the lower and upper levels are composed of integrated visible blocks, jalcreto, and concrete joists slabs (a common construction system in Jalisco). The floors are polished concrete, the dividing walls are made of pine wood, and the window frames are steel.
The house appears as a solid, impenetrable box from the outside; however, it opens up to an interior patio for the social area.
A low wall, a steel fence, and a concrete canopy vestibule guard the entrance from the outside.
The stair opening interrupts the concrete joists with a steel beam, creating a double-height space that dignifies the act of ascending the stairs. The pine wood dividing walls provide a warm atmosphere in the vestibule before entering the two bedrooms.
The laundry patio is partially concealed by a low wall and sheltered by the same continuous canopy that extends from the entryway.
By modulating, combining, and contrasting textures and materials, we aimed to achieve both simplicity and a high-quality spatial experience.










Popular Articles
Popular articles from the community
YOAP Architects Round a Corner in Yeongcheon with a Cylindrical Community Hub
A 197-square-meter brick and ribbed-clad tower turns a forgotten alley corner in South Korea into a public garden with a low threshold.
Ippolito Fleitz Group Identity Architects Turn Eight Floors in Shanghai into a Vertical Creative City
Publicis Groupe's new headquarters in Xintiandi reimagines the office as a courtyard-driven urban landscape stacked across eight floors.
BAST Slots a Four-Story Glass House into a Narrow Gap Between Toulouse Townhouses
In the dense Bonnefoy district, a stepped infill building merges home and office while preserving a majestic hackberry tree.
RDTH architekti Rips Out Nearly Every Wall in a Prague Apartment and Replaces Them with Furniture
A 101-square-meter post-war flat in Prague trades rigid partitions for a single rotated furniture block, curtains, and glass concrete.
Similar Reads
You might also enjoy these articles
Rede Arquitetos Builds an Open-Air School in Fortaleza That Doubles as a Neighborhood Living Room
Educar II SESC-CE folds sports, dance, and community gathering into a courtyard campus wrapped in mesh and tropical color.
NZ10 Apartment by auba studio: Adaptive Reuse in Palma de Mallorca
Adaptive reuse apartment transforms bakery into light-filled home with patios, privacy layers, and wood interiors enhancing urban living experience.
TGK Nirasaki Plant: A Smart Factory Blending Technology, Landscape, and Wellness
Smart factory in Japan blending IoT manufacturing, scenic trail design, natural ventilation, and landscape integration to enhance user experience and sustainability.
House in Macieira by Nelson Resende Arquitecto: A Sensitive Transformation Rooted in Context and Materiality
Adaptive reuse house blending wood, glass, and landscape, transforming traditional Portuguese architecture into a warm, open, contemporary living environment.
Explore Architecture Competitions
Discover active competitions in this discipline
The International Standard for Design Portfolios
The Global Benchmark for Architecture Dissertation Awards
The Global Benchmark for Graduation Excellence
Challenge to reimagine the Iron Throne
Comments (0)
Please login or sign up to add comments
No comments yet. Be the first to comment!