Coastal Home Design in India: Billy O’Tea House by STO.M.P
An innovative coastal home design in India, blending nautical themes and sustainable materials to create a unique, culturally resonant residence.
Situated on the outskirts of the port city of Tuticorin, the Billy O’Tea House by STO.M.P exemplifies innovative coastal home design in India. This 5000 ft² residence embodies the essence of the relentless shoreline while balancing East Indian cultural elements with the coastal environment. This article explores the architectural strategies and design choices that make the Billy O’Tea House a standout example of coastal home design in India.




Project Background
Vision and Location
The Billy O’Tea House is designed to reflect the synergy between the cultural background of East India and the coastal setting of Tuticorin. The house is personified as a docked ship, offering solace and a connection to the sea.


Core Design Intent
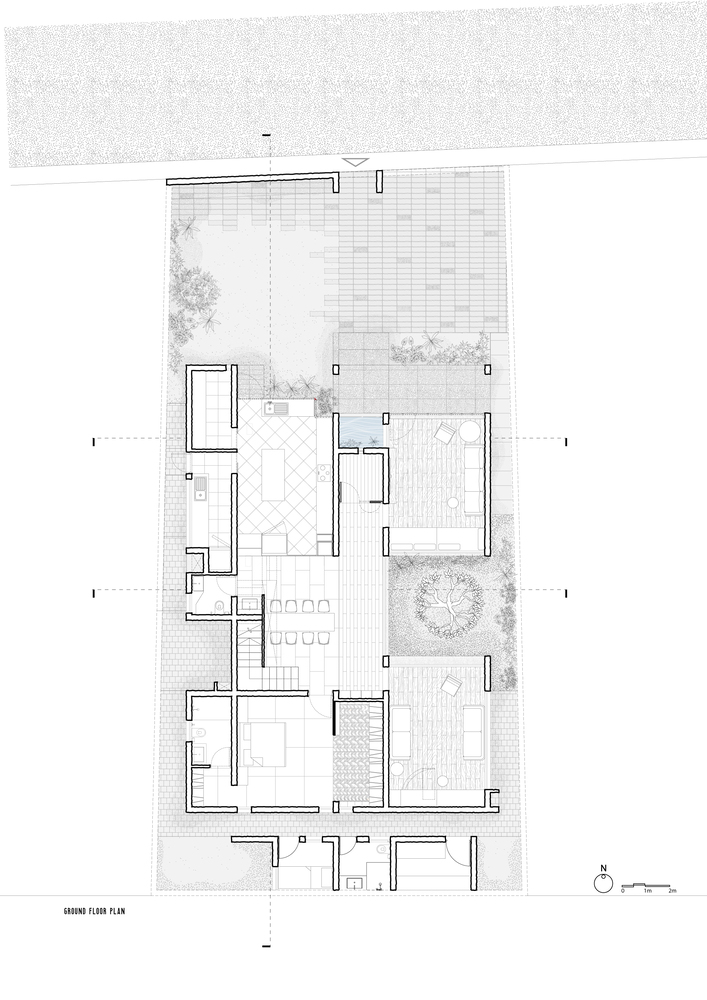
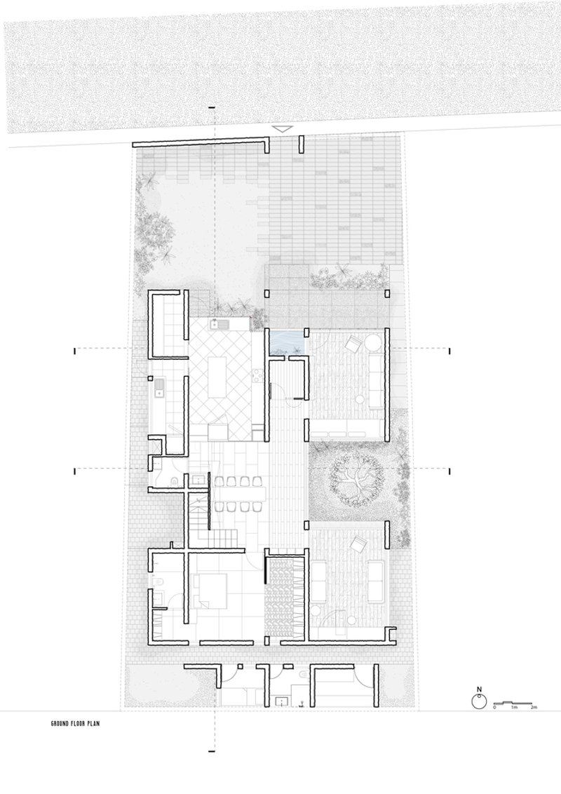
The core intent of the residence is to symbolize magical realism, which cascades throughout the spaces. This is achieved through elements like seashell inlays on rustic slabs, flooring patterns that mimic waves and rippling water, and an amphitheater that resembles a rowing vessel.


Architectural Elements
Material and Aesthetic Choices
Rustic and Nautical Themes
The facade is clad with bricks to evoke a sense of antiquity, while creepers give the appearance of weeds on an abandoned vessel. Metal canopies with water spouts further enhance the nautical theme by resembling the overflow drains of a ship.



Integration of Natural Elements
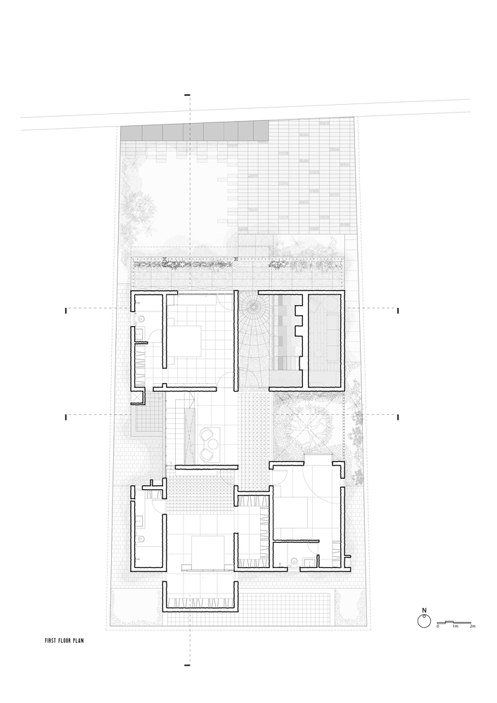
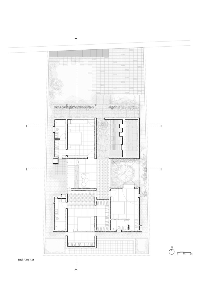
The design incorporates various natural elements to create a cohesive living environment. Tall windows and open spaces ensure ample light and ventilation, while the east-facing courtyard allows sunlight to envelop the interior spaces with palpable energy.


Functional Design
Open and Flexible Spaces
The layout includes multiple spillover areas, such as extending lawns, front yards, and an open-air theatre. These spaces are designed to cater to the family's seasonal themed parties, ensuring a seamless flow between indoor and outdoor areas.




Courtyard and Microclimate
An urban prairie to the north contributes to the microclimate, enhancing the flow toward the plot. The courtyard, scooped out from the mass, blurs the boundaries between living spaces, providing light and ventilation to adjacent areas.




Environmental and Cultural Impact
Sustainable Design Practices
The use of local materials, such as calcium-based stones, kota, Udaipur pink marble, Indian Arna marble, Jaisalmer yellow marble, and terrazzo, ensures sustainability and reduces environmental impact. These materials, combined with sleek lines and bold hues, create a holistic living space that resonates with the coastal theme.



Cultural Integration
The design pays homage to Tuticorin's maritime heritage by resembling a ship. This cultural reference is further emphasized through the use of materials and design elements that reflect the city's historical and cultural significance.





The Billy O’Tea House by STO.M.P is a prime example of coastal home design in India. By integrating nautical themes, sustainable materials, and flexible spaces, the project creates a unique living environment that honors both the coastal setting and the cultural heritage of Tuticorin. This innovative approach sets a new standard for coastal home design, demonstrating how thoughtful architecture can enhance both functionality and aesthetic appeal.





All photographs are work of f/8
Popular Articles
Popular articles from the community
BICA Arquitectos Buries a Coastal Home in a Man-Made Dune on Portugal's Tróia Peninsula
A 300-square-meter house of timber, sand mortar, and travertine dissolves into the dune landscape it helped regenerate on the Alentejo coast.
20 Most Popular Office Building Projects of 2025
From biophilic workspaces in India to net-positive energy offices in New Delhi, 20 office building projects that defined architecture in 2025.
1-1 Architects Builds a Nagoya House and Office from Decades of Stockpiled Timber
A 69-square-meter tower in dense residential Nagoya transforms surplus lumber into a home and workplace for a construction company.
Biophilic Architecture and Regenerative Stadium Design: Biophilia Lagos by Rachel George
A regenerative stadium in Lagos transforms landfill into a living ecosystem through biophilic architecture, waste reuse, and environmental healing.
Similar Reads
You might also enjoy these articles
Olio Towers: A Mid-Rise for Performers That Fuses Housing, Rehearsal, and Stage
Located blocks from Houston's Theater District, this modular tower stacks living units around a central performance atrium.
Oasis: Modular Green Housing Carved into Dhaka's Urban Fabric
A shortlisted Plugin Housing entry reclaims unauthorized settlements in Dhaka with stepped concrete volumes, green roofs, and ventilation-driven design.
Black Hole: A Floating Megastructure for the Post-Physical Era
Emiliano Mazzarotto envisions a spherical, self-scaling arena where e-sports, digital hotels, and holographic stadiums replace traditional public space.
Compact & Sustainable Living in Piraeus: A Four-Level Family Home Built Around Light and Air
A narrow townhouse in one of Greece's densest port cities uses a central atrium and passive strategies to house three generations under one roof.
Explore Architecture Competitions
Discover active competitions in this discipline
The International Standard for Design Portfolios
The Global Benchmark for Architecture Dissertation Awards
The Global Benchmark for Graduation Excellence
Challenge to reimagine the Iron Throne
Comments (0)
Please login or sign up to add comments
No comments yet. Be the first to comment!