Cognac Tasting Room Design by Elluin Duolé Gillon: A Blend of Heritage and Modern Architecture
An exploration of Elluin Duolé Gillon's Cognac Tasting Room, blending heritage and modern design to celebrate Martell's craftsmanship.
A Masterful Fusion of Tradition and Innovation
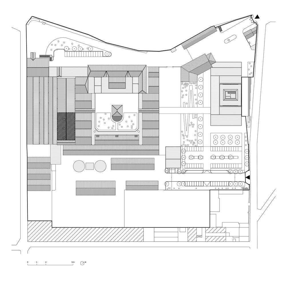
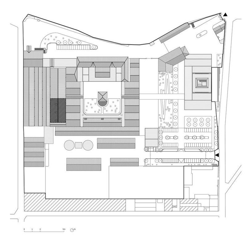
The Tasting Room for Master Blenders by Elluin Duolé Gillon Architecture in Cognac, France, exemplifies the harmonious blend of historical reverence and contemporary design. Nestled within a wine and spirits storehouse, this project embodies the essence of craftsmanship, storytelling, and architectural ingenuity.
With a sprawling area of 610 m², the project, completed in 2019 under the direction of lead architect Stanislas Elluin, showcases the rich heritage of the renowned Martell cognac house. This tasting room is more than a functional space; it is an immersive journey into the art and magic of cognac creation.


Architectural Context: Embracing the Winery's Raw Aesthetic
The tasting room is situated within a historic storehouse characterized by its rugged charm. Key architectural elements include:
- Concrete flooring: A raw and earthy texture that grounds the space.
- Blackened walls: Covered in torulas (black mushrooms), evoking an organic, aged quality.
- Thin metal framework: Housing copper stills and oak barrels.
These elements are seamlessly integrated to preserve the industrial character of the building while providing a backdrop for the modern tasting room.


Design Philosophy: An Assemblage of Craftsmanship
The design draws inspiration from the cellar masters' meticulous craft in blending vintages. The tasting room itself acts as a metaphor for this process, combining diverse materials into a cohesive, minimalist form. Key features include:
- Raw steel structure: Weighing 31 tonnes, coated with calamine for a textured finish.
- Minimalist silhouette: Emphasizing simplicity and function.
- Monumental doors: Welcoming visitors with a dramatic entrance.
The elevated placement of the room between four existing posts ensures its prominence within the storehouse while maintaining a subtle dialogue with its surroundings.



Interior Experience: The Art of Tasting
The interior design prioritizes the tasting experience, combining tactile materials and carefully curated lighting to create a ritualistic ambiance. Notable design elements include:
- Tasting table: Crafted from layers of sheet steel with a matte white surface that enhances the cognac's amber hues.
- Copper chandelier: A centerpiece reflecting the warm tones of the cognac.
- Oak cognac library: A striking backdrop that connects visitors with the heritage of the house.
The lighting design accentuates the textures of the walls, the shimmering barrels, and the glowing cognac bottles, creating a sensory pathway through the space.


Materials and Sustainability: The Heart of the Design
Elluin Duolé Gillon Architecture utilized materials that echo the craftsmanship of cognac-making:
- Dekton® surfaces: From the Solid Collection by Cosentino, known for durability and sustainability.
- Reggiani lighting: Ensuring precision in illumination.
- Sammode fixtures: Blending technical performance with aesthetic appeal.
The choice of materials reflects a commitment to both form and function, aligning with sustainable practices.


Creating a Space for Legacy and Innovation
The Tasting Room for Master Blenders is more than an architectural project; it is a storytelling device that bridges Martell’s three centuries of expertise with contemporary design sensibilities. Visitors are invited to immerse themselves in a space where history, craftsmanship, and innovation converge.


A Landmark in Winery Architecture
The Cognac Tasting Room Design by Elluin Duolé Gillon is a testament to the transformative power of architecture. By preserving the essence of its surroundings while embracing modernity, it serves as a beacon of inspiration for architects and connoisseurs alike. This project not only enhances the tasting experience but also celebrates the enduring legacy of one of France’s most prestigious cognac houses.


All the photographs are work of Ivan Mathie
Popular Articles
Popular articles from the community
Split House: A Compact Urban Home Blending Privacy, Light, and Flexible Living in Japan
Compact Japanese home featuring DOMA space, flexible café potential, passive lighting, privacy zoning, and sustainable urban living design.
Alton Cliff House: A Harmonious Retreat by f2a Architecture in Lake Country, Canada
Alton Cliff House blends corten steel, prefabrication, and sustainable design, creating a luxurious, energy-efficient retreat perched on Canadian cliffs.
The Ken Roberts Memorial Delineation Competition (Krob)
As the most senior architectural drawing competition currently in operation anywhere in the world, it draws hundreds of entries each year, awarding the very best submissions in a series of medium-based categories.
Similar Reads
You might also enjoy these articles
The Ken Roberts Memorial Delineation Competition (Krob)
As the most senior architectural drawing competition currently in operation anywhere in the world, it draws hundreds of entries each year, awarding the very best submissions in a series of medium-based categories.
Waterfront Redevelopment and Urban Revitalization in Mumbai: Forging a New Dawn for Darukhana
A transformative waterfront redevelopment project reimagining Darukhana’s shipbreaking heritage into an inclusive urban future.
OUT-OF-MAP: A Call for Postcards on Feminist Narratives of Public Space
Rhizoma Design and Research Lab invites artists, designers, architects, researchers, and students to reflect on how feminist perspectives can reshape public space. Selected works will be exhibited in Barcelona, October 2026. Submissions open until 15 April 2026.
Documentation Work on Buddhist Wooden Temple
Architectural syncretism and cultural hybridity: A comparative study of the Buddhist temples in Chattogram Hill tracks
Explore Architecture Competitions
Discover active competitions in this discipline
The International Standard for Design Portfolios
The Global Benchmark for Architecture Dissertation Awards
The Global Benchmark for Graduation Excellence
Challenge to reimagine the Iron Throne
Comments (0)
Please login or sign up to add comments
No comments yet. Be the first to comment!