Community-Centric Office Design: The Innovative Approach of Office Nomura-Sanko by note architects
Exploring Office Nomura-Sanko's design by note architects, showcasing a community-centric office space that integrates seamlessly with its urban environment in Shinagawa City, Japan.
In an era where the line between the workplace and the local community increasingly blurs, the concept of community-centric office design has emerged as a pivotal trend in contemporary architecture. This approach prioritizes creating spaces that foster a connection between office environments and their surrounding communities. A prime example of this innovative architectural movement is the Office Nomura-Sanko project in Shinagawa City, Japan, designed by note architects.




The Vision Behind Office Nomura-Sanko
The Office Nomura-Sanko, nestled near a nostalgically atmospheric shopping street, represents a paradigm shift in office design. It embodies the client's desire for an office not just as a place of business but as a space open to and integrated with the local community. This vision was brought to life by note architects through the ingenious use of space, light, and material, aiming to create an environment where every individual feels welcome.





Architectural Innovation: The Hangen Tangent
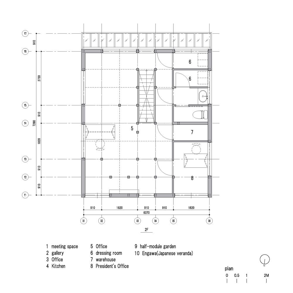
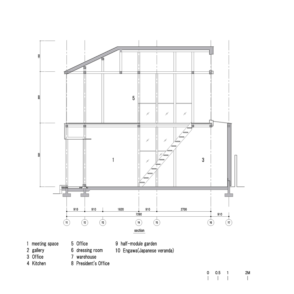
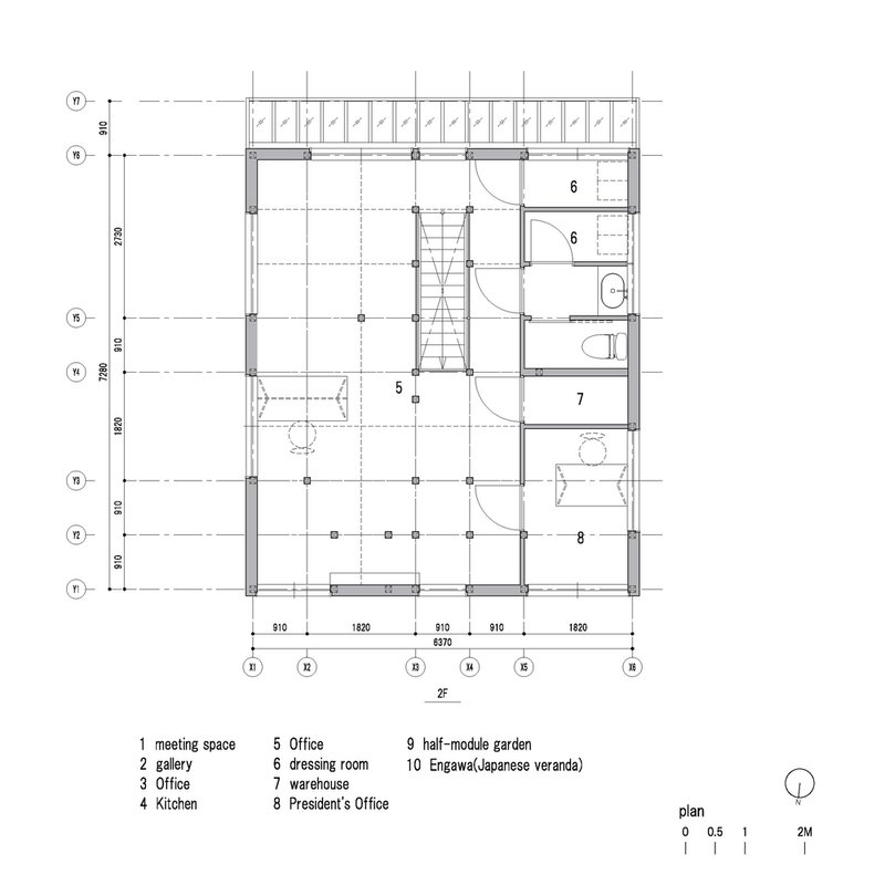
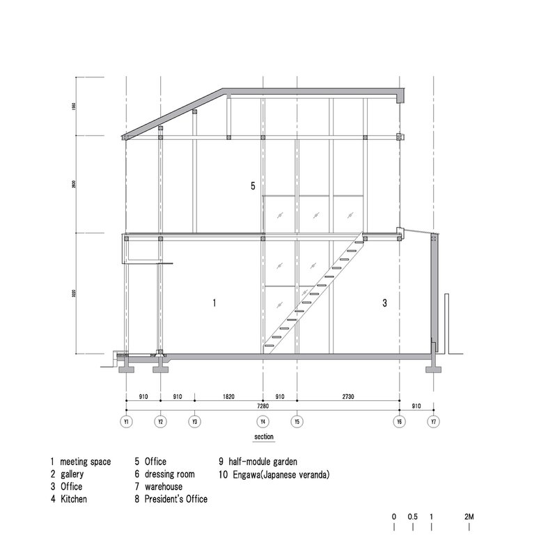
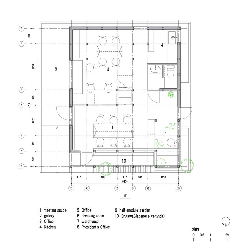
At the heart of Office Nomura-Sanko's design is the innovative concept of the "Hangen tangent." This 910mm wide space, inspired by the traditional Japanese module of Hangen, serves as a tangible connection between the office and the city. It is a flexible area that can transform its role depending on its interaction with the urban environment - from an engawa (a traditional Japanese wood deck) that offers a unique perspective of the city to a garden that brings nature into the office. This adaptability allows the office to maintain a dynamic relationship with the changing cityscape.






Engawa: Blurring the Lines Between Inside and Out
One of the most striking features of Office Nomura-Sanko is its use of engawa. This intermediate area not only serves as a physical transition between the inside and the outside but also as a metaphorical bridge connecting the office workers with the local community. By situating the engawa at different viewing heights, note architects have created a space where individuals can experience the city from various perspectives, thereby enhancing the sense of openness and connection to the local environment.





Light and Space: A New Way of Working
The design of Office Nomura-Sanko emphasizes the role of light and spatial organization in creating a welcoming work environment. Polycarbonate top lights and strategically placed windows ensure that natural light permeates the office, linking the interior space with the rhythms of the city outside. This thoughtful arrangement encourages a work atmosphere where moments of reflection and connection to the urban landscape are integral to the daily experience.







Redefining Office Architecture
Office Nomura-Sanko by note architects stands as a testament to the potential of community-centric office design. By reimagining the relationship between workspaces and their urban contexts, note architects have created a space that is not only functional but also deeply integrated with the fabric of the local community. This project sets a new benchmark for office design, emphasizing flexibility, openness, and a profound connection to the surrounding environment.






All the photographs are work of Kenta Hasegawa
Popular Articles
Popular articles from the community
Treehouse Apartment: A Warm Timber Interior Blending Craft, Play, and Contemporary Living
Warm timber apartment with integrated treehouse, combining natural materials, craftsmanship, and playful design to create a flexible, family-oriented living environment.
The Ken Roberts Memorial Delineation Competition (Krob)
As the most senior architectural drawing competition currently in operation anywhere in the world, it draws hundreds of entries each year, awarding the very best submissions in a series of medium-based categories.
On the Brooks House by Monsoon Collective – A Contemporary Kerala Home Rooted in Tradition
Kerala home blending tradition and modernity with water-inspired design, brick architecture, courtyard planning, and sustainable rainwater harvesting strategies.
Solar Steam: A Climate-Responsive Architecture That Redefines the Monument
A climate-responsive memorial architecture that transforms heat, decay, and time into a living system reflecting humanity’s ecological impact.
Similar Reads
You might also enjoy these articles
The Ken Roberts Memorial Delineation Competition (Krob)
As the most senior architectural drawing competition currently in operation anywhere in the world, it draws hundreds of entries each year, awarding the very best submissions in a series of medium-based categories.
Waterfront Redevelopment and Urban Revitalization in Mumbai: Forging a New Dawn for Darukhana
A transformative waterfront redevelopment project reimagining Darukhana’s shipbreaking heritage into an inclusive urban future.
OUT-OF-MAP: A Call for Postcards on Feminist Narratives of Public Space
Rhizoma Design and Research Lab invites artists, designers, architects, researchers, and students to reflect on how feminist perspectives can reshape public space. Selected works will be exhibited in Barcelona, October 2026. Submissions open until 15 April 2026.
Documentation Work on Buddhist Wooden Temple
Architectural syncretism and cultural hybridity: A comparative study of the Buddhist temples in Chattogram Hill tracks
Explore Office Building Competitions
Discover active competitions in this discipline
The International Standard for Design Portfolios
The Global Benchmark for Architecture Dissertation Awards
The Global Benchmark for Graduation Excellence
Challenge to reimagine the Iron Throne
Comments (0)
Please login or sign up to add comments
No comments yet. Be the first to comment!