Contemporary Brazilian House Design with Preservation Integration: Península House by Arquitetos Associados + BIRI
A contemporary Brazilian home blending modern design, natural integration, and sustainable living, designed by Arquitetos Associados and BIRI.
The Península House, designed by Arquitetos Associados in collaboration with BIRI, is a stunning example of contemporary Brazilian architecture. Located in Brazil, this residence seamlessly blends modern design with the surrounding preservation area at the rear of the lot. The project evolved over two distinct phases, adapting to new ownership during the COVID-19 pandemic while maintaining its core spatial and aesthetic principles.




The result is an introspective yet open house that prioritizes integration with its natural context, utilizing expansive structural spans, refined materials, and sustainable design solutions.



The Evolution of the Design Concept
The design of the Península House was carried out in two complementary phases. The original layout prioritized two contrasting relationships: a private, sheltered front façade facing the street, and an open, integrated relationship with the lush preservation area at the back of the lot.
When new ownership took over during the pandemic, the project underwent modifications to meet the family’s demands. Despite these changes, the essence of the design remained intact:
- The social spaces were positioned on the ground floor for openness and accessibility.
- The intimate areas, such as bedrooms and circulation zones, were placed on the upper floor.
This spatial arrangement promotes fluidity while providing double-height integration between the indoor garden and upper-level circulation.





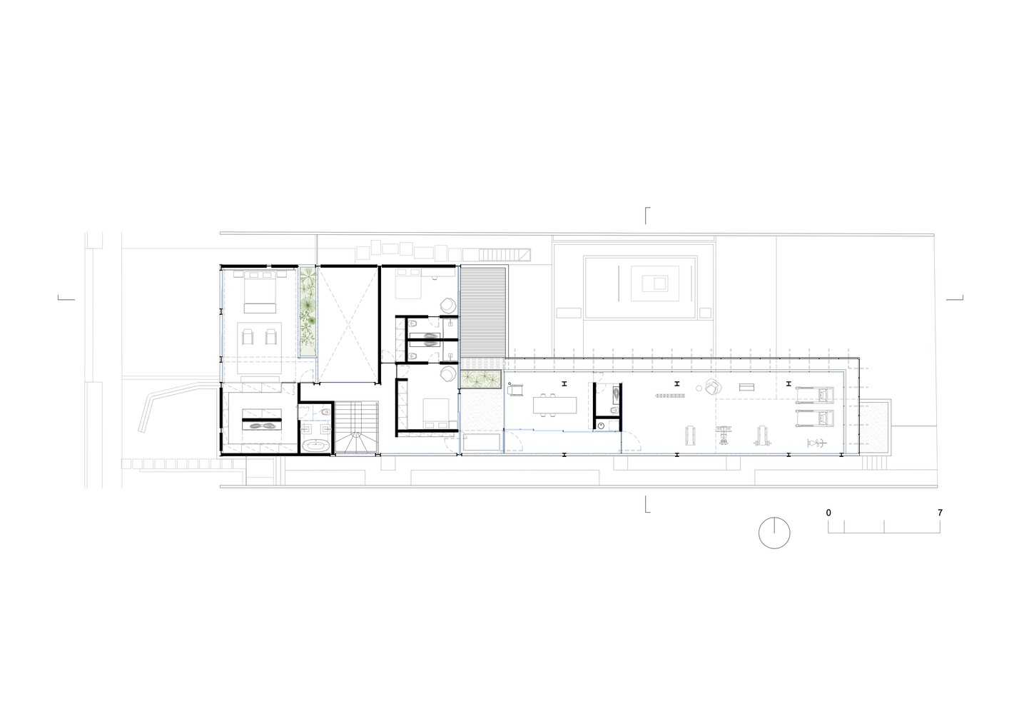
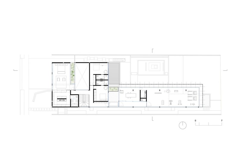
Spatial Organization and Functional Design
A clear distinction was established between served spaces (social and living areas) and server spaces (service zones), ensuring a logical and efficient organization. This approach creates spatial voids that emphasize the connection between internal and external environments.



The house features a metal structure with steel profiles, which allows for expansive spans and minimizes the need for compartmentalization. This structural system enables large, open spaces free of visual obstructions, contributing to a light, airy atmosphere throughout the house.




Ground Floor: Social and Outdoor Living
The ground floor of the Península House was designed to foster social interaction and outdoor enjoyment. Large openings and the seamless integration of indoor and outdoor spaces enhance the feeling of openness. The pool area, a standout feature, was strategically implemented to capitalize on sunlight and create diverse spatial experiences.
The pool includes various levels and zones, such as:
- A deck for relaxation
- A small beach area
- A swimming section
- A fireplace area
These design elements harmonize with the natural environment while offering flexibility for different activities.




Upper Floor: Intimacy and Flexibility
The upper floor houses the private bedrooms, a gym, and an office. These spaces prioritize comfort and functionality, with views carefully curated to connect occupants with the preservation area.
A second skin of pivoting metal brise-soleils protects the northern façade from intense sunlight, ensuring natural cooling while enhancing visual appeal. Additionally, the landscaped terrace planned in the initial project was expanded by extending the slab over the laundry and kennel areas.
This extension allows for multifunctional spaces, balancing privacy with opportunities for work and leisure.




Sustainability and Integration with Nature
One of the defining aspects of the Península House is its respectful integration with the surrounding environment. The design prioritizes natural light, ventilation, and a seamless relationship with the landscape.
Large windows and open spaces blur the boundaries between the house and the preservation area, allowing the natural beauty of the surroundings to become an integral part of the architectural experience.
The thoughtful positioning of the pool and outdoor spaces encourages sunlight optimization while reducing energy demands for lighting and cooling.





Materiality and Architectural Aesthetic
The Península House is a celebration of clean lines, modern materials, and minimalist elegance. The metal structure provides strength and flexibility, enabling the creation of large, unbroken spans.
Natural materials and finishes enhance the overall aesthetic, grounding the modern structure within its natural context. The interplay of light, shadow, and textures creates a dynamic, visually engaging environment that evolves throughout the day.





The Península House by Arquitetos Associados and BIRI exemplifies the best of contemporary Brazilian house design. By carefully balancing introspection with openness, the architects have created a residence that harmonizes modern living with its natural surroundings.


From the innovative structural system to the thoughtful integration of outdoor spaces, the Península House stands as a model of sustainability, elegance, and functional design. It demonstrates how architecture can adapt to changing needs while maintaining its core relationship with the environment.


All Photographs are work of Leonardo Finotti
Popular Articles
Popular articles from the community
Fifth NRE Jazz Club – De Bever Architecten: Eindhoven’s Revitalized Cultural Hub
Historic gas factory transformed into Fifth NRE Jazz Club blending modern sustainability, jazz culture, dining, and heritage architecture seamlessly.
Split House: A Compact Urban Home Blending Privacy, Light, and Flexible Living in Japan
Compact Japanese home featuring DOMA space, flexible café potential, passive lighting, privacy zoning, and sustainable urban living design.
Inverted Architecture Installation by Studio Link-Arc: Exploring the Intersection of Architecture and Living Organisms
Inverted Architecture Installation by Studio Link-Arc blends mycelium, sustainability, inverted design, ecological cycles, and urban adaptive architecture in Shenzhen.
Similar Reads
You might also enjoy these articles
The Ken Roberts Memorial Delineation Competition (Krob)
As the most senior architectural drawing competition currently in operation anywhere in the world, it draws hundreds of entries each year, awarding the very best submissions in a series of medium-based categories.
Waterfront Redevelopment and Urban Revitalization in Mumbai: Forging a New Dawn for Darukhana
A transformative waterfront redevelopment project reimagining Darukhana’s shipbreaking heritage into an inclusive urban future.
OUT-OF-MAP: A Call for Postcards on Feminist Narratives of Public Space
Rhizoma Design and Research Lab invites artists, designers, architects, researchers, and students to reflect on how feminist perspectives can reshape public space. Selected works will be exhibited in Barcelona, October 2026. Submissions open until 15 April 2026.
Documentation Work on Buddhist Wooden Temple
Architectural syncretism and cultural hybridity: A comparative study of the Buddhist temples in Chattogram Hill tracks
Explore Architecture Competitions
Discover active competitions in this discipline
The International Standard for Design Portfolios
The Global Benchmark for Architecture Dissertation Awards
The Global Benchmark for Graduation Excellence
Challenge to reimagine the Iron Throne
Comments (0)
Please login or sign up to add comments
No comments yet. Be the first to comment!