Contemporary Civic Center Architecture in Carpi by Archiplanstudio
Archiplanstudio’s Civic Center in Carpi redefines civic architecture through urban regeneration, cultural symbolism, and contemporary concrete facades.
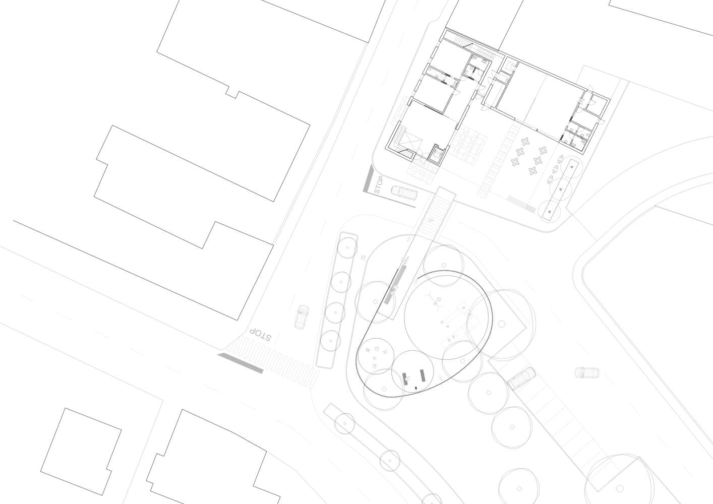
The Civic Center in Carpi, Italy, designed by Archiplanstudio, is a 600 m² cultural landmark completed in 2025. Located on the edge of the consolidated urban fabric, the project redefines the relationship between town, road, and public space. With a design that bridges tradition and contemporary form, the civic building enhances Carpi’s cultural identity and urban landscape.




Urban Context and Positioning
Set at the threshold of Carpi d’Adige, the two-story structure establishes a strong urban presence along its longitudinal axis, aligning with the road that leads to the historic church. On its shorter side, the building is conceived as the new entrance front to the town, creating a civic threshold that invites both residents and visitors.



Opposite the road, a lower building defines the balance of the composition. Its subtle retreat generates a public square-like space, emphasized by a small garden, where community gatherings and cultural activities can unfold.




Architectural Form and Facade Design
The facades reinterpret classic urban front typologies in a contemporary manner. Through a progressive process of rarefaction, the architectural language lightens along its development, creating a dynamic interplay of solid and void. Concrete surfaces emphasize permanence, while openings frame transitions between inside and outside.



This treatment not only establishes a civic monumentality but also resonates with Carpi’s layered architectural heritage, blending historic references with modern clarity.




Interior Experience
Inside, the design prioritizes openness, light, and connection. Double-height volumes encourage social interaction and cultural engagement, while carefully placed glazing allows natural light to filter into communal spaces. The use of concrete surfaces enhances the spatial rhythm, offering both durability and aesthetic refinement suitable for a public building.





Civic and Cultural Role
The Civic Center serves as more than an architectural intervention; it is a community anchor. By redefining the road axis, creating new gathering spaces, and framing symbolic connections to the church, the building positions itself as a cultural and social hub. It reaffirms architecture’s role in shaping identity and fostering collective belonging.




Archiplanstudio’s Civic Center in Carpi exemplifies contemporary civic architecture—a project that weaves together urban regeneration, cultural symbolism, and architectural innovation. Its careful balance of tradition and modernity ensures the building’s role as a lasting civic landmark for the town.




All Photographs are works of Simone Bossi
Popular Articles
Popular articles from the community
RDTH architekti Rips Out Nearly Every Wall in a Prague Apartment and Replaces Them with Furniture
A 101-square-meter post-war flat in Prague trades rigid partitions for a single rotated furniture block, curtains, and glass concrete.
HCCH Studio Wraps a Shanghai High-Rise Office in Curved Walls of Translucent Glass
A 1,000 square meter fit-out in Lujiazui replaces the typical tech-office palette with layered glass, micro-cement, and quiet rigor.
BAST Slots a Four-Story Glass House into a Narrow Gap Between Toulouse Townhouses
In the dense Bonnefoy district, a stepped infill building merges home and office while preserving a majestic hackberry tree.
Fausto Terán and Toro Fuse Japanese Craft with Mexican Tradition in a Lakeside Retreat
Nakamura House pairs Shou-Sugi-Ban charred pine with handmade clay tile at the foot of Atlangatepec Lagoon in Mexico.
Similar Reads
You might also enjoy these articles
Bamboo Housing Challenge 2026: Design Affordable, Sustainable Homes Using Bamboo
An international design competition by Bamboo U and IBUKU inviting architects and designers to reimagine affordable housing using bamboo — with the winning design built full-scale in Bali.
Computational Design & Education: Beegraphy Design Awards Introduces 7th Category (Featuring Jiyun's Innovative Approach)
Dive into Beegraphy’s 7th Design Awards category, where computational design meets education to create immersive, interactive learning tools, inspired by Jiyun’s work.
From Parametric Lighting to Urban Furniture: Join the 2nd Workshop in Beegraphy’s Computational Design Series
Dive into Cutting-Edge Design Techniques and Practical Applications with Industry Experts
Introducing Sphere by UNI: Pioneering a New Era in AEC Industry
Unlocking Global Potential with BIM and Agile Management
Explore Architecture Competitions
Discover active competitions in this discipline
The International Standard for Design Portfolios
The Global Benchmark for Architecture Dissertation Awards
The Global Benchmark for Graduation Excellence
Challenge to reimagine the Iron Throne
Comments (0)
Please login or sign up to add comments
No comments yet. Be the first to comment!