Contemporary Iranian Villa Architecture Reimagined: Villa 144 by Lin3rd Architects
Villa 144 redefines contemporary Iranian villa architecture by blending local heritage, spatial fluidity, and climate-responsive design.
Introduction to Contemporary Iranian Villa Design
In the sun-drenched coastal city of Bushehr, Iran, Villa 144 by Lin3rd Architects redefines contemporary Iranian villa architecture through a deeply contextual and culturally resonant design language. Drawing from centuries of vernacular tradition and reframing them through a modern lens, the villa establishes a compelling dialogue between local memory and spatial innovation.



A Site-Specific Vision in Bushehr
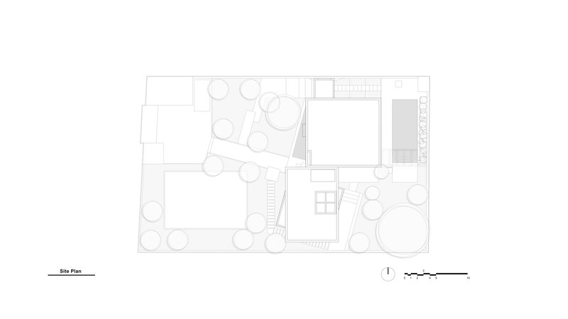
Situated along the Persian Gulf, Bushehr’s harsh, humid climate and rich architectural history significantly informed the conception of Villa 144. The site-specificity of the design is immediately evident in its spatial orientation and the use of materials evocative of local traditions. The villa references the historic labyrinthine alleys and expressive homes of 18th and 19th-century Bushehr while offering a distinct spatial logic suited to modern living.



Interlocking Volumes and Floating Geometry
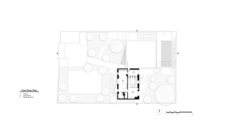
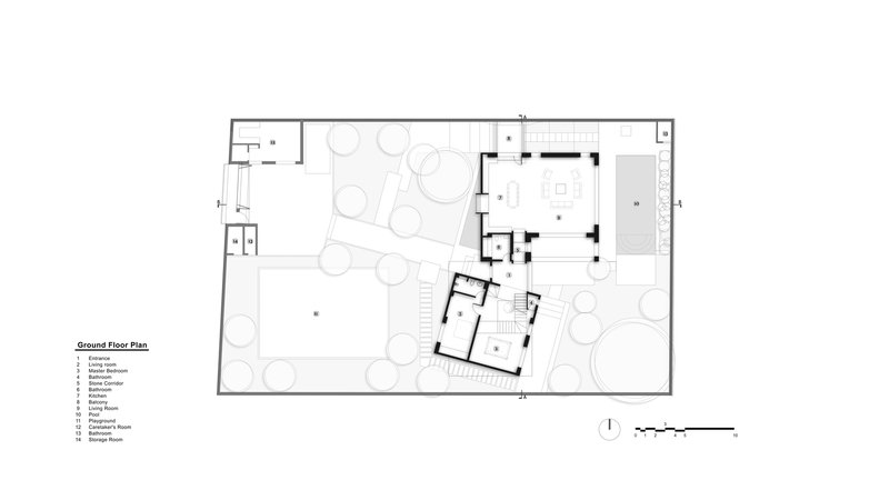
Villa 144 is composed of three pristine white cubes that interlock at staggered levels, forming a layered composition of voids and solids. This architectural geometry is not merely formal—it choreographs spatial experience. At the nexus of these cubes sits the main entrance, marking the threshold between private and communal functions while linking the eastern and western courtyards.



The most iconic gesture lies in the elevated main living volume, which appears to hover over a tranquil reflecting pool lined with turquoise Iranian tiles. This element captures a sensory moment of pause, anchoring the contemporary villa in Iran’s long-standing relationship with water as a design and climatic strategy.



Persian Carpets as Spatial Narratives
One of the most evocative interior gestures is the framing of a vintage Heriz carpet in the living room—a nod to Persian textile heritage reimagined as architectural ornament. The designers strategically position these elements not as secondary decoration but as spatial protagonists. A kitchen window seat adorned with handwoven Zanjan rugs echoes this philosophy, making everyday rituals part of a larger cultural continuum.



Materiality Rooted in Regional Memory
Materials play a crucial narrative role. Coral stone from Bushehr’s coast forms the corridor walls, referencing historic local construction methods. The juxtaposition of these walls with raw iron-sheet floors and ceilings creates a stark, tactile honesty. This corridor—3.3 meters long—acts as a physical and symbolic passage between past and present.


The Garden as a Multisensory Exploration
Villa 144's landscape design continues the narrative richness. The garden is curated with native and culturally nostalgic species such as bougainvillea, various ficus trees, mature eucalyptus, and the silk tree—the botanical icon of Bushehr. Visitors navigate the landscape through multiple intended and accidental pathways, reinforcing an open-ended, experiential relationship with nature and built form.



Labyrinthine Movement Without Dead Ends
Inspired by the spatial grammar of traditional Bushehri alleys, the villa is intentionally free of cul-de-sacs. Circulation is fluid and layered, encouraging an intuitive engagement with space. This approach mirrors the idea of Borges’ labyrinths—not as a maze of confusion but as a poetic sequence of discovery and narrative depth.


Reconfiguring Archetypes for Modern Iranian Living
Throughout the project, Lin3rd Architects distilled archetypes from traditional Persian and Bushehri architecture, reconfiguring them to meet contemporary demands. Villa 144 does not replicate history—it translates and reinvents it, forging a unique model for modern Iranian domestic architecture that is both timeless and forward-looking.


A New Chapter in Contemporary Iranian Villa Architecture
Villa 144 stands as a benchmark for contemporary Iranian villa architecture—rooted in local context yet globally resonant. Its interplay of geometry, cultural symbolism, and spatial fluidity offers a compelling vision of how traditional values can be reinterpreted to enrich modern architectural narratives in Iran and beyond.


All Photographs are works of Parham Taghioff
Popular Articles
Popular articles from the community
The Ken Roberts Memorial Delineation Competition (Krob)
As the most senior architectural drawing competition currently in operation anywhere in the world, it draws hundreds of entries each year, awarding the very best submissions in a series of medium-based categories.
Flamboyant House by Juliana Camargo + Prumo Projetos
Modern Brazilian house integrating existing tree, pool, and volumes with glass, wood, and transitional spaces blending interior, exterior, and landscape seamlessly.
Inverted Architecture Installation by Studio Link-Arc: Exploring the Intersection of Architecture and Living Organisms
Inverted Architecture Installation by Studio Link-Arc blends mycelium, sustainability, inverted design, ecological cycles, and urban adaptive architecture in Shenzhen.
A Contemporary Take on Iranian Residential Architecture
A modern interior design in Mashhad that reinterprets brick, light, and spatial flow to create a warm, contemporary residential architecture.
Similar Reads
You might also enjoy these articles
Top 15 Architecture Competitions to Enter in 2026
From student-friendly idea competitions to prestigious international awards, here are the best architecture competitions open for entries in 2026. Updated regularly.
Inverted Architecture Installation by Studio Link-Arc: Exploring the Intersection of Architecture and Living Organisms
Inverted Architecture Installation by Studio Link-Arc blends mycelium, sustainability, inverted design, ecological cycles, and urban adaptive architecture in Shenzhen.
Walnut House in Ehden: A Contextual Architecture Extension Rooted in Landscape and Heritage
Walnut House integrates hillside architecture, terraces, and passive design, blending heritage, landscape, and contemporary living through contextual, sustainable design strategies.
On the Brooks House by Monsoon Collective – A Contemporary Kerala Home Rooted in Tradition
Kerala home blending tradition and modernity with water-inspired design, brick architecture, courtyard planning, and sustainable rainwater harvesting strategies.
Explore Architecture Competitions
Discover active competitions in this discipline
The International Standard for Design Portfolios
The Global Benchmark for Architecture Dissertation Awards
The Global Benchmark for Graduation Excellence
Challenge to reimagine the Iron Throne
Comments (0)
Please login or sign up to add comments
No comments yet. Be the first to comment!