Courtyard Garden Design in Modern Homes: A Case Study of the Hopscotch House
This article showcases the Hopscotch House's innovative integration of courtyard garden design into modern homes, enhancing sustainability and community connection.
Courtyard garden design is an architectural strategy that harmoniously integrates outdoor and indoor living spaces. This approach not only enhances the aesthetic appeal of a home but also promotes a sustainable lifestyle by maximizing natural light and ventilation. The Hopscotch House by JOHN ELLWAY. ARCHITECT stands as a prime example of how courtyard gardens can transform modern residential architecture.

The Concept Behind the Hopscotch House
Located in Woolloongabba, Australia, the Hopscotch House is designed with the idea of creating a playful and interactive living environment. The house is named for its ability to encourage movement, exploration, and engagement with various indoor and outdoor spaces, much like the game it's named after. This design philosophy is particularly evident in the home's unique use of courtyard gardens.


Architectural Strategy: Integrating Courtyard Gardens
Preserving the Cottage's Charm
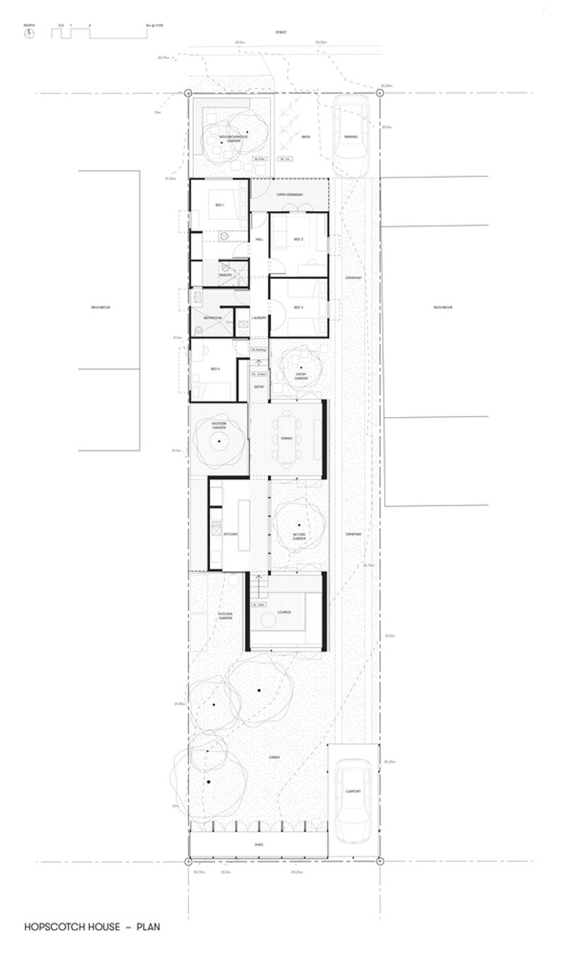
The original structure of the Hopscotch House, a pre-war cottage, remains largely untouched, with the new architectural additions stretching into the backyard. This decision was crucial in maintaining the historical charm of the house while introducing modern living spaces.


Creating a Series of Garden Courtyards
The key architectural move was to insert five garden courtyards between the existing cottage and the new living areas. Each courtyard is designed with a specific purpose and positioned to ensure that every room benefits from northern sunlight, fresh air, and beautiful views. These outdoor spaces serve as natural extensions of the indoor areas, blurring the lines between the built environment and nature.




Weather Mediation Through Design
The Hopscotch House utilizes walls, roofs, and openings as a kit-of-parts to mediate weather conditions. Solid shutters and fixed glazing are strategically placed to manage airflow, rain, and sunlight, creating a comfortable living environment throughout the year.


Landscape Collaboration for Courtyard Gardens
Collaboration with landscape architects was crucial in selecting plants for each courtyard garden, adding a layer of weather protection and aesthetic value. From productive planting adjacent to the kitchen to a large olive tree managing the western aspect near the dining area, each garden is thoughtfully designed to enhance the living experience.


Raw Materials and Social Spaces
The choice of raw construction materials, such as block walls and corrugated sheets, gives the addition an external space feel, while vine-covered mesh adds softness and additional weather protection. A brick floor links the timber cottage to the garden, creating a cohesive flow throughout the property. The design also incorporates a 'neighborhood garden,' fostering social interaction with the surrounding community.


Redefining Modern Home Design
The Hopscotch House by JOHN ELLWAY. ARCHITECT exemplifies the transformative power of courtyard garden design in modern homes. By integrating indoor and outdoor spaces, the project not only achieves a dynamic and playful living environment but also sets a new standard for sustainable and community-focused residential architecture.


All photographs are work of Toby Scott
Popular Articles
Popular articles from the community
RDTH architekti Rips Out Nearly Every Wall in a Prague Apartment and Replaces Them with Furniture
A 101-square-meter post-war flat in Prague trades rigid partitions for a single rotated furniture block, curtains, and glass concrete.
BAST Slots a Four-Story Glass House into a Narrow Gap Between Toulouse Townhouses
In the dense Bonnefoy district, a stepped infill building merges home and office while preserving a majestic hackberry tree.
HCCH Studio Wraps a Shanghai High-Rise Office in Curved Walls of Translucent Glass
A 1,000 square meter fit-out in Lujiazui replaces the typical tech-office palette with layered glass, micro-cement, and quiet rigor.
Takeshi Hosaka Architects Suspends a Concrete Cross Above a Yokohama Cemetery
A 28-square-meter burial renovation in Yokohama lifts the symbol of resurrection into the sky so mourners see it against heaven.
Similar Reads
You might also enjoy these articles
Olio Towers: A Mid-Rise for Performers That Fuses Housing, Rehearsal, and Stage
Located blocks from Houston's Theater District, this modular tower stacks living units around a central performance atrium.
Oasis: Modular Green Housing Carved into Dhaka's Urban Fabric
A shortlisted Plugin Housing entry reclaims unauthorized settlements in Dhaka with stepped concrete volumes, green roofs, and ventilation-driven design.
Black Hole: A Floating Megastructure for the Post-Physical Era
Emiliano Mazzarotto envisions a spherical, self-scaling arena where e-sports, digital hotels, and holographic stadiums replace traditional public space.
Compact & Sustainable Living in Piraeus: A Four-Level Family Home Built Around Light and Air
A narrow townhouse in one of Greece's densest port cities uses a central atrium and passive strategies to house three generations under one roof.
Explore Architecture Competitions
Discover active competitions in this discipline
The International Standard for Design Portfolios
The Global Benchmark for Architecture Dissertation Awards
The Global Benchmark for Graduation Excellence
Challenge to reimagine the Iron Throne
Comments (0)
Please login or sign up to add comments
No comments yet. Be the first to comment!