Cultural Architecture Design: The House of Two Realities by STO.M.P
The House of Two Realities merges French-Indian heritage with modern design, emphasizing sustainability and artisanship.
In the historic and vibrant streets of Puducherry, India, the House of Two Realities emerges as a testament to cultural architecture design. Created by the visionary team at STO.M.P, this residence seamlessly blends the rich heritage of French and Indian influences with modern architectural sensibilities, offering a unique living experience that is both nostalgic and authentically innovative.

Design Philosophy
A Nod to Heritage and Modernity
The House of Two Realities stands as a woven narrative of authenticity and nostalgia, designed to interact with the innate memories of the past while catering to the contemporary needs of its inhabitants. The project draws inspiration from the colonial French Riviera of Pondicherry, with its ornate boulevards and decorative facades, to create a space that is a rejuvenating escape from the hustle of daily life.




Celebrating Light and Artisanship
The architectural planning of the house is oriented to celebrate light, with an introverted spatial relationship that blurs the boundaries between the external world and the interior landscape. Local artisanship is at the heart of the project, with the dynamic interplay of light and shadow created by terracotta skin and funicular slabs on the ceiling, mimicking a sundial effect.

Architectural Features
Facade: A Delicate Balancing Act
The facade of the House of Two Realities is a masterful composition designed to combat solar radiation and facilitate cross-ventilation. It reinterprets the proportion of exterior spaces by blurring floor slabs, creating a transcending facade that offers seamless integration with the horizon.




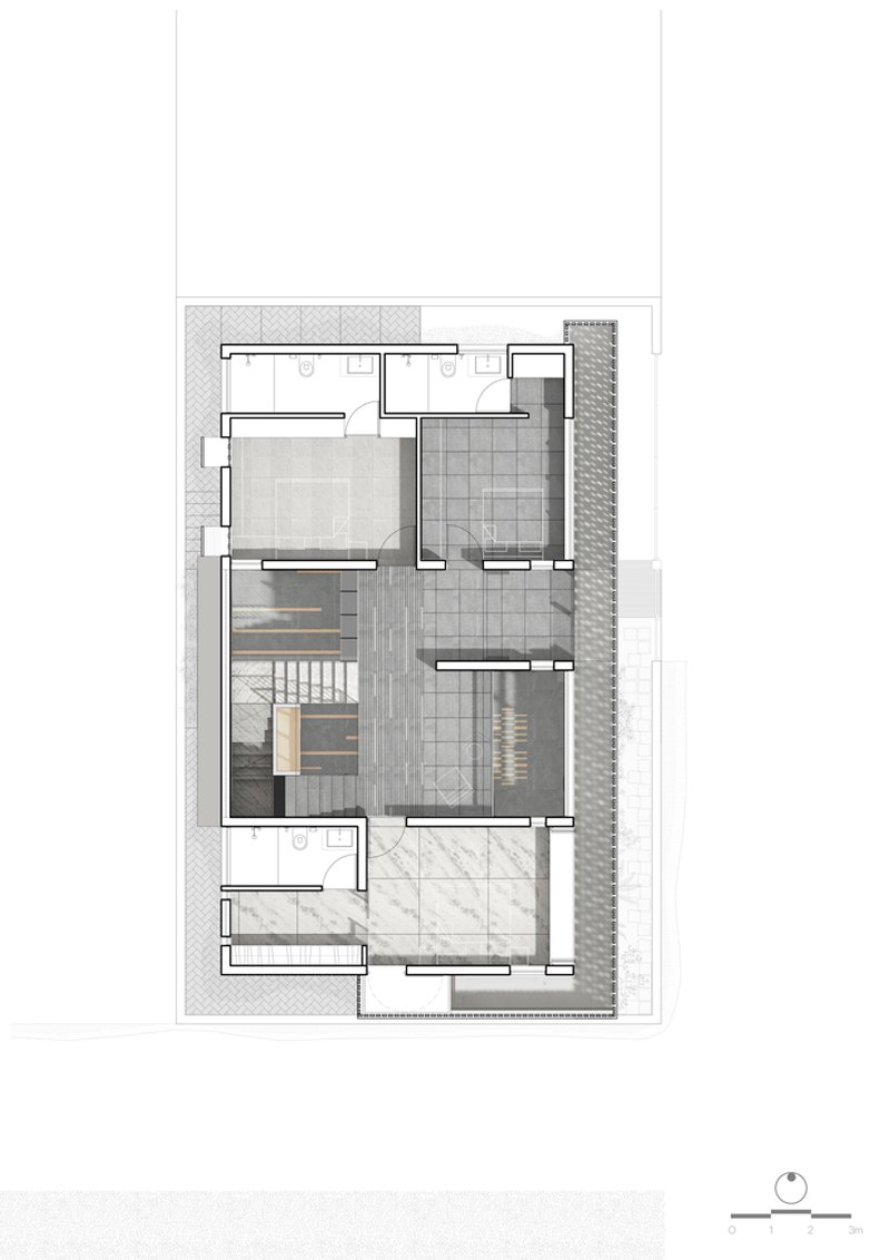
Interior Spaces: A Realm of Two Realities
The interior of the house is a mythic reality where the central core emphasizes hierarchy and spatial connectivity, fostering togetherness. Private spaces are serene sanctuaries, while common areas unfold both vertically and horizontally, offering multifaceted functionality. The staircase, serving as a metaphoric spine, creates paradoxical interactions with the surrounding spaces, enriching the living experience.


Sustainable Practices and Materials
Embracing Passive Cooling and Natural Materials
The House of Two Realities incorporates rat trap cavity walls and lime-based flooring to ensure thermal comfort and maintain an habitable zone. Wind channeling through diverse window systems and volumes ensures cross-ventilation and utilizes passive cooling strategies, demonstrating a commitment to sustainability.



The House of Two Realities by STO.M.P is not just a residence but a kernel of a dream that pours cherished memories into a physical form. It stands as a reminder and a celebration of living with balanced and meaningful contentment, positioning itself as an artifact for generations to cherish. This project exemplifies how cultural architecture design can bridge the past and present, creating spaces that are rich in heritage and forward-thinking in functionality.












All Photographs are the work of Prithvi M Samy
Popular Articles
Popular articles from the community
Solar Steam: A Climate-Responsive Architecture That Redefines the Monument
A climate-responsive memorial architecture that transforms heat, decay, and time into a living system reflecting humanity’s ecological impact.
Atelier Macri Concept Store Interior Design by CASE-REAL
Atelier Macri store features a "ko" counter, walnut wood details, cork displays, blending retail, gallery, and seamless customer experiences.
A Contemporary Take on Iranian Residential Architecture
A modern interior design in Mashhad that reinterprets brick, light, and spatial flow to create a warm, contemporary residential architecture.
Inverted Architecture Installation by Studio Link-Arc: Exploring the Intersection of Architecture and Living Organisms
Inverted Architecture Installation by Studio Link-Arc blends mycelium, sustainability, inverted design, ecological cycles, and urban adaptive architecture in Shenzhen.
Similar Reads
You might also enjoy these articles
Bamboo Housing Challenge 2026: Design Affordable, Sustainable Homes Using Bamboo
An international design competition by Bamboo U and IBUKU inviting architects and designers to reimagine affordable housing using bamboo — with the winning design built full-scale in Bali.
Computational Design & Education: Beegraphy Design Awards Introduces 7th Category (Featuring Jiyun's Innovative Approach)
Dive into Beegraphy’s 7th Design Awards category, where computational design meets education to create immersive, interactive learning tools, inspired by Jiyun’s work.
From Parametric Lighting to Urban Furniture: Join the 2nd Workshop in Beegraphy’s Computational Design Series
Dive into Cutting-Edge Design Techniques and Practical Applications with Industry Experts
Introducing Sphere by UNI: Pioneering a New Era in AEC Industry
Unlocking Global Potential with BIM and Agile Management
Explore Architecture Competitions
Discover active competitions in this discipline
The International Standard for Design Portfolios
The Global Benchmark for Architecture Dissertation Awards
The Global Benchmark for Graduation Excellence
Challenge to reimagine the Iron Throne
Comments (0)
Please login or sign up to add comments
No comments yet. Be the first to comment!