Delano Dubai Hotel by Elastic Architects: A Fusion of Glamour and Modernity
Explore Elastic Architects’ redesign of the Delano Dubai Hotel, merging the iconic glamour of the Delano brand with the vibrant energy of Dubai through modern architecture and design.
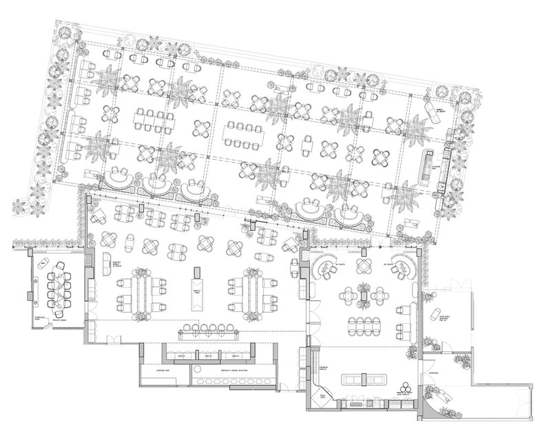
Elastic Architects, in collaboration with Ennismore's design team, has reimagined the legendary Delano brand with the Delano Dubai Hotel, a 900-square-meter project that seamlessly merges timeless elegance with the dynamic vibrancy of Dubai. Completed in 2024, the design encapsulates the luxurious ethos of Delano, drawing inspiration from its Miami Beach roots while embracing a modern, regionally contextual aesthetic.




A Signature Arrival Experience
The arrival experience at Delano Dubai sets the tone for the guest journey, reflecting the whimsy and sophistication of Miami’s iconic hedge design, reinterpreted with sleek green panels. Guests are welcomed into an inviting courtyard that blends indoor and outdoor elements, featuring a captivating lounge that surprises and delights at every turn.





Iconic Interiors
The Rose Bar
Elastic Architects paid homage to the original Delano Miami Rose Bar by transforming it into a jewel-box-like venue with mirrors shaped like delicate petals, flowing contours, and floral-inspired banquettes. The use of rose-hued marble, tufted velvet, and warm wood tones creates an immersive atmosphere that blends nostalgia with modern glamour. The Rose Bar's design features infinite dance floor tiles and disco-motif furniture, adding playful sophistication to the space.




Guestrooms and Suites
Guestrooms reflect Delano’s signature crisp white palette, softened by rich textures and natural materials. Elegant furnishings and vibrant accents contrast the white backdrop, evoking serenity and luxury. The redesign emphasizes natural light, enhancing the overall ambiance of tranquility and sophistication.



A Mediterranean Dining Experience
Tutto Passa Restaurant
Tutto Passa captures the enchanting essence of the Amalfi Coast with its alfresco terrace, draped in soft yellow ceiling fabric inspired by Amalfi sunsets. Traditional elements like a built-in oven and a wine tunnel add authenticity and a touch of exclusivity. The wine tunnel serves as a secret passage between the Rose Bar and the restaurant, doubling as a private dining room for intimate gatherings.






Transformative Outdoor Spaces
Elastic Architects revitalized the Delano pool area, transforming it into a vibrant hub of activity. Featuring custom-designed furniture in natural textures and materials, the space offers diverse seating arrangements, from casual lounges to private cabanas. These settings provide dynamic views of the central pool while maintaining the brand's commitment to exclusivity.







Playful Design and Memorable Ambiance
Every corner of the Delano pool area has been crafted to balance elegance and relaxation. Playful yet sophisticated design elements ensure an engaging experience, with thoughtfully designed zones that cater to diverse guest preferences.






Blending Timelessness with Modernity
Elastic Architects have masterfully reinterpreted Delano's iconic Miami style to create a vibrant, luxurious destination that resonates with Dubai’s dynamic culture. From the veiled arrival courtyard to the intimate Rose Bar and sunlit guestrooms, the design honors the legacy of the Delano brand while pushing the boundaries of modern hospitality.








All Photographs are work of Courtesy of Ennismore
Popular Articles
Popular articles from the community
Fifth NRE Jazz Club – De Bever Architecten: Eindhoven’s Revitalized Cultural Hub
Historic gas factory transformed into Fifth NRE Jazz Club blending modern sustainability, jazz culture, dining, and heritage architecture seamlessly.
Free Architecture Competitions You Can Enter Right Now
No entry fees, real prizes. Here are the best free architecture competitions open for submissions in 2026.
Alton Cliff House: A Harmonious Retreat by f2a Architecture in Lake Country, Canada
Alton Cliff House blends corten steel, prefabrication, and sustainable design, creating a luxurious, energy-efficient retreat perched on Canadian cliffs.
Gads Hill Early Learning Center by JGMA: Adaptive Reuse Shaping Community-Focused Educational Architecture
Adaptive reuse transforms fragmented structure into vibrant early learning center with playful façade, natural light, and community-focused sustainable design.
Similar Reads
You might also enjoy these articles
The Ken Roberts Memorial Delineation Competition (Krob)
As the most senior architectural drawing competition currently in operation anywhere in the world, it draws hundreds of entries each year, awarding the very best submissions in a series of medium-based categories.
Waterfront Redevelopment and Urban Revitalization in Mumbai: Forging a New Dawn for Darukhana
A transformative waterfront redevelopment project reimagining Darukhana’s shipbreaking heritage into an inclusive urban future.
OUT-OF-MAP: A Call for Postcards on Feminist Narratives of Public Space
Rhizoma Design and Research Lab invites artists, designers, architects, researchers, and students to reflect on how feminist perspectives can reshape public space. Selected works will be exhibited in Barcelona, October 2026. Submissions open until 15 April 2026.
Documentation Work on Buddhist Wooden Temple
Architectural syncretism and cultural hybridity: A comparative study of the Buddhist temples in Chattogram Hill tracks
Explore Architecture Competitions
Discover active competitions in this discipline
The International Standard for Design Portfolios
The Global Benchmark for Architecture Dissertation Awards
The Global Benchmark for Graduation Excellence
Challenge to reimagine the Iron Throne
Comments (0)
Please login or sign up to add comments
No comments yet. Be the first to comment!