DIFF Coffee Roasters: A Striking Example of Modern Minimalist Coffee Shop Design
DIFF Coffee Roasters is a masterpiece of modern minimalist coffee shop design, using geometric forms, natural elements, and material contrasts.
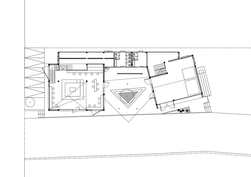
DIFF Coffee Roasters, designed by ASWA, stands as an architectural landmark in northern Thailand, redefining modern minimalist coffee shop design. The café seamlessly integrates geometric forms, natural elements, and material contrasts to create an immersive and inviting space. By utilizing two cubic structures connected by a dramatic triangular flyover, the design embraces both openness and intimacy. This architectural masterpiece showcases how minimalism can enhance both functionality and aesthetic appeal, making it a destination for coffee lovers and design enthusiasts alike.





Architectural Concept and Geometric Composition
The café’s striking presence is defined by its bold geometric composition. A larger gray cube and a smaller black cube form the foundation of the structure, connected by a visually arresting flyover that frames the towering tree at the heart of the space. This interplay of shapes creates a dynamic spatial experience, with the tree acting as a natural focal point. The thoughtful arrangement of these volumes ensures that visitors experience a sense of fluidity and discovery as they navigate the space.



The primary cube, clad in smooth concrete, features triangular openings that invite natural light while casting intricate shadow patterns throughout the day. This ever-changing play of light enhances the café’s minimalist aesthetic, emphasizing the simplicity of the materials. The secondary black cube, which houses the coffee bar, contrasts with its squared voids and darker ambiance, adding depth to the design. Together, these elements create a visually compelling environment that balances openness with defined spaces.



Materiality and Textural Harmony
The selection of materials reinforces the café’s modern minimalist ethos. Concrete dominates the structure, lending a raw and understated elegance to the space. Warm wooden elements introduce a sense of warmth, softening the industrial feel and enhancing the overall comfort. Expansive glass openings further contribute to the transparency of the design, blurring the boundaries between indoors and outdoors.




Inside, the material palette continues to embrace simplicity. The polished concrete floors and clean white surfaces create a neutral backdrop that allows natural light to take center stage. The minimal use of color and ornamentation ensures that the architectural elements remain the focal point, reinforcing the principles of modern minimalist coffee shop design.




Spatial Experience and Atmosphere
Upon entering DIFF Coffee Roasters, visitors are greeted by a soaring atrium that reaches nine meters in height. This dramatic interior space contrasts with the subdued exterior, offering a sense of openness and elevation. Triangular skylights punctuate the ceiling, allowing beams of light to flood the space and accentuate its geometric precision. The effect is both calming and awe-inspiring, creating an atmosphere that encourages relaxation and contemplation.




The café’s layout is designed to foster a sense of community while maintaining intimate nooks for personal reflection. Seating arrangements are carefully curated to encourage interaction without feeling overcrowded. The shaded outdoor area beneath the central tree provides a tranquil retreat, seamlessly blending architecture with nature. This thoughtful integration of space ensures that the café caters to a diverse range of visitors, from casual coffee drinkers to those seeking a quiet workspace.




A New Standard for Minimalist Coffee Shops
DIFF Coffee Roasters exemplifies the evolution of modern minimalist coffee shop design, demonstrating how architecture can enhance the sensory experience of a café. By stripping away unnecessary embellishments and focusing on form, light, and materiality, the space achieves a perfect balance between functionality and aesthetic appeal.




The project serves as a testament to the power of minimalist architecture, proving that simplicity can be both visually striking and deeply engaging. As cafés continue to evolve into cultural hubs, DIFF Coffee Roasters sets a new benchmark for how design can transform everyday experiences into something extraordinary.






ASWA’s design for DIFF Coffee Roasters is a bold exploration of modern minimalist coffee shop design, seamlessly blending geometric forms, natural integration, and material contrasts. The café’s thoughtful layout and striking visual language create an immersive environment that invites visitors to experience coffee culture in a completely new way. Through its innovative use of space and light, DIFF Coffee Roasters stands as a benchmark for contemporary café architecture, offering a design that is both timeless and inspiring.











All photographs are works of Soopakorn Srisakul
Popular Articles
Popular articles from the community
Atelier Macri Concept Store Interior Design by CASE-REAL
Atelier Macri store features a "ko" counter, walnut wood details, cork displays, blending retail, gallery, and seamless customer experiences.
Louis Malle Cinema: A Limestone Cultural Landmark Revitalizing Community Life in Prayssac
Limestone cinema extension with public forecourt, blending heritage and modern design to create flexible cultural spaces and strengthen community interaction.
Treehouse Apartment: A Warm Timber Interior Blending Craft, Play, and Contemporary Living
Warm timber apartment with integrated treehouse, combining natural materials, craftsmanship, and playful design to create a flexible, family-oriented living environment.
The Ken Roberts Memorial Delineation Competition (Krob)
As the most senior architectural drawing competition currently in operation anywhere in the world, it draws hundreds of entries each year, awarding the very best submissions in a series of medium-based categories.
Similar Reads
You might also enjoy these articles
The Ken Roberts Memorial Delineation Competition (Krob)
As the most senior architectural drawing competition currently in operation anywhere in the world, it draws hundreds of entries each year, awarding the very best submissions in a series of medium-based categories.
Waterfront Redevelopment and Urban Revitalization in Mumbai: Forging a New Dawn for Darukhana
A transformative waterfront redevelopment project reimagining Darukhana’s shipbreaking heritage into an inclusive urban future.
OUT-OF-MAP: A Call for Postcards on Feminist Narratives of Public Space
Rhizoma Design and Research Lab invites artists, designers, architects, researchers, and students to reflect on how feminist perspectives can reshape public space. Selected works will be exhibited in Barcelona, October 2026. Submissions open until 15 April 2026.
Documentation Work on Buddhist Wooden Temple
Architectural syncretism and cultural hybridity: A comparative study of the Buddhist temples in Chattogram Hill tracks
Explore Architecture Competitions
Discover active competitions in this discipline
The International Standard for Design Portfolios
The Global Benchmark for Architecture Dissertation Awards
The Global Benchmark for Graduation Excellence
Challenge to reimagine the Iron Throne
Comments (0)
Please login or sign up to add comments
No comments yet. Be the first to comment!