Discover Elegance in Urban Design: Market Mews House by Ampuero Yutronic
The Market Mews House, designed by Ampuero Yutronic, combines historical inspiration with modern luxury in London, offering sophisticated urban living.
Nestled in the heart of London, the Market Mews House emerges as a pinnacle of luxury living, meticulously crafted by Ampuero Yutronic. Designed with a deep understanding of historical context and contemporary demands, this exquisite residence offers a tranquil retreat from the bustling cityscape of Mayfair.





Architectural Vision and Design Inspiration
Creating Harmony with Historical Elegance
Situated on a cobbled street within a conservation area, Market Mews House respects its historical surroundings while introducing innovative architectural elements. The design delicately blends with luxurious terraced houses, echoing the rich heritage of English residential architecture spanning three centuries.





Unique Structural Elements: A Blend of Tradition and Modernity
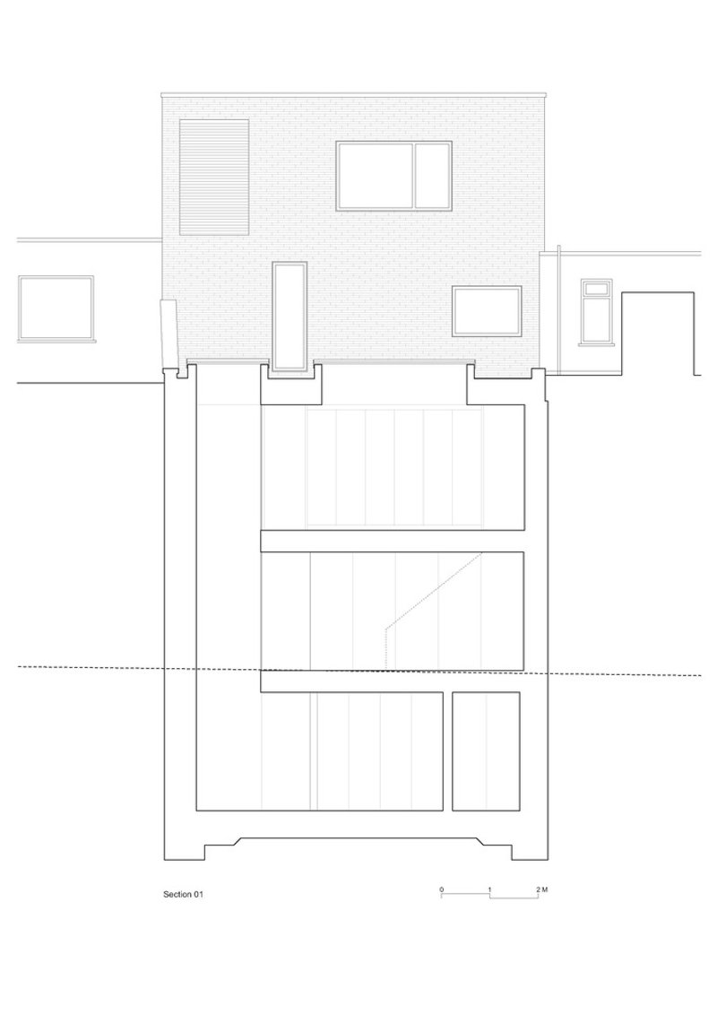
The architecture of Market Mews House is divided into three striking sections—base, middle, and upper—each contributing to its unique identity. The ground floor features a robust "base" composed of large-format reconstituted limestone panels, providing a sturdy foundation that resonates with the traditional materials of the area.





Middle Section: A Nod to Classic Brickwork
Ascending to the "middle" section, the residence showcases Roman-style bricks in limestone color, laid with lime mortar. This choice not only pays homage to the vernacular architectural language but also enhances the facade with deep-set windows adorned with limestone planters, introducing greenery and vibrancy to the urban environment.





The Upper Section: Integrating with the Skyline
The "upper" part of the house is defined by a traditional sloping roof, set back from the main parapet to minimize the visible volume and blend seamlessly with the London skyline. This strategic design choice helps maintain the aesthetic integrity of the surrounding area.





Interior Design: A Symphony of Light and Space
Strategic Use of Natural Light
Inside, the Market Mews House shines with an abundance of natural light. The architects have skillfully arranged the floor layout to incorporate large light wells and south-facing windows, illuminating the expansive living spaces and penetrating the lower floors of the residence.





The Heart of the Home: Combining Functionality and Aesthetics
The upper floor serves as the 'piano nobile,' with a grand open-plan living and dining area that forms the central hub of the house. Here, custom-made cabinetry and a large skylight above the kitchen allow light to cascade through, creating an inviting atmosphere for family gatherings and social events.






A Testament to Timeless Luxury
Market Mews House by Ampuero Yutronic stands as a testament to timeless luxury and architectural finesse in the heart of London. With its carefully considered design and attention to detail, this residence not only provides a luxurious living space but also contributes to the architectural heritage of its environment.






All photographs are work of Felipe Fontecilla
Popular Articles
Popular articles from the community
Atelier Macri Concept Store Interior Design by CASE-REAL
Atelier Macri store features a "ko" counter, walnut wood details, cork displays, blending retail, gallery, and seamless customer experiences.
Solar Steam: A Climate-Responsive Architecture That Redefines the Monument
A climate-responsive memorial architecture that transforms heat, decay, and time into a living system reflecting humanity’s ecological impact.
An Miên Lumière Cafe by xưởng xép, Ho Chi Minh City, Vietnam
An industrial-inspired café where layered steel and warm light create a dynamic, immersive environment shaped by reflection, depth, and perception.
Flamboyant House by Juliana Camargo + Prumo Projetos
Modern Brazilian house integrating existing tree, pool, and volumes with glass, wood, and transitional spaces blending interior, exterior, and landscape seamlessly.
Similar Reads
You might also enjoy these articles
The Ken Roberts Memorial Delineation Competition (Krob)
As the most senior architectural drawing competition currently in operation anywhere in the world, it draws hundreds of entries each year, awarding the very best submissions in a series of medium-based categories.
Waterfront Redevelopment and Urban Revitalization in Mumbai: Forging a New Dawn for Darukhana
A transformative waterfront redevelopment project reimagining Darukhana’s shipbreaking heritage into an inclusive urban future.
OUT-OF-MAP: A Call for Postcards on Feminist Narratives of Public Space
Rhizoma Design and Research Lab invites artists, designers, architects, researchers, and students to reflect on how feminist perspectives can reshape public space. Selected works will be exhibited in Barcelona, October 2026. Submissions open until 15 April 2026.
Documentation Work on Buddhist Wooden Temple
Architectural syncretism and cultural hybridity: A comparative study of the Buddhist temples in Chattogram Hill tracks
Explore Architecture Competitions
Discover active competitions in this discipline
The International Standard for Design Portfolios
The Global Benchmark for Architecture Dissertation Awards
The Global Benchmark for Graduation Excellence
Challenge to reimagine the Iron Throne
Comments (0)
Please login or sign up to add comments
No comments yet. Be the first to comment!