Dorogawa Onsen Brewery: A Harmonious Blend of Tradition and Innovation
The Dorogawa Onsen Brewery by Hidenori Tsuboi Architects blends modern design with cultural heritage, fostering community interaction in a historic Japanese village.

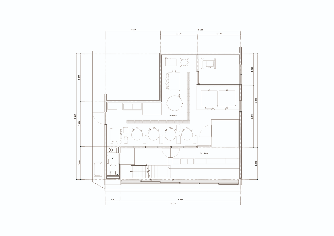
Nestled in the scenic village of Dorogawa Onsen, Tenkawa, Japan, the Dorogawa Onsen Brewery designed by Hidenori Tsuboi Architects epitomizes the seamless integration of modern architecture with rich historical and cultural traditions. This 56-square-meter structure, completed in 2022, serves as a poignant example of how thoughtful design can enhance community engagement and preserve cultural heritage. The brewery, with its open and inviting facade, not only caters to tourists but also functions as a communal hub for local residents.

Historical and Cultural Context
Dorogawa Onsen is a hot spring village that has long been associated with Mt. Omine, a sacred mountain revered in Shugendo, a unique Japanese mountain worship tradition. Founded approximately 1,300 years ago by Enno Ozunu, Mt. Omine has been a pilgrimage site for Yamabushi, or mountain ascetics. The village, situated at an elevation of 820 meters, is renowned for its inns, guest houses, and stores selling Daranisukegan, a traditional Japanese medicine.

Architectural Vision
The architectural vision for the Dorogawa Onsen Brewery was driven by a desire to create a space that blends seamlessly with the village's historical ambiance while fostering community interaction. The design features a wide-opening porch that allows large groups of Gyoja (pilgrims) to gather, reflecting the traditional structures of Dorogawa Onsen. This open facade not only adds to the town's lively atmosphere but also encourages social interaction among residents and visitors.

Design Elements
Exterior Design
The exterior of the brewery retains the building's previous incarnation as a coffee shop, with minimal modifications to preserve the familiar landscape. This approach ensures that the building continues to blend harmoniously with its surroundings, maintaining the village's aesthetic continuity.

Interior Design
The interior design is a celebration of local craftsmanship and materials. Custom-made tiles featuring the Daranisukegan motif adorn the space, paying homage to the village's medicinal heritage. Additionally, Japanese paper made from persimmon tannin, a material produced through fermentation like beer, adds a unique, tactile quality to the interior. These design choices not only enhance the aesthetic appeal but also create a sensory connection to the village's cultural roots.


Community Integration
A key objective of the Dorogawa Onsen Brewery was to foster a sense of community. By opening the brewery to the street, the architects intended for it to become a physical and conceptual part of the town. Since its opening, the brewery has evolved into a social hub, where local workers gather after hours, and tourists engage with residents, fostering a sense of camaraderie and shared identity.

Sustainability and Preservation
The design of the Dorogawa Onsen Brewery underscores a commitment to sustainability and cultural preservation. By utilizing local materials and preserving the building's original structure, the architects have minimized the environmental impact while ensuring that the village's heritage is respected and maintained for future generations.


Photographic Documentation
Photographer Daisuke Shima captures the essence of the Dorogawa Onsen Brewery through his lens. The photographs showcase the building's harmonious blend of traditional and modern elements, the inviting porch, and the intricately designed interior. These images provide a visual narrative that complements the architectural story, highlighting the brewery's role in enhancing the village's cultural landscape.

The Dorogawa Onsen Brewery by Hidenori Tsuboi Architects is more than just a functional space; it is a testament to the power of architecture to preserve cultural heritage, foster community, and enhance the aesthetic value of a locale. By seamlessly integrating modern design with historical and cultural elements, the brewery stands as a model for future architectural projects in culturally rich environments. This project underscores the importance of thoughtful design in creating spaces that are not only visually appealing but also deeply connected to their cultural and community roots.
Popular Articles
Popular articles from the community
Louis Malle Cinema: A Limestone Cultural Landmark Revitalizing Community Life in Prayssac
Limestone cinema extension with public forecourt, blending heritage and modern design to create flexible cultural spaces and strengthen community interaction.
Solar Steam: A Climate-Responsive Architecture That Redefines the Monument
A climate-responsive memorial architecture that transforms heat, decay, and time into a living system reflecting humanity’s ecological impact.
Atelier Macri Concept Store Interior Design by CASE-REAL
Atelier Macri store features a "ko" counter, walnut wood details, cork displays, blending retail, gallery, and seamless customer experiences.
Flamboyant House by Juliana Camargo + Prumo Projetos
Modern Brazilian house integrating existing tree, pool, and volumes with glass, wood, and transitional spaces blending interior, exterior, and landscape seamlessly.
Similar Reads
You might also enjoy these articles
The Ken Roberts Memorial Delineation Competition (Krob)
As the most senior architectural drawing competition currently in operation anywhere in the world, it draws hundreds of entries each year, awarding the very best submissions in a series of medium-based categories.
A Contemporary Take on Iranian Residential Architecture
A modern interior design in Mashhad that reinterprets brick, light, and spatial flow to create a warm, contemporary residential architecture.
Franche-Comté Advanced School of Engineering by Dominique Coulon & associés, Besançon
A flexible engineering school immersed in woodland, combining concrete minimalism, adaptable spaces, and natural light to support evolving educational environments.
Waterfront Redevelopment and Urban Revitalization in Mumbai: Forging a New Dawn for Darukhana
A transformative waterfront redevelopment project reimagining Darukhana’s shipbreaking heritage into an inclusive urban future.
Explore Interior Design Competitions
Discover active competitions in this discipline
The Global Benchmark for Architecture Dissertation Awards
Challenge to design luxury tourism on rails
VR headsets Storefront design competition
Designing a staircase for a client
Comments (0)
Please login or sign up to add comments
No comments yet. Be the first to comment!