Eco-Friendly Corporate Architecture: A Case Study of T-LINKS Arena and Office
Explore T-LINKS Arena and Office, a model of eco-friendly corporate architecture blending Japanese aesthetics with innovative environmental solutions.
Discover the innovative T-LINKS Arena and Office in Takatsuki, Japan, a pioneering example of Eco-Friendly Corporate Architecture designed by TAISEI DESIGN Planners Architects & Engineers.


Vision and Design Philosophy
Sustainable Integration with the Community
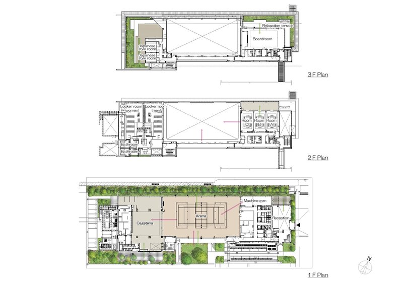
T-LINKS serves not only as a corporate facility but also as a community hub, designed to support recreational activities and act as a temporary shelter in emergencies. This dual function underscores the building's role in fostering community ties and corporate social responsibility.


Architectural Concept
The structure features a large, retractable roof and sun-shading louvers that blend traditional Japanese aesthetics with modern environmental considerations, creating a space that is both functional and harmonious with its surroundings.




Key Architectural Features
Innovative Sun-Shading Solutions
To address direct sunlight and rain, the design incorporates a large roof and delicate louvers, which protect the interior from the elements while reducing energy consumption by moderating the building's temperature.


Integration of Natural Elements
The building's facade includes a "tree leaf blind" made from local vegetation, enhancing the structure's ecological footprint and aesthetic value. This green facade, along with sky corridors and rooftop gardens, integrates natural elements into the urban fabric.




Interior Design and Functionality
The Refreshing Terrace
A modern take on the traditional Japanese veranda, the refreshing terrace serves as a communal space that invites relaxation and interaction, embodying the principles of Eco-Friendly Corporate Architecture.


Digital Cloud Sea Ceiling
In the cafeteria, the ceiling mimics the undulating pattern of clouds over Japanese mountains, achieved through digital analysis and innovative lighting techniques. This design not only enhances the aesthetic but also contributes to the building’s energy efficiency.




Community and Environmental Impact
Multi-Functional Design
The arena is designed to function seamlessly for both corporate events and community gatherings, showcasing the potential for corporate buildings to serve broader societal roles.

Sustainability Features
T-LINKS incorporates advanced energy-saving technologies and sustainable building practices, setting a new standard for eco-friendly corporate buildings.


The T-LINKS Arena and Office is a flagship example of Eco-Friendly Corporate Architecture, blending functionality with environmental stewardship. It stands as a testament to how corporate buildings can enhance their surroundings and contribute positively to the community.


All photographs are work of SS Co.Ltd
Popular Articles
Popular articles from the community
Treehouse Apartment: A Warm Timber Interior Blending Craft, Play, and Contemporary Living
Warm timber apartment with integrated treehouse, combining natural materials, craftsmanship, and playful design to create a flexible, family-oriented living environment.
A Contemporary Take on Iranian Residential Architecture
A modern interior design in Mashhad that reinterprets brick, light, and spatial flow to create a warm, contemporary residential architecture.
The Ken Roberts Memorial Delineation Competition (Krob)
As the most senior architectural drawing competition currently in operation anywhere in the world, it draws hundreds of entries each year, awarding the very best submissions in a series of medium-based categories.
Atelier Macri Concept Store Interior Design by CASE-REAL
Atelier Macri store features a "ko" counter, walnut wood details, cork displays, blending retail, gallery, and seamless customer experiences.
Similar Reads
You might also enjoy these articles
The Ken Roberts Memorial Delineation Competition (Krob)
As the most senior architectural drawing competition currently in operation anywhere in the world, it draws hundreds of entries each year, awarding the very best submissions in a series of medium-based categories.
Waterfront Redevelopment and Urban Revitalization in Mumbai: Forging a New Dawn for Darukhana
A transformative waterfront redevelopment project reimagining Darukhana’s shipbreaking heritage into an inclusive urban future.
OUT-OF-MAP: A Call for Postcards on Feminist Narratives of Public Space
Rhizoma Design and Research Lab invites artists, designers, architects, researchers, and students to reflect on how feminist perspectives can reshape public space. Selected works will be exhibited in Barcelona, October 2026. Submissions open until 15 April 2026.
Documentation Work on Buddhist Wooden Temple
Architectural syncretism and cultural hybridity: A comparative study of the Buddhist temples in Chattogram Hill tracks
Explore Architecture Competitions
Discover active competitions in this discipline
The International Standard for Design Portfolios
The Global Benchmark for Architecture Dissertation Awards
The Global Benchmark for Graduation Excellence
Challenge to reimagine the Iron Throne
Comments (0)
Please login or sign up to add comments
No comments yet. Be the first to comment!