Eco-friendly Gallery House Design in Belgium: The Gallery House by Wim Goes Architectuur
This article showcases The Gallery House in Belgium, focusing on its eco-friendly design, sustainable materials, and cultural architectural integration.
Nestled in the serene Flemish landscape surrounded by nature, The Gallery House, designed by Wim Goes Architectuur, is a pioneering example of eco-friendly gallery house design in Belgium. Spanning an area of 167 m² and completed in 2022, this project seamlessly blends cultural architecture with environmental sensitivity.


Architectural Philosophy and Environmental Integration
The Gallery House is a testament to the harmonious integration of architecture into its natural surroundings. With an emphasis on tranquility, simplicity, and memory, the design respects the existing landscape while providing a contemporary living space. The use of purified materials and countryman's logic in design highlights the project's dedication to simplicity and environmental harmony.




Challenges and Material Use
Facing the challenges of maintaining ecological integrity, The Gallery House employs innovative materials and construction techniques. The extensive use of wood, hempcrete insulation, and natural calque plaster reflects a commitment to sustainability and a tactile connection with nature.


Sustainable Building Practices
Wood and Hempcrete Construction
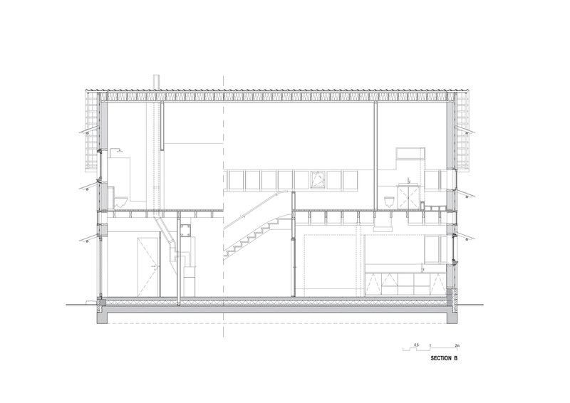
The structure showcases timber's natural beauty, with Oregon wood beams and Larch strips defining the façade. The incorporation of hempcrete for insulation exemplifies the house’s ecological considerations, enhancing thermal mass and controlling indoor humidity for improved living conditions.


Design and Spatial Experience
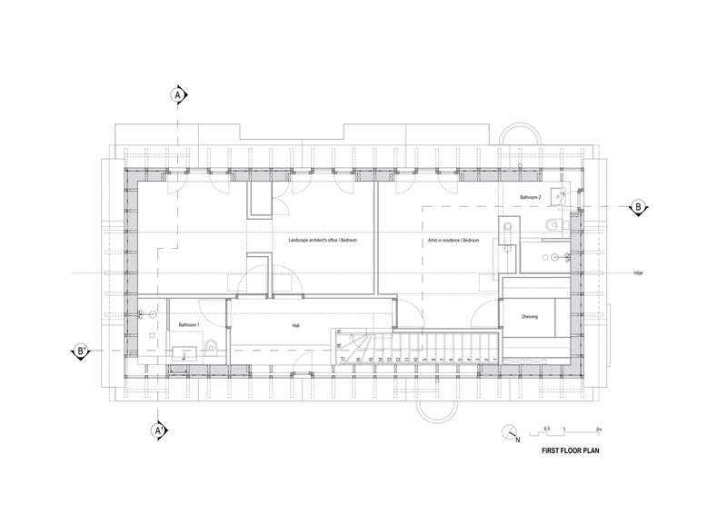
The Gallery House offers a unique spatial experience, blurring the lines between gallery and residential space. Its design fosters different atmospheres and interactions with natural elements, creating a dynamic living environment.





Interior and Exterior Harmony
The design extends beyond the house's interior, with untreated aluminum canopies and strategic window placements enhancing natural light and protecting against the elements. This approach reflects traditional regional techniques, modernized to meet contemporary ecological standards.



The Gallery House by Wim Goes Architectuur stands as a landmark in eco-friendly gallery house design in Belgium, embodying the principles of sustainability, integration with nature, and architectural innovation. This project not only provides a template for future sustainable homes but also represents a harmonious blend of cultural and environmental consciousness.



All photographs are work of Eva Fache
Popular Articles
Popular articles from the community
On the Brooks House by Monsoon Collective – A Contemporary Kerala Home Rooted in Tradition
Kerala home blending tradition and modernity with water-inspired design, brick architecture, courtyard planning, and sustainable rainwater harvesting strategies.
A Contemporary Take on Iranian Residential Architecture
A modern interior design in Mashhad that reinterprets brick, light, and spatial flow to create a warm, contemporary residential architecture.
Louis Malle Cinema: A Limestone Cultural Landmark Revitalizing Community Life in Prayssac
Limestone cinema extension with public forecourt, blending heritage and modern design to create flexible cultural spaces and strengthen community interaction.
Inverted Architecture Installation by Studio Link-Arc: Exploring the Intersection of Architecture and Living Organisms
Inverted Architecture Installation by Studio Link-Arc blends mycelium, sustainability, inverted design, ecological cycles, and urban adaptive architecture in Shenzhen.
Similar Reads
You might also enjoy these articles
The Ken Roberts Memorial Delineation Competition (Krob)
As the most senior architectural drawing competition currently in operation anywhere in the world, it draws hundreds of entries each year, awarding the very best submissions in a series of medium-based categories.
Waterfront Redevelopment and Urban Revitalization in Mumbai: Forging a New Dawn for Darukhana
A transformative waterfront redevelopment project reimagining Darukhana’s shipbreaking heritage into an inclusive urban future.
OUT-OF-MAP: A Call for Postcards on Feminist Narratives of Public Space
Rhizoma Design and Research Lab invites artists, designers, architects, researchers, and students to reflect on how feminist perspectives can reshape public space. Selected works will be exhibited in Barcelona, October 2026. Submissions open until 15 April 2026.
Documentation Work on Buddhist Wooden Temple
Architectural syncretism and cultural hybridity: A comparative study of the Buddhist temples in Chattogram Hill tracks
Explore Architecture Competitions
Discover active competitions in this discipline
The International Standard for Design Portfolios
The Global Benchmark for Architecture Dissertation Awards
The Global Benchmark for Graduation Excellence
Challenge to reimagine the Iron Throne
Comments (0)
Please login or sign up to add comments
No comments yet. Be the first to comment!