Elevated Forest House: Guapuruvus House by Cornetta Arquitetura Blends Nature with Modern Design
Guapuruvus House is an elevated forest house in Brazil that blends sustainable construction with nature, creating a modern retreat.
Introduction to the Elevated Forest House Concept
Guapuruvus House, designed by Cornetta Arquitetura, stands as a remarkable example of an elevated forest house that seamlessly integrates architecture with nature. Located in São Roque, Brazil, this summer retreat redefines residential architecture by combining environmental sensitivity, modern construction techniques, and family-oriented leisure. The house exemplifies how elevated designs can minimize environmental impact while creating a harmonious relationship between the built structure and its forested surroundings.


Context and Natural Setting of the Guapuruvus House
The Guapuruvus House is nestled within a site surrounded by native forest, with over 70% of the land preserved in its natural state. The architects carefully analyzed the topography and vegetation to select the least intrusive location for construction. The chosen site was an area that had already undergone previous interventions, ensuring minimal disruption to the natural ecosystem. This approach embodies the fundamental principle of the elevated forest house—building with respect for nature.

The house was envisioned as a modern cabin where the family could retreat on weekends, fostering an adventurous lifestyle and offering children an immersive experience with nature.

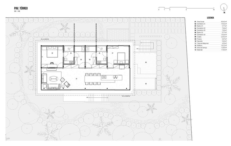
Elevated House Design and Site Integration
The design of Guapuruvus House adopts an elevated construction approach, lifting the main living spaces above the ground. This strategy was driven by the desire to reduce the environmental footprint and adapt the structure to the natural contours of the site. The elevated forest house concept allows the landscape to flow beneath the structure, preserving the natural vegetation while minimizing excavation and land alteration.

Beneath the elevated section, a service level is discreetly embedded into the sloping terrain. This lower level includes practical functions such as a laundry room, storage space, retaining walls, and a solarium with a swimming pool. The seamless integration of this functional base with the topography reinforces the house’s commitment to environmental preservation.

Construction Techniques and Sustainable Materials
Guapuruvus House is a showcase of innovative construction methods tailored to suit both the natural environment and the architectural vision. The project was executed in two distinct stages, each employing specific materials and techniques suited to their function.

The first stage involved the construction of the basement level using traditional masonry techniques. Structural block masonry, stone masonry, and exposed concrete walls were utilized to form a robust base that interacts harmoniously with the terrain.

The second stage focused on the elevated forest house itself, emphasizing prefabrication and assembly for efficiency and reduced site disturbance. Glued laminated timber (glulam) beams and nailed laminated timber (NLT) slabs were employed to create a lightweight yet durable structure. These timber elements, known for their sustainability and aesthetic warmth, reinforce the house’s natural connection to the forest.

Light steel framing was chosen for both the internal and external walls, providing precision and speed in assembly while ensuring structural strength. This combination of timber and steel results in a house that is both environmentally conscious and architecturally sophisticated.

Interior Spaces: Warmth and Connection to Nature
The interiors of Guapuruvus House reflect the natural materials used in construction, with wood dominating the palette. The living spaces are characterized by open layouts, large windows, and wooden surfaces, creating a warm and inviting atmosphere. These design choices enhance the sense of being immersed in nature while promoting natural ventilation and maximizing daylight.


Furniture and decor elements further emphasize simplicity and comfort, aligning with the house’s philosophy of blending modern living with the tranquility of the forest. The elevated position provides residents with panoramic views of the surrounding greenery, reinforcing the forest house experience.


Landscaping and Environmental Restoration
A defining aspect of the Guapuruvus House project is its commitment to environmental restoration. The landscaping strategy played a crucial role in reestablishing the native forest around the house after construction. Indigenous plant species were introduced to reintegrate the built environment with its natural surroundings.


This reforestation effort not only mitigated the ecological impact of construction but also enhanced the visual and experiential connection between the house and the forest. The result is a living environment where architecture and nature coexist in perfect harmony.


The Significance of Elevated Forest Houses in Modern Architecture
Guapuruvus House exemplifies the broader architectural movement toward elevated forest houses, which prioritize ecological preservation, adaptive design, and sustainable construction. This approach represents a shift from conventional residential development, offering a model for future projects in sensitive natural environments.

Elevated forest houses address the growing demand for homes that respect the environment while providing contemporary comfort. They demonstrate how thoughtful architecture can enhance both human well-being and ecological balance.


Guapuruvus House by Cornetta Arquitetura stands as a benchmark for elevated forest house design in Brazil and beyond. Through its elevated structure, sustainable materials, and landscape integration, the house exemplifies how architecture can harmonize with nature. It offers a vision for future residential developments where ecological sensitivity and modern living go hand in hand.



The house not only provides a peaceful retreat for its residents but also serves as an architectural statement on the potential of elevated forest houses to shape the future of residential design.


Popular Articles
Popular articles from the community
Fifth NRE Jazz Club – De Bever Architecten: Eindhoven’s Revitalized Cultural Hub
Historic gas factory transformed into Fifth NRE Jazz Club blending modern sustainability, jazz culture, dining, and heritage architecture seamlessly.
Alton Cliff House: A Harmonious Retreat by f2a Architecture in Lake Country, Canada
Alton Cliff House blends corten steel, prefabrication, and sustainable design, creating a luxurious, energy-efficient retreat perched on Canadian cliffs.
Atelier Macri Concept Store Interior Design by CASE-REAL
Atelier Macri store features a "ko" counter, walnut wood details, cork displays, blending retail, gallery, and seamless customer experiences.
Similar Reads
You might also enjoy these articles
Bamboo Housing Challenge 2026: Design Affordable, Sustainable Homes Using Bamboo
An international design competition by Bamboo U and IBUKU inviting architects and designers to reimagine affordable housing using bamboo — with the winning design built full-scale in Bali.
Computational Design & Education: Beegraphy Design Awards Introduces 7th Category (Featuring Jiyun's Innovative Approach)
Dive into Beegraphy’s 7th Design Awards category, where computational design meets education to create immersive, interactive learning tools, inspired by Jiyun’s work.
From Parametric Lighting to Urban Furniture: Join the 2nd Workshop in Beegraphy’s Computational Design Series
Dive into Cutting-Edge Design Techniques and Practical Applications with Industry Experts
Explore Architecture Competitions
Discover active competitions in this discipline
The International Standard for Design Portfolios
The Global Benchmark for Architecture Dissertation Awards
The Global Benchmark for Graduation Excellence
Challenge to reimagine the Iron Throne
Comments (0)
Please login or sign up to add comments
No comments yet. Be the first to comment!