ENEDIS Offices and Logistics Hub by Concorde Architecture Urbanisme: A Functional and Sustainable Industrial Landmark in Miserey-Salines
Sustainable logistics and office hub by Concorde Architecture combines wood and concrete for ergonomic, climate-responsive workspaces in Miserey-Salines.
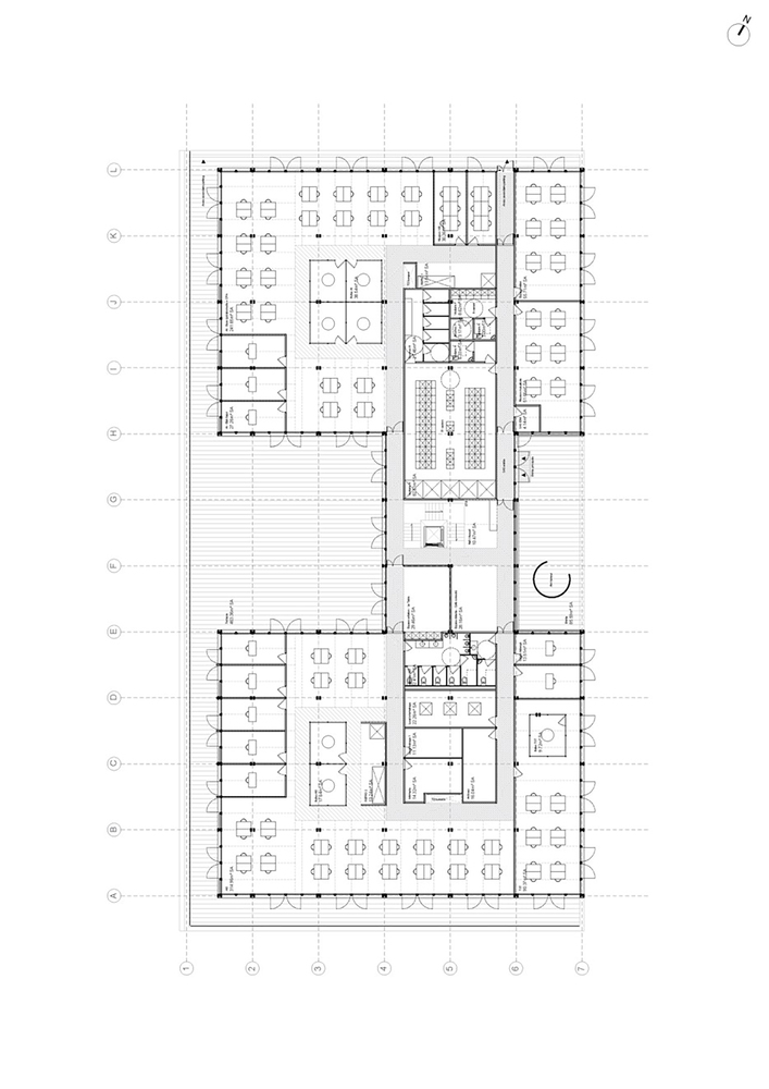
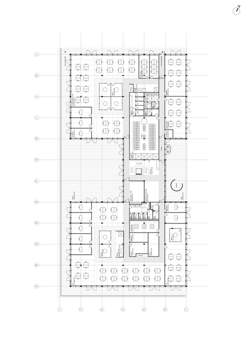
Located in the heart of Miserey-Salines, France, the new Offices and Logistics Center for ENEDIS, designed by Concorde Architecture Urbanisme, redefines the standards of industrial architecture. Completed in 2023, this 2,840 m² facility merges functionality with environmental responsibility, creating a high-performance workplace that emphasizes ergonomics, comfort, and sustainable construction.



A Holistic Approach to Industrial and Office Architecture
The project brings together three core functions—technical workshops, logistics storage, and administrative offices—within a unified and highly efficient layout. Rather than separating these functions, the design articulates them into a cohesive architectural ensemble, promoting fluid circulation, operational synergy, and spatial optimization.
In response to ENEDIS’ operational needs, the architecture prioritizes ergonomics and functional clarity. But more than just meeting performance goals, the building is conceived as a healthy, enjoyable, and resilient working environment—a necessity emphasized by its development during the Covid-19 pandemic.


Enhancing Workplace Wellbeing with Access to Nature
Recognizing the growing importance of workplace wellness, the project integrates large openings, expansive views, and a generous rooftop terrace, allowing natural light and outdoor access to enrich the daily experience of employees. These design choices not only elevate the architectural character but also directly support physical and mental well-being.


Sustainable Materials and Climate-Conscious Design
A key feature of the project is its use of local, sustainable materials, combining timber and concrete in an expressive structural language. The lower level—home to the robust technical areas—is built with durable concrete, while the upper level features a lightweight wooden structure, expressing warmth and material honesty.


The Canopy: A Passive Environmental Strategy
A signature element of the project is its architectural canopy, which functions as both a climatic buffer and spatial organizer. This overhanging structure shelters the facades from rain and sun, increasing their lifespan while reducing thermal load. At the same time, it visually distinguishes the office areas from the technical zones, reinforcing programmatic hierarchy across the site.

Architecture That Reflects a New Industrial Ethos
In balancing performance with environmental responsibility and human-centered design, Concorde Architecture Urbanisme sets a precedent for next-generation industrial architecture. This project goes beyond basic logistics—it's a statement about how infrastructure can be elegant, sustainable, and attuned to the needs of its users.

All Photographs are works of Matthieu Torres
Popular Articles
Popular articles from the community
Split House: A Compact Urban Home Blending Privacy, Light, and Flexible Living in Japan
Compact Japanese home featuring DOMA space, flexible café potential, passive lighting, privacy zoning, and sustainable urban living design.
Marvila Apartment Renovation in Lisbon: A Bright Minimalist Attic Transformation by KEMA Studio
Bright attic transformed into minimalist Lisbon apartment with skylights, sustainable materials, open plan layout, and industrial-inspired interior design elements.
Magic Box Office Barcelona Innovative Sustainable Workplace Design
Innovative sustainable office design featuring triangular form, ceramic façade, flexible interiors, natural light optimization, and creative workspace for modern work culture.
Free Architecture Competitions You Can Enter Right Now
No entry fees, real prizes. Here are the best free architecture competitions open for submissions in 2026.
Similar Reads
You might also enjoy these articles
Filtering Space: A Gradual Spatial Experience
From urban intensity to spatial calm.
The Ken Roberts Memorial Delineation Competition (Krob)
As the most senior architectural drawing competition currently in operation anywhere in the world, it draws hundreds of entries each year, awarding the very best submissions in a series of medium-based categories.
Waterfront Redevelopment and Urban Revitalization in Mumbai: Forging a New Dawn for Darukhana
A transformative waterfront redevelopment project reimagining Darukhana’s shipbreaking heritage into an inclusive urban future.
OUT-OF-MAP: A Call for Postcards on Feminist Narratives of Public Space
Rhizoma Design and Research Lab invites artists, designers, architects, researchers, and students to reflect on how feminist perspectives can reshape public space. Selected works will be exhibited in Barcelona, October 2026. Submissions open until 15 April 2026.
Explore Office Building Competitions
Discover active competitions in this discipline
The International Standard for Design Portfolios
The Global Benchmark for Architecture Dissertation Awards
The Global Benchmark for Graduation Excellence
Challenge to reimagine the Iron Throne
Comments (0)
Please login or sign up to add comments
No comments yet. Be the first to comment!