Exploring Innovative Apartment Design: Mikumizaka Flats by Hiroyuki Ito Architects
This article discusses the Mikumizaka Flats by Hiroyuki Ito Architects, highlighting its unique, innovative apartment design in Japan.
The Mikumizaka Flats, designed by Hiroyuki Ito Architects in Japan, represent a pinnacle of innovative apartment design. With a unique architectural approach that emphasizes individualized living spaces within a communal structure, these apartments showcase how modern living can adapt to diverse resident needs and site-specific conditions.




Architectural Concept of Mikumizaka Flats
Customized Living Spaces
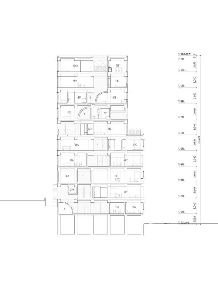
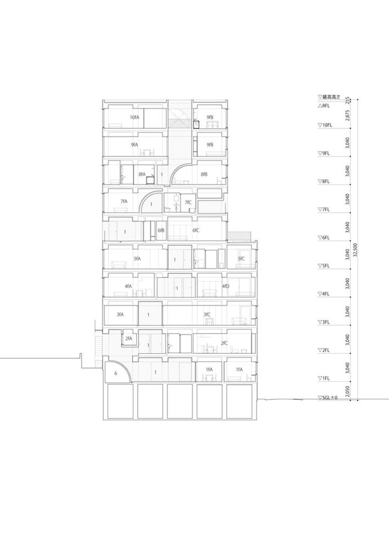
Each apartment unit at Mikumizaka Flats is crafted to reflect the unique conditions of the site, including orientation and floor level. This results in a variety of floor plans and living experiences within the same building, emphasizing personalization in apartment design—a key trend in contemporary architecture.


Structural Design and Material Selection
The post and beam structure of Mikumizaka Flats allows for the flexible arrangement of spaces. This structural choice supports the various configurations of apartments, all while maintaining a cohesive aesthetic throughout the building. The selection of finishing materials complements this design, with different sets used to enhance the functionality and ambiance of each unit.




Innovative Elements in Interior Design
Diagonal and Curved Walls
One of the standout features of Mikumizaka Flats is the use of diagonal walls and half-arch elements. These are not just structural necessities but are also integral to the visual and functional flow of the apartments. They help in connecting non-tangent rooms creatively, pushing the boundaries of traditional apartment layouts.



Expansive Use of Space
The repetitive exposure of structural elements across different rooms adds a sense of expansiveness and continuity. This design choice not only maximizes the sense of space but also subtly guides the residents' perceptions, making each unit feel larger and more open.


Integration with the Community
Creating a Continuous Environment
Mikumizaka Flats are designed to extend the living space beyond the confines of individual apartments, promoting a sense of community. The building's layout and its open architectural features encourage interactions among residents and integrate the living spaces with the surrounding neighborhood.



The Future of Apartment Living
Mikumizaka Flats by Hiroyuki Ito Architects exemplify innovative apartment design, blending individual preferences with communal living principles. This project serves as a model for future developments aiming to create flexible, personalized living spaces within urban environments.
By addressing both individual needs and community engagement, Mikumizaka Flats pave the way for a new era in residential architecture, where design is as much about creating personal sanctuaries as it is about fostering community connections.




All photographs are work of Masao Nishikawa
Popular Articles
Popular articles from the community
Flamboyant House by Juliana Camargo + Prumo Projetos
Modern Brazilian house integrating existing tree, pool, and volumes with glass, wood, and transitional spaces blending interior, exterior, and landscape seamlessly.
Atelier Macri Concept Store Interior Design by CASE-REAL
Atelier Macri store features a "ko" counter, walnut wood details, cork displays, blending retail, gallery, and seamless customer experiences.
Inverted Architecture Installation by Studio Link-Arc: Exploring the Intersection of Architecture and Living Organisms
Inverted Architecture Installation by Studio Link-Arc blends mycelium, sustainability, inverted design, ecological cycles, and urban adaptive architecture in Shenzhen.
On the Brooks House by Monsoon Collective – A Contemporary Kerala Home Rooted in Tradition
Kerala home blending tradition and modernity with water-inspired design, brick architecture, courtyard planning, and sustainable rainwater harvesting strategies.
Similar Reads
You might also enjoy these articles
Top 15 Architecture Competitions to Enter in 2026
From student-friendly idea competitions to prestigious international awards, here are the best architecture competitions open for entries in 2026. Updated regularly.
DIY & Engineering in Computational Design : Enter the BeeGraphy Design Awards
Showcase Your Creativity with Computational Design and Open Source Projects

Innovative Design Solutions: Award-Winning Projects from Recent Architecture Competitions
Exploring award-winning architectural projects shaping the future of design, sustainability, and community.
Explore Architecture Competitions
Discover active competitions in this discipline
The International Standard for Design Portfolios
The Global Benchmark for Architecture Dissertation Awards
The Global Benchmark for Graduation Excellence
Challenge to reimagine the Iron Throne
Comments (0)
Please login or sign up to add comments
No comments yet. Be the first to comment!