Extreme Habitat: A Sustainable Vernacular Architecture Model in the Sahara Desert
Extreme Habitat blends sustainable architecture with vernacular traditions to shape a climate-resilient future in the heart of the Sahara.
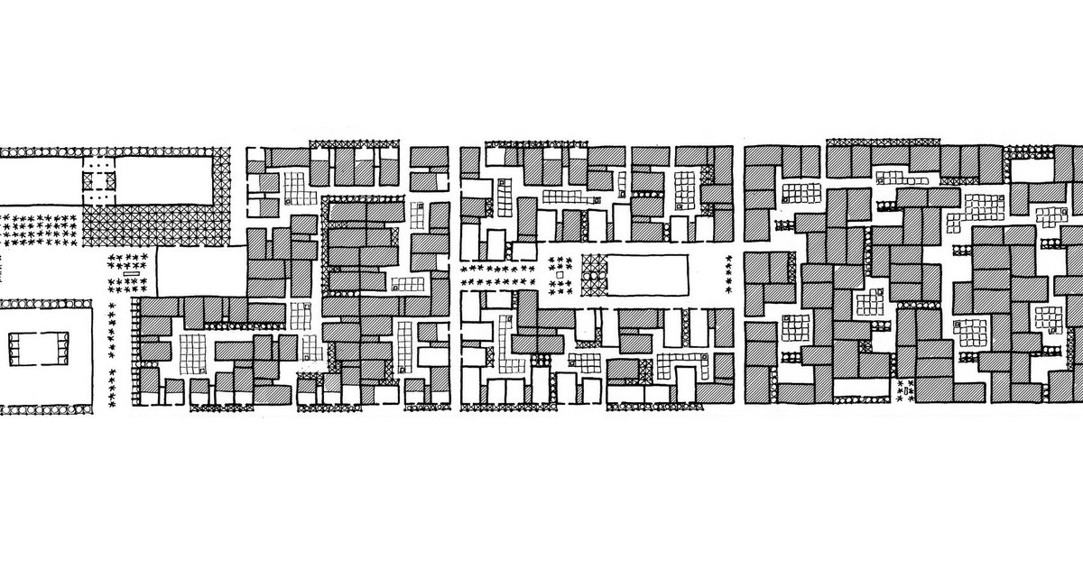
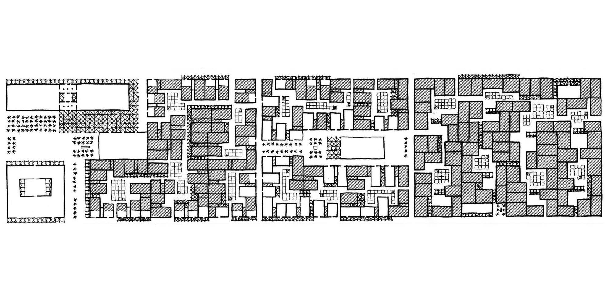
In the face of accelerating climate change, the need for sustainable architecture is more urgent than ever. "Revival. Vernacular Architecture." a shortlisted entry by Małgorzata Snela and Patrycja Jędra for the EHC - Sahara competition, is an innovative proposal situated in the Sahara Desert, Mauritania. This visionary project aims to reduce the embodied energy of the building life cycle by embracing vernacular building techniques and restoring autonomy to local communities.


The design draws heavily from traditional desert architecture, using materials like adobe, rammed earth, and cob—proven to perform well in arid environments due to their thermal mass and passive cooling benefits. The urban layout is based on modular, expandable housing units tailored to meet the evolving needs of families, thereby ensuring long-term adaptability and community cohesion.
Inspired by the work of Hassan Fathy, the project advocates for an architectural pedagogy rooted in craftsmanship and traditional knowledge. It envisions a new Institute of Earthen Architecture that revives and advances passive house concepts while fostering innovation through local participation.
Key infrastructural components include:
- Passive cooling techniques (mashrabiya, takhtabush, qanats)
- Zoning strategies for public, semi-public, and private spaces
- Integration of photovoltaic stations and vertical gardens
- A hyperloop transportation system to connect the settlement to wider urban networks

The architecture is not just about form but function—offering resilience, comfort, and sustainability. The project demonstrates how sustainable architecture can offer practical, scalable solutions to future climate challenges while empowering communities to reclaim their built environment.
Project by: Małgorzata Snela, Patrycja Jędra
Shortlisted Entry: Extreme Habitat Challenge - Sahara

Popular Articles
Popular articles from the community
Gads Hill Early Learning Center by JGMA: Adaptive Reuse Shaping Community-Focused Educational Architecture
Adaptive reuse transforms fragmented structure into vibrant early learning center with playful façade, natural light, and community-focused sustainable design.
A Contemporary Take on Iranian Residential Architecture
A modern interior design in Mashhad that reinterprets brick, light, and spatial flow to create a warm, contemporary residential architecture.
Fifth NRE Jazz Club – De Bever Architecten: Eindhoven’s Revitalized Cultural Hub
Historic gas factory transformed into Fifth NRE Jazz Club blending modern sustainability, jazz culture, dining, and heritage architecture seamlessly.
Inverted Architecture Installation by Studio Link-Arc: Exploring the Intersection of Architecture and Living Organisms
Inverted Architecture Installation by Studio Link-Arc blends mycelium, sustainability, inverted design, ecological cycles, and urban adaptive architecture in Shenzhen.
Similar Reads
You might also enjoy these articles
Top 15 Architecture Competitions to Enter in 2026
From student-friendly idea competitions to prestigious international awards, here are the best architecture competitions open for entries in 2026. Updated regularly.
DIY & Engineering in Computational Design : Enter the BeeGraphy Design Awards
Showcase Your Creativity with Computational Design and Open Source Projects

Innovative Design Solutions: Award-Winning Projects from Recent Architecture Competitions
Exploring award-winning architectural projects shaping the future of design, sustainability, and community.
Explore Transportation Competitions
Discover active competitions in this discipline
The Global Benchmark for Architecture Dissertation Awards
The Global Benchmark for Graduation Excellence
Challenge to design a shop stop sunk in the city
Comments (0)
Please login or sign up to add comments
No comments yet. Be the first to comment!