Falkland Road House Extension Design: A Harmonious Blend of Light, Space, and Nature
This article explores the transformative residential extension of a Kentish Town terrace, focusing on maximizing light, space, and functionality.
The transformation of a three-storey terrace house located in Kentish Town, United Kingdom, exemplifies the potential of residential extension design. The project, led by Studio 163, focused on revitalizing a narrow ground floor that lacked natural light, storage, and sufficient space for a growing family. With a strong emphasis on enhancing the relationship between indoor and outdoor spaces, the architects utilized a minimalist material palette to create a warm and expansive living environment.


Maximizing Space and Light in Residential Design
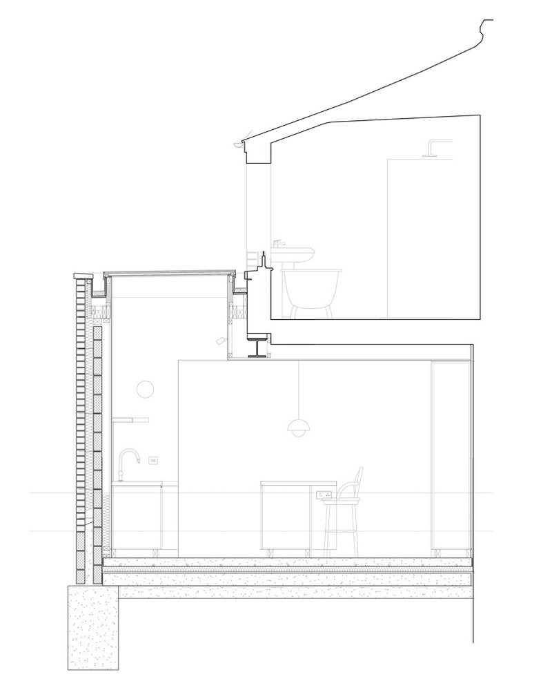
The primary challenge for this residential extension was maximizing available space while integrating natural light into the design. To achieve this, a full-width rear extension was added to the home, significantly improving ceiling height and creating a fluid transition between different parts of the house. The kitchen and dining areas now enjoy abundant daylight, thanks to two expansive rooflights that bring natural light deep into the interior.


Enhancing Atmosphere Through Material Choices
The design approach embraced a deliberate use of natural materials, including oak and concrete, to create a tonal and inviting atmosphere. The concrete flooring, which runs seamlessly from the living space to the patio, forms built-in planters and marks a subtle distinction between different levels within the home. The beige polished concrete datum line serves as a visual cue to highlight the extension’s added space and structural integrity.



Creating Unique Spatial Experiences with Ceiling Heights
An essential aspect of the residential extension was introducing varied ceiling heights, which helped define distinct atmospheres within the open-plan design. By elevating the kitchen and dining area slightly, the architects were able to establish a visual separation from the front living room, all while maintaining an open and interconnected layout. These changes provide a dynamic and comfortable living space that adapts to different activities and moods.



Connecting Interior and Exterior Through Large Windows
The design also emphasizes a seamless connection to the garden. Large glazed doors, with minimal frames, allow unobstructed views of the outdoors while maximizing natural light flow into the interior. The new opening between the two sections of the ground floor also facilitates a smooth transition between spaces, ensuring the home feels expansive and inviting.



Custom Joinery for Function and Style
To maintain the clean, open feel of the design, custom-built joinery was incorporated throughout the home. Oak kitchen cabinets complement the natural elements of the space, while full-height cupboards blend into the background with a neutral, understated finish. These bespoke pieces offer ample storage, contributing to the overall functional aesthetic of the home.



Sustainability in Design: Reusing Materials
In keeping with the principles of sustainable design, the architects made efforts to reuse existing materials wherever possible. Reclaimed bricks were used for the walls, and timber was employed for the patio deck, reducing the environmental impact of the project. The exterior’s re-rendered rear facade was left unpainted, with the natural buff color of the render harmonizing with the surrounding London stock bricks, creating a unified and environmentally conscious finish.



A Thoughtful Residential Extension Design
The Falkland Road extension showcases how careful design can transform a limited, dark space into a light-filled, functional, and beautiful home. By focusing on the relationship between materials, space, and light, Studio 163 has created a home that not only meets the needs of a growing family but also enhances the connection to the surrounding environment. This project is a perfect example of how residential extension design can breathe new life into an existing structure while maintaining respect for both functionality and aesthetics.



All Photographs are works of Lorenzo Zandri