François Ier Building By Barthélémy Griño Architectes – Parisian Office Renovation and Contemporary Design
The François Ier Building in Paris blends historic Haussmann architecture with modern office design, featuring natural light, bespoke interiors, and flexible workspaces.
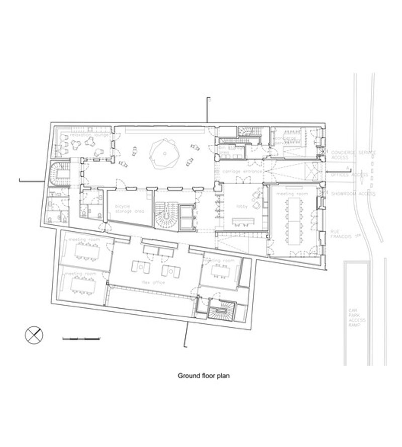
Nestled in the prestigious Triangle d’Or of Paris, the François Ier Building by Barthélémy Griño Architectes represents a masterful blend of historical preservation and modern office design. Strategically located on rue François Ier, in the heart of the 8th arrondissement near the iconic Avenue Montaigne, the building underwent a comprehensive renovation and refurbishment to meet contemporary functional requirements while preserving its 19th-century Haussmannian heritage.


Spanning a total area of 2,770 m², the project involved three distinct structures: the main Haussmann-style building, a rear annex pavilion, and a smaller 1970s addition. While the first two historic structures were meticulously rehabilitated, the latter was demolished and rebuilt to seamlessly integrate with the new design. Over fourteen months of careful construction, the architects delivered a mixed-use building combining modern offices, showrooms, and thoughtfully curated interior spaces.


The renovation prioritizes natural light, spatial fluidity, and acoustic comfort. The offices, strategically placed between the street and courtyard, feature generously glazed partitions that create a through-volume with double exposure, allowing light to permeate deep into the workspace. Dedicated areas for private calls and focused work were carefully integrated, enhancing acoustic privacy while maintaining an open, collaborative environment.


Interior design, led by Sylvia Griño, emphasizes noble and sustainable materials, balancing light tones with warm accents to create a refined and welcoming atmosphere. Bespoke furnishings complement the architecture, reinforcing the building’s unique identity and supporting a harmonious workflow. Social spaces, workstations, and showrooms were designed for flexible configurations, promoting both productivity and well-being.


The project respects the building’s historic urban fabric while introducing contemporary interventions that echo the Parisian elegance of the surrounding neighborhood. The courtyard, fully integrated into the office environment, acts as a serene oasis, blurring the boundary between interior and exterior spaces. Every architectural decision—from the spatial layout to material choices—reflects attention to detail, functional excellence, and aesthetic sophistication.


In sum, the François Ier Building renovation is more than a workplace upgrade; it is a holistic approach to urban office design, harmonizing heritage preservation, luxury finishes, and modern functionality. The project demonstrates how thoughtful architectural restoration can elevate daily experiences, offering employees and visitors alike a refined, light-filled environment that embodies the elegance and spirit of Paris.


All the photographs are works of Schnepp Renou
Popular Articles
Popular articles from the community
Atelier Macri Concept Store Interior Design by CASE-REAL
Atelier Macri store features a "ko" counter, walnut wood details, cork displays, blending retail, gallery, and seamless customer experiences.
Alton Cliff House: A Harmonious Retreat by f2a Architecture in Lake Country, Canada
Alton Cliff House blends corten steel, prefabrication, and sustainable design, creating a luxurious, energy-efficient retreat perched on Canadian cliffs.
Gads Hill Early Learning Center by JGMA: Adaptive Reuse Shaping Community-Focused Educational Architecture
Adaptive reuse transforms fragmented structure into vibrant early learning center with playful façade, natural light, and community-focused sustainable design.
Similar Reads
You might also enjoy these articles
The Ken Roberts Memorial Delineation Competition (Krob)
As the most senior architectural drawing competition currently in operation anywhere in the world, it draws hundreds of entries each year, awarding the very best submissions in a series of medium-based categories.
Waterfront Redevelopment and Urban Revitalization in Mumbai: Forging a New Dawn for Darukhana
A transformative waterfront redevelopment project reimagining Darukhana’s shipbreaking heritage into an inclusive urban future.
OUT-OF-MAP: A Call for Postcards on Feminist Narratives of Public Space
Rhizoma Design and Research Lab invites artists, designers, architects, researchers, and students to reflect on how feminist perspectives can reshape public space. Selected works will be exhibited in Barcelona, October 2026. Submissions open until 15 April 2026.
Documentation Work on Buddhist Wooden Temple
Architectural syncretism and cultural hybridity: A comparative study of the Buddhist temples in Chattogram Hill tracks
Explore Office Building Competitions
Discover active competitions in this discipline
The International Standard for Design Portfolios
The Global Benchmark for Architecture Dissertation Awards
The Global Benchmark for Graduation Excellence
Challenge to reimagine the Iron Throne
Comments (0)
Please login or sign up to add comments
No comments yet. Be the first to comment!