Fueda House: A Pet-Friendly Home Renovation by ROOVICE in Kamakura
This article explores Fueda House, a pet-friendly home renovation by ROOVICE, blending functionality, charm, and modern living design.
In the serene town of Kamakura, Japan, a modest 1970s wooden house has been transformed into a contemporary, pet-friendly haven by ROOVICE, led by architect Maoko Sato. This 110-square-meter home exemplifies how thoughtful design can create a functional, comfortable, and aesthetically pleasing environment for both people and their pets. The renovation balances practicality, sustainability, and charm, preserving the house's original character while adapting it to modern living.



A Vision for Modern Living with Pets
The Fueda House renovation was undertaken to meet the needs of a young couple and their pets. The design embraces functionality, ensuring the house serves as a space where humans and animals can coexist harmoniously. By blending subtle updates with practical solutions, the architects have created a home that prioritizes comfort and simplicity without compromising on style.



Preserving Character with Subtle Updates
The renovation approach maintained the essence of the original structure while introducing modern elements. The walls feature a mix of finishes, including spray-textured coatings resembling exterior surfaces and areas left in their original state. This combination creates a relaxed, slightly mismatched aesthetic that avoids over-standardization. The spacious garden complements the home’s natural and understated charm, providing an ideal outdoor space for pets.



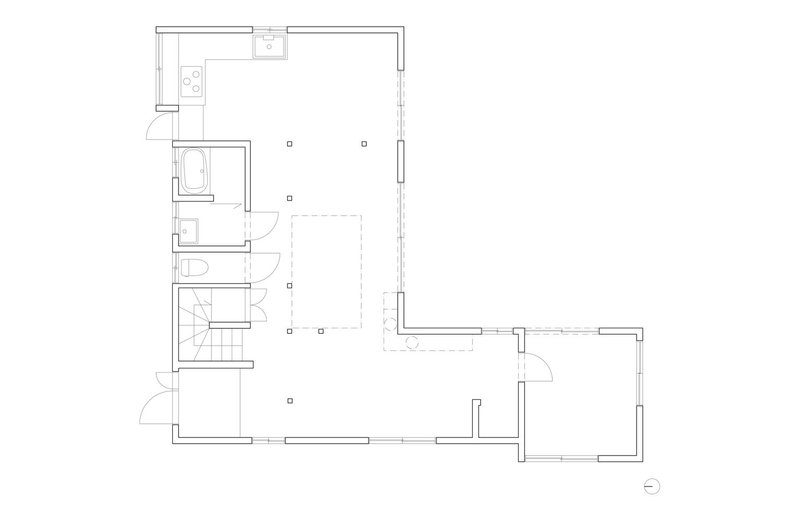
Enhancing the Kitchen for Functionality
The compact 1970s kitchen was reimagined into an L-shaped layout, enhancing its functionality for daily cooking and activities. The hard-plaster countertop was selected for its durability and ability to age gracefully over time. To accommodate the couple’s pets, the living-dining-kitchen area was updated with PVC long sheet flooring, a practical and easy-to-clean option that simplifies maintenance.



Maximizing Natural Light and Spatial Flow
A standout feature of the renovation is the double-height lightwell in the living room, designed to invite natural daylight through narrow windows. This architectural element creates a bright, open atmosphere that energizes the home. To further enhance spatial flow, walls on the first floor were removed, connecting the living room with the kitchen and the former tatami room. Exposed wooden beams and pillars add warmth, texture, and structural integrity, while the removal of ceilings in specific areas adds rustic charm and openness.


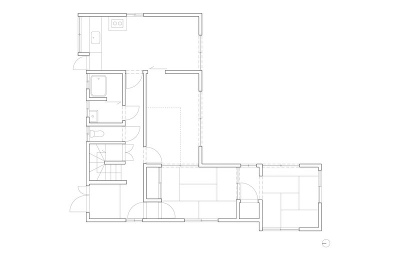
Designing a Pet-Friendly Environment
The renovation includes several features specifically designed for pets. Doorways incorporate pathways for seamless movement, while custom-built catwalks provide vertical spaces for cats to explore and play. These additions reflect the thoughtful integration of pet-friendly elements into the overall design, ensuring that the home is equally suited to the lifestyle of its human and animal occupants.


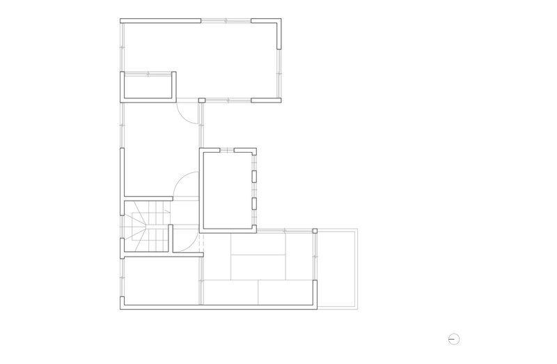
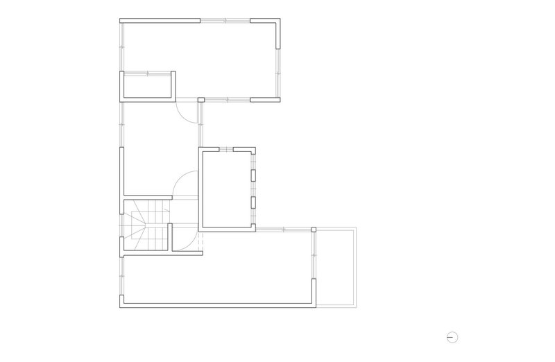
Simplifying the Second Floor
The second floor was reconfigured to create a more open and functional layout. Redundant partitions were removed, and the flooring was updated with oak wood, replacing traditional tatami mats and carpets. This cohesive design enhances practicality and aligns with the modern aesthetic of the home, offering a durable and pet-friendly surface.


A Harmonious Blend of Practicality and Peace
The Fueda House renovation transforms a simple wooden house into a tranquil and practical home. The thoughtful design balances charm and functionality, making it an ideal space for a young couple and their pets. By embracing subtle updates and pet-friendly features, the home demonstrates how architecture can adapt to the evolving needs of its inhabitants while maintaining a sense of peace and harmony.


All Photographs are works of Akira Nakamura