Gach Coffee Shop: An Innovative Coffee Shop Design Inspired by Leather Culture
Gach Coffee Shop by GIZI ASSOCIATES blends innovative coffee shop design with leather culture, creating a dynamic café and cocktail experience.
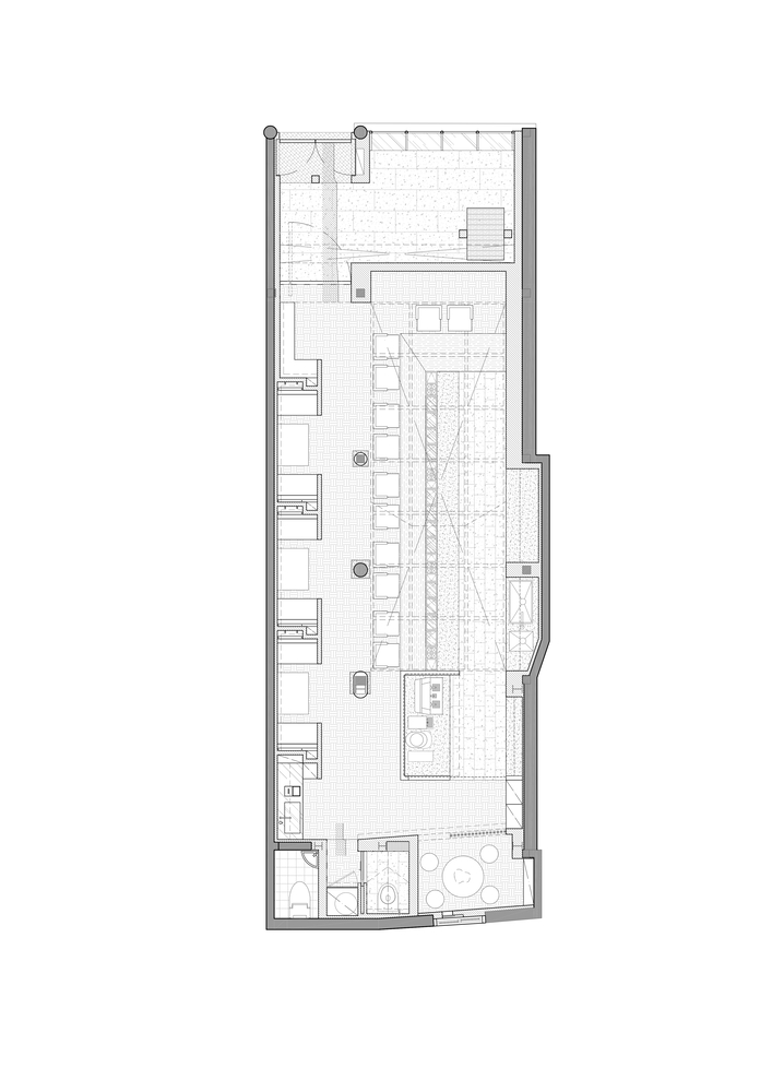
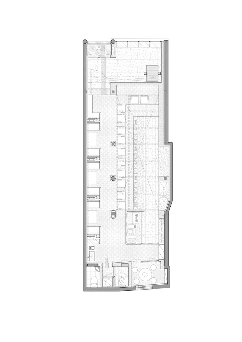
Gach Coffee Shop, designed by GIZI ASSOCIATES, redefines the concept of café interiors by integrating the cultural significance of leather into its design. Located in South Korea’s historic leather district, this 73m² space blends tradition and modernity, creating an immersive experience that extends beyond the typical café environment. With a design rooted in storytelling, materiality, and functionality, Gach Coffee Shop stands as a testament to innovative coffee shop design.




A Space Rooted in History and Culture
The design of Gach Coffee Shop draws inspiration from the rich history of the surrounding leather district, a place that has witnessed shifts in material consumption and trade. The café’s architecture and interiors reflect the authenticity of leather craftsmanship, engaging visitors with a spatial narrative that highlights the evolving relationship between tradition and contemporary lifestyle.


The space is conceptualized as a bridge between generations, where the past meets the present. By collaborating with local leather merchants, the café integrates design elements that honor the district’s legacy while introducing a fresh perspective on how leather can be appreciated in modern society.


A Dual-Purpose Space: Café by Day, Cocktail Bar by Night
Gach Coffee Shop is not just a place for coffee; it is an experiential space designed to transition between different atmospheres throughout the day. During daylight hours, it serves as a serene retreat where visitors can indulge in handcrafted desserts inspired by leather textures and tones. As night falls, the space transforms into an intimate cocktail bar, where the art of mixology takes center stage.



This dual-purpose functionality is achieved through thoughtful lighting, adaptable seating arrangements, and material contrasts that shift in perception under different conditions. By designing a space that evolves with time, GIZI ASSOCIATES has created a dynamic café environment that enhances visitor engagement.



Materiality and Sensory Experience
The use of materials in Gach Coffee Shop is deeply intentional. Leather, wood, and warm lighting create a tactile experience that resonates with the cultural essence of the space. The interiors are designed to evoke a sense of warmth and authenticity, with wooden surfaces complementing the rich textures of leather-inspired elements.



Strategic lighting enhances the organic interplay between these materials, casting shadows that emphasize the craftsmanship embedded in the design. The result is a coffee shop that is not merely a place to drink coffee, but an environment where architecture, culture, and sensory engagement merge seamlessly.



Redefining Café Culture Through Design
Gach Coffee Shop is a prime example of how architecture can transform a commercial space into a cultural landmark. By integrating storytelling, history, and innovative coffee shop design principles, GIZI ASSOCIATES has created a café that encourages interaction, appreciation for materials, and a deeper connection to the urban fabric.




This project showcases how spaces can be designed to reflect the cultural identity of their surroundings while embracing modern sensibilities. As a result, Gach Coffee Shop is not only a destination for coffee lovers but also a place where design and tradition come together to shape a new café culture.


All Photographs are works of Jihoon Park
Popular Articles
Popular articles from the community
An Miên Lumière Cafe by xưởng xép, Ho Chi Minh City, Vietnam
An industrial-inspired café where layered steel and warm light create a dynamic, immersive environment shaped by reflection, depth, and perception.
Inverted Architecture Installation by Studio Link-Arc: Exploring the Intersection of Architecture and Living Organisms
Inverted Architecture Installation by Studio Link-Arc blends mycelium, sustainability, inverted design, ecological cycles, and urban adaptive architecture in Shenzhen.
The Ken Roberts Memorial Delineation Competition (Krob)
As the most senior architectural drawing competition currently in operation anywhere in the world, it draws hundreds of entries each year, awarding the very best submissions in a series of medium-based categories.
On the Brooks House by Monsoon Collective – A Contemporary Kerala Home Rooted in Tradition
Kerala home blending tradition and modernity with water-inspired design, brick architecture, courtyard planning, and sustainable rainwater harvesting strategies.
Similar Reads
You might also enjoy these articles
Bamboo Housing Challenge 2026: Design Affordable, Sustainable Homes Using Bamboo
An international design competition by Bamboo U and IBUKU inviting architects and designers to reimagine affordable housing using bamboo — with the winning design built full-scale in Bali.
Computational Design & Education: Beegraphy Design Awards Introduces 7th Category (Featuring Jiyun's Innovative Approach)
Dive into Beegraphy’s 7th Design Awards category, where computational design meets education to create immersive, interactive learning tools, inspired by Jiyun’s work.
From Parametric Lighting to Urban Furniture: Join the 2nd Workshop in Beegraphy’s Computational Design Series
Dive into Cutting-Edge Design Techniques and Practical Applications with Industry Experts
Introducing Sphere by UNI: Pioneering a New Era in AEC Industry
Unlocking Global Potential with BIM and Agile Management
Explore Architecture Competitions
Discover active competitions in this discipline
The International Standard for Design Portfolios
The Global Benchmark for Architecture Dissertation Awards
The Global Benchmark for Graduation Excellence
Challenge to reimagine the Iron Throne
Comments (0)
Please login or sign up to add comments
No comments yet. Be the first to comment!