Gallery in Ishiyama by CHIKARAISHI ARCHITECTS STUDIO: A Minimalist Expression of Wooden Gallery Architecture in Japan
A showcase of wooden gallery architecture blending brand identity, transparency, and sustainability in a minimalist space in Shiga, Japan.
Nestled in Ōtsu, Shiga Prefecture, the Gallery in Ishiyama by CHIKARAISHI ARCHITECTS STUDIO exemplifies the refined craft of wooden gallery architecture, where structural clarity, material honesty, and flexible spatial design converge to create a thoughtful architectural narrative. Serving as both a gallery and a brand hub for a technology company, this two-story structure is designed not only as a functional space but as an embodiment of the brand’s philosophy of openness, craftsmanship, and sustainability.




A Platform for Communication Through Architecture
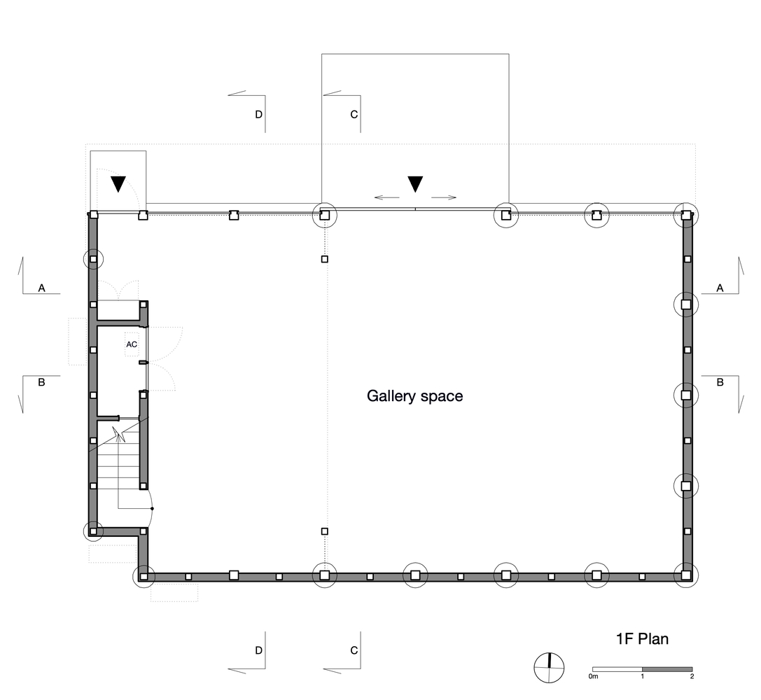
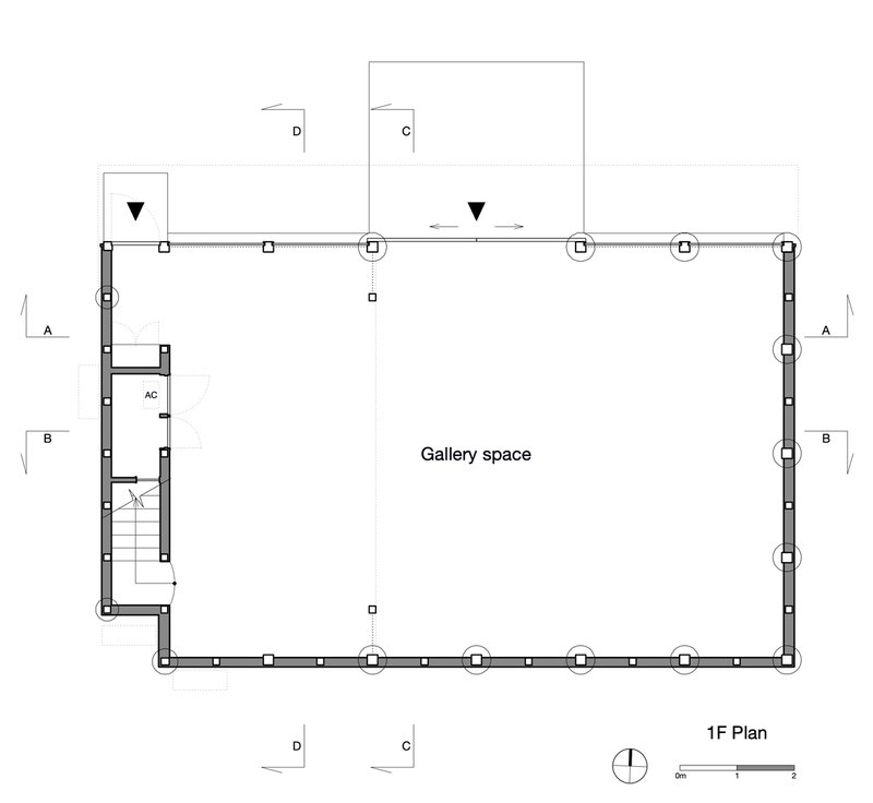
Conceived as a multifunctional space that merges display, work, and communication, the gallery features a single-room layout measuring 7.28 by 10.92 meters. This open-plan configuration is intentionally free of fixed partitions, allowing the space to flexibly shift between uses—exhibitions, product launches, meetings, and events. The architecture becomes a silent communicator of the company’s identity, transforming everyday use into a performative expression of values and design integrity.





Transparency as an Architectural Language
One of the defining features of the gallery is its transparent façade. Large glass panels dominate the exterior, turning the building into a visual display case that invites curiosity from the street. This design strategy ensures that products and internal activities remain visible to the public, reinforcing the company's commitment to openness and engagement with the surrounding community. In doing so, the building functions as both a gallery and a landmark that subtly integrates into the streetscape.





Dual-Level Functionality Within Limited Footprint
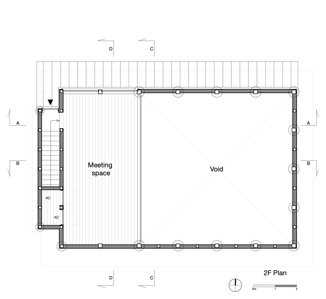
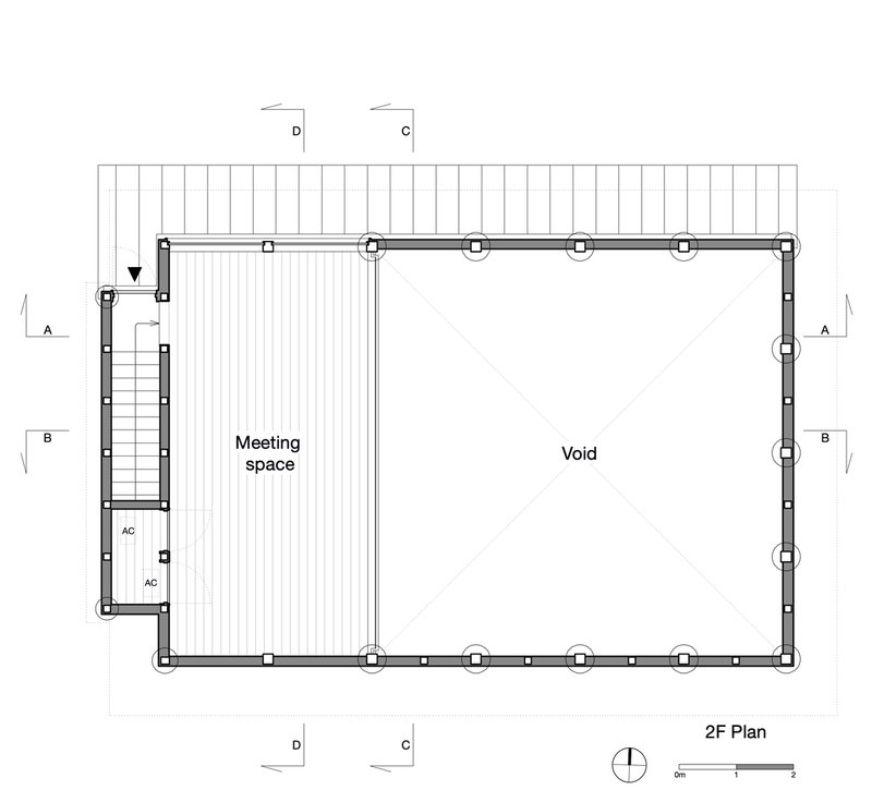
With limited land area, the architects introduced a second story to optimize spatial utility. The first floor serves as a fluid, multifunctional zone where daily work, display, and interaction occur without spatial constraint. Ascending to the second level—where visitors must remove their shoes—introduces a shift in atmosphere. The upper floor is finished with warm Japanese cypress flooring and arranged around a central atrium that filters light from above, creating a bright, serene meeting environment that contrasts with the activity below.




Honoring Craftsmanship Through Materiality
Material selection plays a central role in the architectural language. The structural framework is composed of evenly spaced 180mm square hinoki (Japanese cypress) columns, providing rhythm and strength to the design. Interior surfaces are finished with plaster, which diffuses light gently and adds a sense of calm that evolves with the changing daylight. These materials, used in their natural state, reflect an appreciation for texture, tradition, and tactile experience.




Aging with Grace: Sustainable and Timeless Design
A key principle behind the design is the philosophy of keinen-bika—the belief in beauty that emerges with age and use. This idea aligns with the SDGs by embracing long-lasting, natural materials and reducing environmental impact. As the gallery ages, it is expected to gain character, becoming a vessel of memory and a testament to the enduring relationship between architecture, environment, and human activity.




A Symbolic Intersection of Business and Architecture
The Gallery in Ishiyama is more than a display facility; it is a spatial manifestation of a brand's values, crafted through the language of wooden gallery architecture. With its modular spatial logic, careful use of light and materials, and transparency in both design and intent, it stands as a model for how architecture can meaningfully communicate identity while honoring tradition, sustainability, and the beauty of time.



All Photographs are works of Takeshi Chikaraishi
Popular Articles
Popular articles from the community
RDTH architekti Rips Out Nearly Every Wall in a Prague Apartment and Replaces Them with Furniture
A 101-square-meter post-war flat in Prague trades rigid partitions for a single rotated furniture block, curtains, and glass concrete.
YOAP Architects Round a Corner in Yeongcheon with a Cylindrical Community Hub
A 197-square-meter brick and ribbed-clad tower turns a forgotten alley corner in South Korea into a public garden with a low threshold.
BAST Slots a Four-Story Glass House into a Narrow Gap Between Toulouse Townhouses
In the dense Bonnefoy district, a stepped infill building merges home and office while preserving a majestic hackberry tree.
20 Most Popular Office Building Projects of 2025
From biophilic workspaces in India to net-positive energy offices in New Delhi, 20 office building projects that defined architecture in 2025.
Similar Reads
You might also enjoy these articles
Olio Towers: A Mid-Rise for Performers That Fuses Housing, Rehearsal, and Stage
Located blocks from Houston's Theater District, this modular tower stacks living units around a central performance atrium.
Oasis: Modular Green Housing Carved into Dhaka's Urban Fabric
A shortlisted Plugin Housing entry reclaims unauthorized settlements in Dhaka with stepped concrete volumes, green roofs, and ventilation-driven design.
Black Hole: A Floating Megastructure for the Post-Physical Era
Emiliano Mazzarotto envisions a spherical, self-scaling arena where e-sports, digital hotels, and holographic stadiums replace traditional public space.
Compact & Sustainable Living in Piraeus: A Four-Level Family Home Built Around Light and Air
A narrow townhouse in one of Greece's densest port cities uses a central atrium and passive strategies to house three generations under one roof.
Explore Architecture Competitions
Discover active competitions in this discipline
The International Standard for Design Portfolios
The Global Benchmark for Architecture Dissertation Awards
The Global Benchmark for Graduation Excellence
Challenge to reimagine the Iron Throne
Comments (0)
Please login or sign up to add comments
No comments yet. Be the first to comment!