GLASS STAR Eyewear: A Minimalist Retail Store Design That Blends Art and Functionality
GLASS STAR Eyewear redefines minimalist retail store design with a monochromatic palette, geometric forms, and an immersive shopping experience.
A Contemporary Approach to Eyewear Retail
Located in Seongjeong-dong, Cheonan, South Korea, GLASS STAR Eyewear has long been a trusted destination for customers seeking a diverse range of eyewear. The recent renovation by RVMN Architects redefines the store’s identity, transforming it into a sophisticated and immersive retail experience. Designed with a strong emphasis on minimalist retail store design, the project integrates clean lines, geometric forms, and a monochromatic palette to create a seamless and engaging shopping environment.




The Concept of Spectacle Scenery
Eyeglasses are more than just functional accessories—they shape perspectives and enhance vision. Inspired by this idea, the architects conceptualized "Spectacle Scenery," a design approach that turns the store into an exhibition-like space where eyewear is displayed as curated art pieces. This transformation elevates the act of browsing glasses into an interactive visual experience, creating an atmosphere that goes beyond conventional retail.




A Dual-Toned Spatial Organization
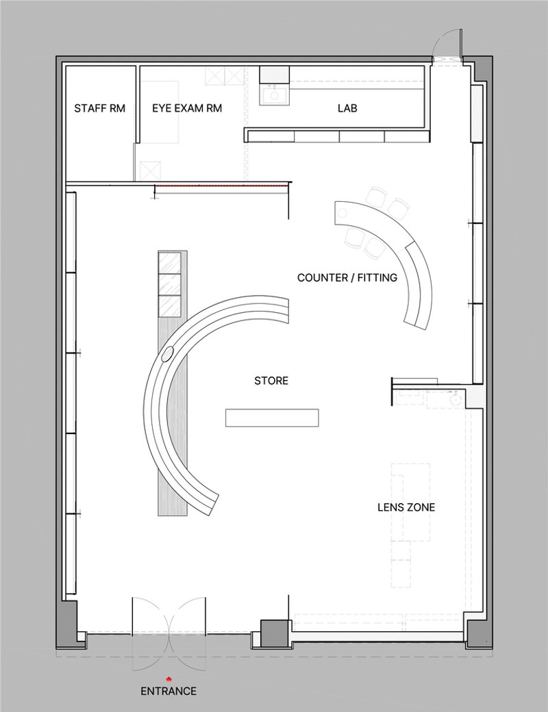
The 160-square-meter store was redesigned while maintaining the existing lens zone. To ensure a smooth transition between the eyewear and lens sales areas, the architects implemented a contrasting black-and-white palette. This monochromatic scheme not only enhances spatial clarity but also allows customers to intuitively navigate the store, distinguishing between different retail functions effortlessly.




Minimalist Display and Structural Elements
The layout prioritizes clarity and fluidity, ensuring that customers can explore products with ease. At the center of the space, two semi-circular island displays mirror the structural curves of eyeglasses, reinforcing the brand's identity. Overhead, circular Barrisol lighting enhances focus while adding depth and character to the interior.


Walls are structured to reflect the assembly process of eyewear, segmenting the space into well-defined zones for various brands. The combination of simple geometric forms and strategic lighting introduces a dynamic interplay of perspectives, making the experience of moving through the store feel like a curated journey through a contemporary art gallery.



An Inviting and Transparent Facade
In a bustling urban environment filled with colorful signage and visual noise, GLASS STAR stands out with its clean, open facade. Designed to maximize visibility, the storefront provides a clear view into the interior, naturally drawing in passersby. This design choice transforms the store’s architectural transparency into a branding element, reinforcing its identity as a modern and welcoming retail space.


Material Palette and Sensory Experience
While the store embraces a minimalist aesthetic, material selection plays a crucial role in introducing warmth and balance. The use of wood HPL, stone flooring, and acrylic seating adds a tactile dimension, contrasting with the sleek monochromatic surfaces. These elements create a comfortable, inviting atmosphere, encouraging customers to explore the store at their own pace—much like an art gallery visitor appreciating different exhibits.



Strategically placed acrylic benches along the island displays provide resting spots, subtly reinforcing the leisurely and immersive nature of the shopping experience. Every design detail works together to strengthen the brand’s identity, making each visit to GLASS STAR both memorable and engaging.



Redefining Minimalist Retail Store Design
Through this renovation, GLASS STAR Eyewear has elevated its retail identity, seamlessly blending functionality with artistic expression. By adopting a minimalist retail store design, the architects have crafted a space that not only enhances product presentation but also transforms the act of shopping into an aesthetic and immersive journey.


This project serves as a benchmark for contemporary retail interiors, demonstrating how geometric simplicity, curated lighting, and intuitive spatial organization can redefine customer experiences in a modern commercial setting.


All Photographs are works of Yongjoon Choi
Popular Articles
Popular articles from the community
1-1 Architects Builds a Nagoya House and Office from Decades of Stockpiled Timber
A 69-square-meter tower in dense residential Nagoya transforms surplus lumber into a home and workplace for a construction company.
20 Most Popular Furniture Design Projects of 2025
Modular street systems, parametric benches, and insect hotels: the furniture design projects that captivated architects on uni.xyz in 2025.
Biophilic Architecture and Regenerative Stadium Design: Biophilia Lagos by Rachel George
A regenerative stadium in Lagos transforms landfill into a living ecosystem through biophilic architecture, waste reuse, and environmental healing.
BICA Arquitectos Buries a Coastal Home in a Man-Made Dune on Portugal's Tróia Peninsula
A 300-square-meter house of timber, sand mortar, and travertine dissolves into the dune landscape it helped regenerate on the Alentejo coast.
Similar Reads
You might also enjoy these articles
Bamboo Housing Challenge 2026: Design Affordable, Sustainable Homes Using Bamboo
An international design competition by Bamboo U and IBUKU inviting architects and designers to reimagine affordable housing using bamboo — with the winning design built full-scale in Bali.
Computational Design & Education: Beegraphy Design Awards Introduces 7th Category (Featuring Jiyun's Innovative Approach)
Dive into Beegraphy’s 7th Design Awards category, where computational design meets education to create immersive, interactive learning tools, inspired by Jiyun’s work.
From Parametric Lighting to Urban Furniture: Join the 2nd Workshop in Beegraphy’s Computational Design Series
Dive into Cutting-Edge Design Techniques and Practical Applications with Industry Experts
Introducing Sphere by UNI: Pioneering a New Era in AEC Industry
Unlocking Global Potential with BIM and Agile Management
Explore Architecture Competitions
Discover active competitions in this discipline
The International Standard for Design Portfolios
The Global Benchmark for Architecture Dissertation Awards
The Global Benchmark for Graduation Excellence
Challenge to reimagine the Iron Throne
Comments (0)
Please login or sign up to add comments
No comments yet. Be the first to comment!