H ARQUITECTES Redefines Contemporary Living with the Innovative Design of HOUSE 2023
What Makes HOUSE 2023 by H ARQUITECTES a Game-Changer in Modern Architecture?

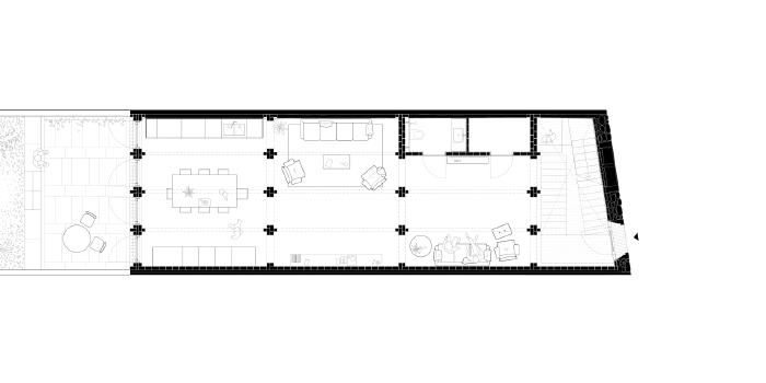
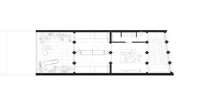
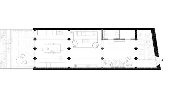
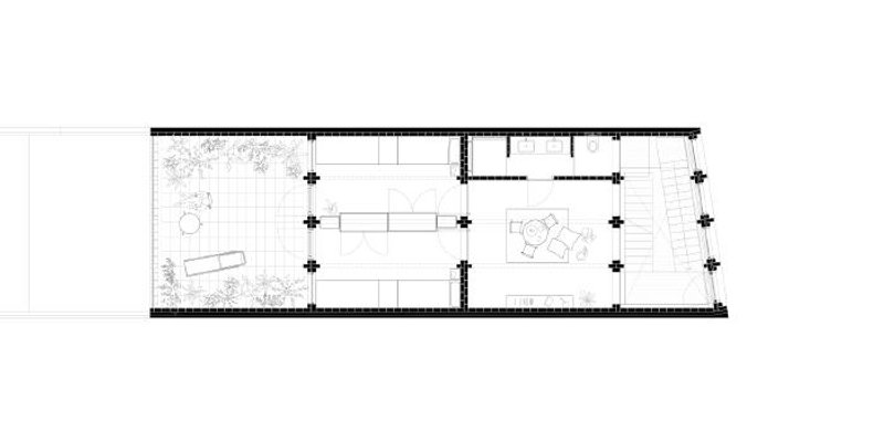
In the densely populated Sant Gervasi neighbourhood of Barcelona, a stunning single-family house designed by H ARQUITECTES has taken the architecture world by storm. The design is characterized by two fundamental decisions that shape its unique character. The first decision is to promote privacy by assigning a user profile to each of the three levels, while the second is to relate the house to the exterior through the garden and placing the staircase space on the street side.
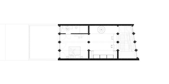
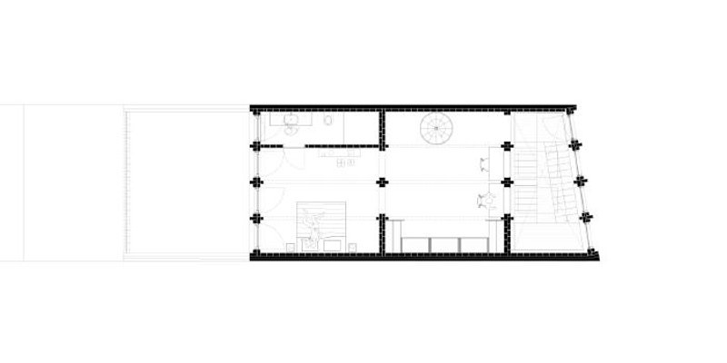
This design approach has allowed for the floors to be practically diaphanous, while the space for the stairs functions as a patio, promoting natural ventilation and avoiding any noise or disturbances from the street. The ground floor of the house accommodates the common and social uses of the family in a continuous space, taking advantage of an original construction that existed on the plot. The first floor is dedicated to the children's room, play, and study, while the upper floor serves as a space for the rest and work of the parents.
To adjust the various uses without losing the clarity of the space, the conventional bearing walls parallel to the façade dissolve into a dense grid of cross-shaped brick pillars. These pillars define the primary attributes of the space and order the uses of the floor and even the façades. The horizontal slabs transmit forces to the pillars through equally slender ribs, adding to the striking visual appeal of the house.
What makes this single-family house truly unique is its ability to offer privacy while maintaining a deep connection to the surrounding environment. The stunning garden space, combined with the diaphanous interiors, provides a serene atmosphere that is a testament to the thoughtful design of H ARQUITECTES. The use of brick pillars and slender ribs adds an element of elegance and sophistication to the house, making it a true masterpiece of modern architecture.


















Architects: H Arquitectes
Area: 246 m²
Year: 2022
Photographs: Adrià Goula
Lead Architects: David Lorente, Josep Ricart, Xavier Ros, Roger Tudó
Collaborators: Sara Ferran, Meri Mensa, Blai Cabrero, Maria Azkarate
Structural Studies: DSM arquitectura
Structures Calculist: Carles Bou
Landscape: Carme Ferrer
Construction: ARTÍFEX
City: Barcelona
Country: Spain
Popular Articles
Popular articles from the community
The Ken Roberts Memorial Delineation Competition (Krob)
As the most senior architectural drawing competition currently in operation anywhere in the world, it draws hundreds of entries each year, awarding the very best submissions in a series of medium-based categories.
Inverted Architecture Installation by Studio Link-Arc: Exploring the Intersection of Architecture and Living Organisms
Inverted Architecture Installation by Studio Link-Arc blends mycelium, sustainability, inverted design, ecological cycles, and urban adaptive architecture in Shenzhen.
Treehouse Apartment: A Warm Timber Interior Blending Craft, Play, and Contemporary Living
Warm timber apartment with integrated treehouse, combining natural materials, craftsmanship, and playful design to create a flexible, family-oriented living environment.
Solar Steam: A Climate-Responsive Architecture That Redefines the Monument
A climate-responsive memorial architecture that transforms heat, decay, and time into a living system reflecting humanity’s ecological impact.
Similar Reads
You might also enjoy these articles
Zhuxi Wonderland: Reimagining Traditional Chinese Gardens by Doarchi Architects
Zhuxi Wonderland by Doarchi Architects reinterprets traditional Yangzhou gardens, integrating courtyards, pavilions, and tea houses in modern cultural design.
Doble Soga House: A Contemporary Brick Residence Rooted in Landscape in Quito, Ecuador
Brick house in Quito integrating nature, flexible living spaces, exposed materials, and rooftop terrace, creating warm contemporary architecture for modern family life.
Al Gharra Mosque in Medina Redefining Contemporary Islamic Architecture
Minimalist Medina mosque using concrete, light, and landscape to reinterpret Islamic worship spaces through symbolic spiritual transitions and contemporary architecture.
Viczonecode Villa by DDconcept – Tropical Family Living in Ho Chi Minh City
Tropical family villa in Ho Chi Minh City featuring courtyards, skylights, natural ventilation, elevated flooring, and seamless indoor–outdoor living surrounded by greenery.
Explore Architecture Competitions
Discover active competitions in this discipline
The International Standard for Design Portfolios
The Global Benchmark for Architecture Dissertation Awards
The Global Benchmark for Graduation Excellence
Challenge to reimagine the Iron Throne
Comments (0)
Please login or sign up to add comments
No comments yet. Be the first to comment!