Habitat Sélénite: A Forest Refuge of Balance and Well-Being
Habitat Sélénite blends forest refuge architecture with accessibility, wellness, and sustainability, offering a harmonious and inclusive retreat.
Redefining Forest Retreats with Innovative Architecture
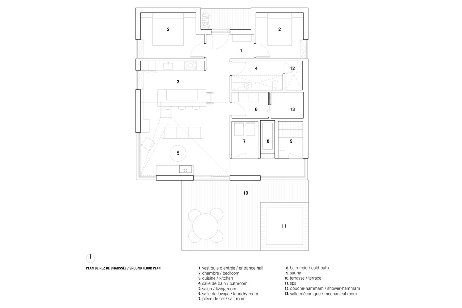
Nestled in the serene Eastern Townships of Quebec, Habitat Sélénite by NatureHumaine redefines the concept of a forest refuge. Completed in 2024, this 1,296 ft² lodge harmonizes ecological architecture, universal accessibility, and wellness. The clients, a visionary self-builder couple, sought to create a sanctuary that combines the restorative qualities of nature with a unique resort experience.





Architectural Vision: A Monochrome Cube of Harmony
Inspired by selenite, a crystalline mineral associated with calmness, the design embodies balance and serenity. The lodge's formal appearance as a monochrome white cube reflects the symbolic purity of selenite. Measuring 36 feet by 36 feet, the square plan maximizes spatial efficiency while reinforcing the themes of harmony and symmetry.


Twin sloping roofs, resembling inverted crystals, emerge from the structure, with square skylights at each peak. These skylights bathe the living room and bathroom in natural light while accentuating the architectural balance. The structure appears as though it has risen naturally from the surrounding bedrock, blending seamlessly into its forested context.


A Commitment to Universal Accessibility
A standout feature of Habitat Sélénite is its universal accessibility. The clients envisioned a space that caters to individuals with reduced mobility without compromising design quality. Every clearance, piece of equipment, and furnishing has been meticulously planned to ensure safety and accessibility, making it a haven for all visitors.




Interior Design: Wellness at Its Core
The interiors of Habitat Sélénite are thoughtfully designed to enhance relaxation and well-being. High ceilings in the skylit living room and bathroom create an airy ambiance, while the attic space efficiently houses mechanical systems. The lodge offers a comprehensive hydrotherapeutic circuit, including a steam bath, sauna, spa, cold bath, and salt room.


The home automation system adds a modern touch, allowing visitors to control lighting synchronized to circadian rhythms and launch guided meditation sessions in any room. The interiors prioritize healthy living through VOC-free materials and ergonomic designs. Wood cabinetry, crafted by À Hauteur d'Homme, ensures adaptability, comfort, and inclusiveness.


Sustainable Materials and Eco-Friendly Design
Habitat Sélénite exemplifies sustainable construction through its use of local, healthy materials. Hemp wool insulation ensures energy efficiency, while the Faraday cage enveloping the house blocks electromagnetic waves, catering to individuals with electro-sensitivity.




The exterior features wooden planks, a metal roof, and a large window pane, creating a subtle and cohesive monochromatic look. All mechanical elements are painted white, reinforcing the selenite-inspired design language.



A Forest Retreat Like No Other
Located amidst the tranquil forests of Eastman, Habitat Sélénite offers a harmonious blend of nature and architecture. Its compact, symmetrical design integrates seamlessly with the environment while providing a luxurious and accessible retreat for relaxation and rejuvenation.





Pioneering the Future of Forest Refuge Architecture
Habitat Sélénite sets a new benchmark for forest retreats by combining innovative design, sustainability, and inclusivity. This project by NatureHumaine serves as an inspiring model for architectural balance, offering a sanctuary where well-being and ecological harmony coexist.





All Photographs are work of Raphaël Thibodeau
Popular Articles
Popular articles from the community
Solar Steam: A Climate-Responsive Architecture That Redefines the Monument
A climate-responsive memorial architecture that transforms heat, decay, and time into a living system reflecting humanity’s ecological impact.
The Ken Roberts Memorial Delineation Competition (Krob)
As the most senior architectural drawing competition currently in operation anywhere in the world, it draws hundreds of entries each year, awarding the very best submissions in a series of medium-based categories.
Fifth NRE Jazz Club – De Bever Architecten: Eindhoven’s Revitalized Cultural Hub
Historic gas factory transformed into Fifth NRE Jazz Club blending modern sustainability, jazz culture, dining, and heritage architecture seamlessly.
Similar Reads
You might also enjoy these articles
The Ken Roberts Memorial Delineation Competition (Krob)
As the most senior architectural drawing competition currently in operation anywhere in the world, it draws hundreds of entries each year, awarding the very best submissions in a series of medium-based categories.
Waterfront Redevelopment and Urban Revitalization in Mumbai: Forging a New Dawn for Darukhana
A transformative waterfront redevelopment project reimagining Darukhana’s shipbreaking heritage into an inclusive urban future.
OUT-OF-MAP: A Call for Postcards on Feminist Narratives of Public Space
Rhizoma Design and Research Lab invites artists, designers, architects, researchers, and students to reflect on how feminist perspectives can reshape public space. Selected works will be exhibited in Barcelona, October 2026. Submissions open until 15 April 2026.
Documentation Work on Buddhist Wooden Temple
Architectural syncretism and cultural hybridity: A comparative study of the Buddhist temples in Chattogram Hill tracks
Explore Architecture Competitions
Discover active competitions in this discipline
The International Standard for Design Portfolios
The Global Benchmark for Architecture Dissertation Awards
The Global Benchmark for Graduation Excellence
Challenge to reimagine the Iron Throne
Comments (0)
Please login or sign up to add comments
No comments yet. Be the first to comment!