Hackett Gardens House: A Masterpiece of Sustainable Residential Architecture in Australia
An in-depth look at Hackett Gardens House, a standout example of sustainable residential architecture in Australia by Ben Walker Architects.
The Hackett Gardens House by Ben Walker Architects is a shining example of sustainable residential architecture in Australia. Located in the northern Canberra suburb of Turner, near the bustling city centre and university precinct, this newly designed single-storey home covers 393 m² and embraces sustainability at every level. Its thoughtful “U”-shaped plan is wrapped around a generous central courtyard, crafting private yet open living environments that perfectly balance family life with environmental responsibility.




Thoughtful Spatial Planning Centered on Courtyards
The home’s plan is divided into distinct zones: the parents’ area to the north, a living spine along the west, and a children’s area to the south. These are unified around the central courtyard, which provides light, openness, and privacy away from the public realm. Additionally, a north-facing courtyard equipped with operable pivoting privacy screens creates flexible connectivity between the house and the adjacent street park, while a third private courtyard is reserved for the main bedroom behind the garage pod. A separate studio forms the southeastern edge of the U-shaped layout, enhancing the multifunctionality of the house.




A Minimalist Material Palette Rooted in Local Connection
The interior finishes embrace simplicity and authenticity: cream-colored brick walls, white plastered ceilings, honed concrete floors, birch plywood joinery, and natural brass fixtures. This restrained palette allows the client’s personal items, including furniture and art, to shine within the uncluttered space. Externally, the house is characterized by brick walls and recycled timber-clad parapet beams, emphasizing clarity and coherence in the geometry.


An especially meaningful detail lies in the choice of materials — the dry pressed bricks were sourced from a factory in northern New South Wales, approximately 50 kilometers from the client’s family farm. This material selection bridges the house’s construction to the client’s heritage, embedding a strong sense of place and memory within the architecture.


Passive Solar Design and Energy Efficiency
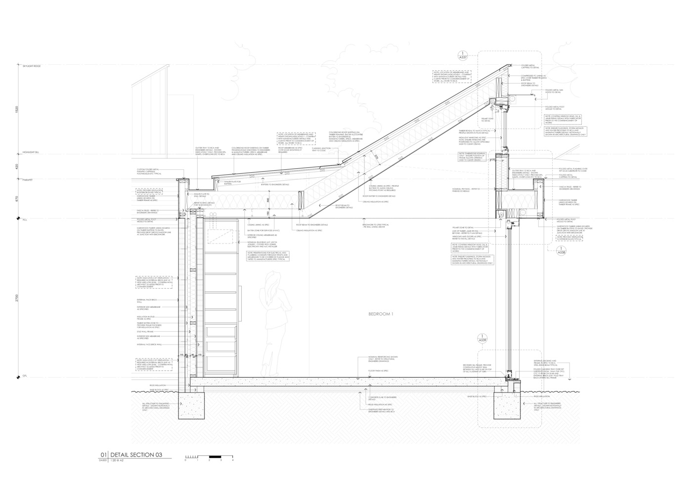
Sustainability is deeply embedded in both design and performance. The building’s layout incorporates small solar courts that bring light into transition spaces and help demarcate the three primary wings. A series of saw-tooth roof forms with highlight windows further optimizes northern sunlight penetration, enhancing passive solar gain and sky views while creating spacious, light-filled interiors.




The house’s construction features heavily insulated triple-layered walls, ceilings, and burnished concrete slabs, paired with both internal and external membranes that ensure superior air tightness. Composite frame windows with high-performance triple glazing further boost the building’s energy efficiency. A photovoltaic (PV) system supplies a significant portion of the home’s energy, while a centralized heat recovery ventilation (HRV) system regulates internal temperatures, purifies air, and controls humidity.



Architecture That Embodies Sustainability and Family
Hackett Gardens House is more than just an energy-efficient dwelling — it’s a thoughtful expression of sustainable residential architecture in Australia, combining material authenticity, local connection, and technical innovation. Through careful spatial organization, passive design strategies, and low-impact material choices, Ben Walker Architects have crafted a home that supports a sustainable lifestyle while providing a rich, beautiful environment for family life.





All Photographs are works of Ben Guthrie
Popular Articles
Popular articles from the community
boq architekti Fits a Gabled Family House onto a Tiny Moravian Hillside Plot with No Room for a Garden
A 115 square meter home in South Moravia trades a garden for a rooftop terrace and a fully glazed facade facing the village below.
BICA Arquitectos Buries a Coastal Home in a Man-Made Dune on Portugal's Tróia Peninsula
A 300-square-meter house of timber, sand mortar, and travertine dissolves into the dune landscape it helped regenerate on the Alentejo coast.
1-1 Architects Builds a Nagoya House and Office from Decades of Stockpiled Timber
A 69-square-meter tower in dense residential Nagoya transforms surplus lumber into a home and workplace for a construction company.
20 Most Popular Office Building Projects of 2025
From biophilic workspaces in India to net-positive energy offices in New Delhi, 20 office building projects that defined architecture in 2025.
Similar Reads
You might also enjoy these articles
BICA Arquitectos Buries a Coastal Home in a Man-Made Dune on Portugal's Tróia Peninsula
A 300-square-meter house of timber, sand mortar, and travertine dissolves into the dune landscape it helped regenerate on the Alentejo coast.
The Ranch Mine Runs a White Pavilion Parallel to a 1970s House in Paradise Valley
A hemlock-lined addition reframes desert living by pulling light, views, and a courtyard pool from an outdated Arizona home.
Architects Group RAUM Stacks Offset White Volumes into a Compact Office Tower in Busan
A 524-square-meter building on a tight corner lot in Haeundae plays with sunlight rights and shifting floor plates to create generous terraces.
Studio Gram Unfurls a Concrete Curve Through an Adelaide Queen Anne Villa
In Rose Park, a billowing concrete threshold stitches a century-old house to a sun-chasing pavilion organized around an existing pool.
Explore Architecture Competitions
Discover active competitions in this discipline
The International Standard for Design Portfolios
The Global Benchmark for Architecture Dissertation Awards
The Global Benchmark for Graduation Excellence
Challenge to reimagine the Iron Throne
Comments (0)
Please login or sign up to add comments
No comments yet. Be the first to comment!