Haikou GAOXINGLI Insun Cinema: Redefining Innovative Cinema Design
Discover Haikou GAOXINGLI Insun Cinema’s wave-inspired architecture, blending sensory design and oceanic themes into an immersive cinematic experience.
Introduction to Haikou GAOXINGLI Insun Cinema
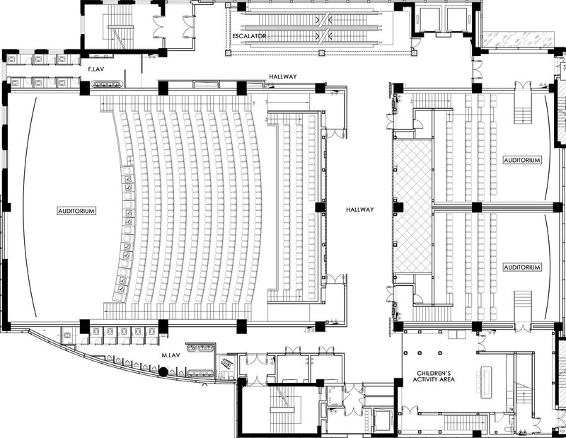
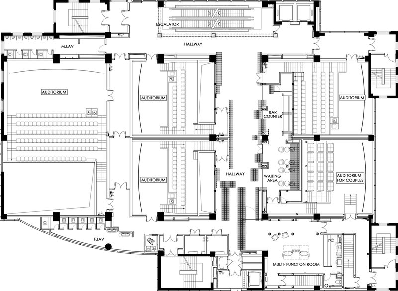
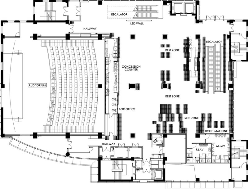
Located in Haikou, China, the GAOXINGLI Insun Cinema by One Plus Partnership is a groundbreaking example of innovative cinema design. Completed in 2024, this 6,006 m² space integrates the natural essence of Haikou’s coastal environment with a unique architectural narrative. Lead architects Ajax Law and Virginia Lung crafted a cinema experience that transcends visual aesthetics, blending functionality and emotional engagement.

A Design Inspired by Haikou’s Oceanic Surroundings
Situated on Hainan Island, surrounded by the South China Sea, Haikou served as the primary inspiration for the cinema’s design. Rejecting traditional blue tones associated with the ocean, the architects chose bricks—a material symbolizing sand—to evoke the timeless essence of the sea.


Wave-Like Brick Motifs
- Dynamic Patterns: The bricks are arranged to mimic ocean waves, creating a layered, flowing texture visible from any angle.
- Rough Yet Soft: While the surface of the bricks feels textured, the overall atmosphere exudes softness and warmth.
- Functional Aesthetic: Curved brick formations also serve as countertops, booths, and seating areas, seamlessly integrating form and function.


The Lobby: A Sunlit Ocean Narrative
Unlike typical cinemas, the GAOXINGLI Insun Cinema allows natural sunlight to filter in, enhancing the warmth and vibrancy of the space.
Key Features
- Undulating Floors: Gray-painted waves on the floor guide visitors while preventing slips.
- Curved Furniture: Tables and chairs feature bell-shaped curves, echoing the flowing movement of waves.
- Hidden Details: Air vents and lighting fixtures are subtly integrated, maintaining the visual coherence of the design.


Auditorium Spaces: A Play of Color and Texture
The cinema’s auditoriums are a sensory feast, where colors, textures, and lighting converge to create immersive experiences.

First Auditorium
- Dimensional Fabrics: Walls feature layered fabrics resembling fresh wood grain, blending warmth and texture.
- Vibrant Hues: Non-traditional colors, inspired by florists’ palettes, create a dynamic and uplifting atmosphere.
- Seating Arrangement: Patterned chairs evoke the feel of a garden, with scents of lavender and peonies subtly integrated.

Second Auditorium
- Nature-Inspired Panels: Colors reminiscent of tiger lilies and oceanic waves define the space.
- Silhouetted Curves: High curved edges mimic the South China Sea’s embrace around Hainan Island.
- Functional Elegance: Structural design prioritizes safety while maintaining an aesthetic connection to the sea.

Materiality and Lighting Design
The cinema’s material palette and lighting strategy underscore its innovative approach to design.
- Materials: Brick, velvety fabrics, and topaz-painted surfaces create a tactile and visual richness.
- Lighting: Subtle, hidden lighting fixtures enhance the wave-like motifs and guide visitors without overwhelming the ambiance.

Sensory Journey: Beyond Aesthetics
The GAOXINGLI Insun Cinema is designed to engage all senses. Visitors can see, feel, and even imagine the ocean’s energy through the thoughtful interplay of architecture and sensory cues.
- Textural Diversity: Rough bricks juxtaposed with soft fabrics create a balance between raw and refined.
- Playful Details: Floating light rings and copper chairs evoke a whimsical, yet grounded, atmosphere.

Haikou GAOXINGLI Insun Cinema stands as a masterpiece of innovative cinema design, merging Haikou’s natural environment with cutting-edge architecture. It’s not just a space to watch films but an immersive journey where ocean-inspired aesthetics and functionality converge.

All photographs are work of Jonathan Leijonhufvud
Popular Articles
Popular articles from the community
Split House: A Compact Urban Home Blending Privacy, Light, and Flexible Living in Japan
Compact Japanese home featuring DOMA space, flexible café potential, passive lighting, privacy zoning, and sustainable urban living design.
Inverted Architecture Installation by Studio Link-Arc: Exploring the Intersection of Architecture and Living Organisms
Inverted Architecture Installation by Studio Link-Arc blends mycelium, sustainability, inverted design, ecological cycles, and urban adaptive architecture in Shenzhen.
Solar Steam: A Climate-Responsive Architecture That Redefines the Monument
A climate-responsive memorial architecture that transforms heat, decay, and time into a living system reflecting humanity’s ecological impact.
The Ken Roberts Memorial Delineation Competition (Krob)
As the most senior architectural drawing competition currently in operation anywhere in the world, it draws hundreds of entries each year, awarding the very best submissions in a series of medium-based categories.
Similar Reads
You might also enjoy these articles
The Ken Roberts Memorial Delineation Competition (Krob)
As the most senior architectural drawing competition currently in operation anywhere in the world, it draws hundreds of entries each year, awarding the very best submissions in a series of medium-based categories.
Waterfront Redevelopment and Urban Revitalization in Mumbai: Forging a New Dawn for Darukhana
A transformative waterfront redevelopment project reimagining Darukhana’s shipbreaking heritage into an inclusive urban future.
OUT-OF-MAP: A Call for Postcards on Feminist Narratives of Public Space
Rhizoma Design and Research Lab invites artists, designers, architects, researchers, and students to reflect on how feminist perspectives can reshape public space. Selected works will be exhibited in Barcelona, October 2026. Submissions open until 15 April 2026.
Documentation Work on Buddhist Wooden Temple
Architectural syncretism and cultural hybridity: A comparative study of the Buddhist temples in Chattogram Hill tracks
Explore Architecture Competitions
Discover active competitions in this discipline
The International Standard for Design Portfolios
The Global Benchmark for Architecture Dissertation Awards
The Global Benchmark for Graduation Excellence
Challenge to reimagine the Iron Throne
Comments (0)
Please login or sign up to add comments
No comments yet. Be the first to comment!