Heritage Adaptive Reuse Architecture: Boksto Skveras Mixed-Use Center by Studio Seilern Architects
Boksto Skveras by Studio Seilern Architects exemplifies heritage adaptive reuse architecture, blending historic conservation with modern functionality in Vilnius.
Heritage adaptive reuse architecture has become a vital approach in contemporary design, ensuring historic structures are preserved while integrating modern functionality. Boksto Skveras Mixed-Use Center, designed by Studio Seilern Architects, stands as a remarkable example of this practice. Located in the heart of Vilnius, Lithuania, this UNESCO World Heritage Site blends restored Baroque and Gothic structures with contemporary insertions, creating a dynamic space for cultural, commercial, and residential use.




A Historical Site Transformed for the Future
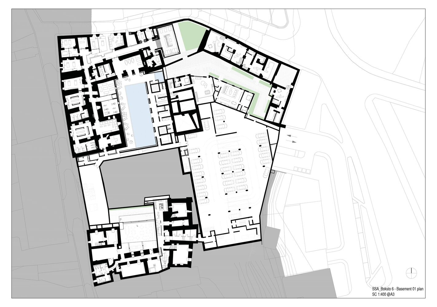
Boksto Skveras is an architectural ensemble that has evolved over 500 years, consisting of six buildings, courtyards, and gardens. Situated along one of Vilnius’ oldest streets, its historical significance required a sensitive design approach that would honor the past while revitalizing the space for modern use.



The project integrates a performing arts venue, a jazz bar and restaurant, a spa, residential units, and office spaces, creating a multifunctional environment within a historically protected urban fabric. Rather than opting for demolition, Studio Seilern Architects, led by Christina Seilern, embraced a meticulous conservation strategy to restore the original structures while introducing contemporary elements that respect the existing heritage.



Balancing Conservation and Modernity
Preserving the authenticity of Boksto Skveras while incorporating new functions posed a significant challenge. The design team collaborated with local conservation architects to retain as much of the original structure as possible. The intervention involved a careful restoration of the Baroque and Gothic buildings, ensuring that their original architectural language remained intact.



Any newly added structures were conceived as modern insertions that complemented the historic fabric rather than imitating it. Inspired by the Alhambra’s integration of architecture and landscape, the design seamlessly merges old and new. Highly polished stainless steel was used to clad contemporary additions, reflecting the surrounding historic facades and creating a subtle dialogue between past and present.



Innovative Design Strategies for a Protected Site
Given the site’s UNESCO heritage status, the project had to navigate stringent planning restrictions. All buildings in Vilnius’ Old Town were required to have ceramic roof tiles and Velux windows. However, the team devised an alternative approach, using vertical steel slats to preserve the integrity of the uninterrupted pitched roof while incorporating hidden glazing beneath. This allowed natural light to enter the spaces below without compromising the historic skyline.



One of the most striking aspects of the project is the adaptive reuse of the Gothic vaulted cellars. These underground spaces now house a sunken restaurant and a wellness spa with a 25-meter swimming pool. To preserve the integrity of the historic brickwork, no modifications were made to the structure. Instead, the exposed brick walls become an integral part of the visitor experience, enhancing the ambiance of the subterranean spaces.



A New Identity Rooted in History
The repurposing of Boksto Skveras extends beyond conservation; it redefines the relationship between heritage and contemporary living. The ancient clock tower has been transformed into office spaces, with glass foundations subtly integrating the old with the new. The design allows visitors and occupants to experience history in a tactile way, reinforcing the narrative of continuity and adaptation.


Public courtyards and gardens further enhance the sense of place, providing spaces for interaction, reflection, and cultural engagement. By maintaining the original spatial organization while introducing new functions, the project strengthens its identity as a landmark that bridges the past and the future.

Setting a Precedent for Heritage Adaptive Reuse Architecture
Boksto Skveras exemplifies how heritage buildings can be thoughtfully adapted to meet contemporary needs without sacrificing their historical significance. The project serves as a model for cities worldwide, demonstrating that adaptive reuse can be both a respectful nod to history and an opportunity for architectural innovation.




As urban centers continue to evolve, the principles of heritage adaptive reuse architecture will play a crucial role in shaping sustainable and culturally rich environments. By merging restoration with modern design strategies, projects like Boksto Skveras ensure that history remains a living, breathing part of the cityscape.

All Photographs are works of Norbert Tukaj, Roland Halbe
Popular Articles
Popular articles from the community
Split House: A Compact Urban Home Blending Privacy, Light, and Flexible Living in Japan
Compact Japanese home featuring DOMA space, flexible café potential, passive lighting, privacy zoning, and sustainable urban living design.
Magic Box Office Barcelona Innovative Sustainable Workplace Design
Innovative sustainable office design featuring triangular form, ceramic façade, flexible interiors, natural light optimization, and creative workspace for modern work culture.
Rede Arquitetos Builds an Open-Air School in Fortaleza That Doubles as a Neighborhood Living Room
Educar II SESC-CE folds sports, dance, and community gathering into a courtyard campus wrapped in mesh and tropical color.
Alton Cliff House: A Harmonious Retreat by f2a Architecture in Lake Country, Canada
Alton Cliff House blends corten steel, prefabrication, and sustainable design, creating a luxurious, energy-efficient retreat perched on Canadian cliffs.
Similar Reads
You might also enjoy these articles
Filtering Space: A Gradual Spatial Experience
From urban intensity to spatial calm.
The Ken Roberts Memorial Delineation Competition (Krob)
As the most senior architectural drawing competition currently in operation anywhere in the world, it draws hundreds of entries each year, awarding the very best submissions in a series of medium-based categories.
Waterfront Redevelopment and Urban Revitalization in Mumbai: Forging a New Dawn for Darukhana
A transformative waterfront redevelopment project reimagining Darukhana’s shipbreaking heritage into an inclusive urban future.
OUT-OF-MAP: A Call for Postcards on Feminist Narratives of Public Space
Rhizoma Design and Research Lab invites artists, designers, architects, researchers, and students to reflect on how feminist perspectives can reshape public space. Selected works will be exhibited in Barcelona, October 2026. Submissions open until 15 April 2026.
Explore Architecture Competitions
Discover active competitions in this discipline
The International Standard for Design Portfolios
The Global Benchmark for Architecture Dissertation Awards
The Global Benchmark for Graduation Excellence
Challenge to reimagine the Iron Throne
Comments (0)
Please login or sign up to add comments
No comments yet. Be the first to comment!