Heritage Architectural Renovation: A Case Study of Casa Roy by Taillandier Architectes Associés
This article discusses the renovation of Casa Roy, blending modern living with historical preservation in Bagergue, Spain, by Taillandier Architectes Associés.
Heritage architectural renovation combines preserving the past while integrating modern design and functionality. Casa Roy in Bagergue, Spain, serves as an exemplary model of how architects can respect and revive historical buildings in contemporary settings.



The Historical Context of Casa Roy
Preserving Cultural Heritage
Casa Roy, situated in the historic village of Bagergue, near a Romanesque church listed by UNESCO, required thoughtful consideration in its renovation. The project was extensively reviewed by several commissions to ensure that the renovation would respect the architectural heritage and the urban landscape of the village.



Integrating Modern Living
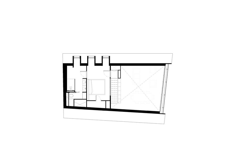
Despite its historical setting, Casa Roy needed to accommodate contemporary living requirements. The renovation introduced two separate living units within the existing structure, cleverly adapting to modern family needs while respecting the traditional Val d'Aran house style.



Architectural Strategies in Renovating Casa Roy
Reversing the Layout for Natural Light
The architects at Taillandier Architectes Associés ingeniously reversed the day and night areas of the original layout. By moving the living room and kitchen upstairs, the design maximizes natural light and offers enhanced views over the neighboring garden, demonstrating a key principle in heritage architectural renovation: adapting use without compromising character.




Material Continuity and Local Sourcing
The renovation project made extensive use of local materials to blend the new with the old seamlessly. Local timber, light oak furniture, and blue stone from Val d'Aran quarries were used to maintain the aesthetic continuity and environmental sustainability of the project.



Challenges and Innovations in the Renovation Process
Adapting to Regulatory Constraints
The architects faced strict architectural regulations that prohibited certain modifications, such as adding balconies or terraces. Their solution was a fully retractable bi-fold window system that transforms the living room space into an open terrace, showcasing innovative problem-solving in heritage renovations.


Structural and Environmental Considerations
The introduction of a Bubble-Deck system in the concrete work significantly reduced the building’s weight and carbon footprint. This modern engineering solution respects the site’s topography and the building's historical value while enhancing its functional and environmental performance.



The Future of Heritage Architectural Renovation
Casa Roy represents a profound respect for heritage through architectural renovation. By carefully integrating modern elements with historical accuracy, the project sets a benchmark for future renovations in culturally rich settings.
This case study not only highlights the challenges faced in such projects but also celebrates the innovative solutions that respect and enhance the historical essence of buildings like Casa Roy.


All photographs are work of Roland Halbe
Popular Articles
Popular articles from the community
Inverted Architecture Installation by Studio Link-Arc: Exploring the Intersection of Architecture and Living Organisms
Inverted Architecture Installation by Studio Link-Arc blends mycelium, sustainability, inverted design, ecological cycles, and urban adaptive architecture in Shenzhen.
A Contemporary Take on Iranian Residential Architecture
A modern interior design in Mashhad that reinterprets brick, light, and spatial flow to create a warm, contemporary residential architecture.
The Ken Roberts Memorial Delineation Competition (Krob)
As the most senior architectural drawing competition currently in operation anywhere in the world, it draws hundreds of entries each year, awarding the very best submissions in a series of medium-based categories.
Flamboyant House by Juliana Camargo + Prumo Projetos
Modern Brazilian house integrating existing tree, pool, and volumes with glass, wood, and transitional spaces blending interior, exterior, and landscape seamlessly.
Similar Reads
You might also enjoy these articles
The Ken Roberts Memorial Delineation Competition (Krob)
As the most senior architectural drawing competition currently in operation anywhere in the world, it draws hundreds of entries each year, awarding the very best submissions in a series of medium-based categories.
Waterfront Redevelopment and Urban Revitalization in Mumbai: Forging a New Dawn for Darukhana
A transformative waterfront redevelopment project reimagining Darukhana’s shipbreaking heritage into an inclusive urban future.
OUT-OF-MAP: A Call for Postcards on Feminist Narratives of Public Space
Rhizoma Design and Research Lab invites artists, designers, architects, researchers, and students to reflect on how feminist perspectives can reshape public space. Selected works will be exhibited in Barcelona, October 2026. Submissions open until 15 April 2026.
Documentation Work on Buddhist Wooden Temple
Architectural syncretism and cultural hybridity: A comparative study of the Buddhist temples in Chattogram Hill tracks
Explore Architecture Competitions
Discover active competitions in this discipline
The International Standard for Design Portfolios
The Global Benchmark for Architecture Dissertation Awards
The Global Benchmark for Graduation Excellence
Challenge to reimagine the Iron Throne
Comments (0)
Please login or sign up to add comments
No comments yet. Be the first to comment!