Heritage Home Renovation: Roxborough House by gh3* Blends Tradition with Modernity
Roxborough House by gh3* redefines heritage home renovation, balancing Edwardian charm with modern spatial refinement and minimalist design.
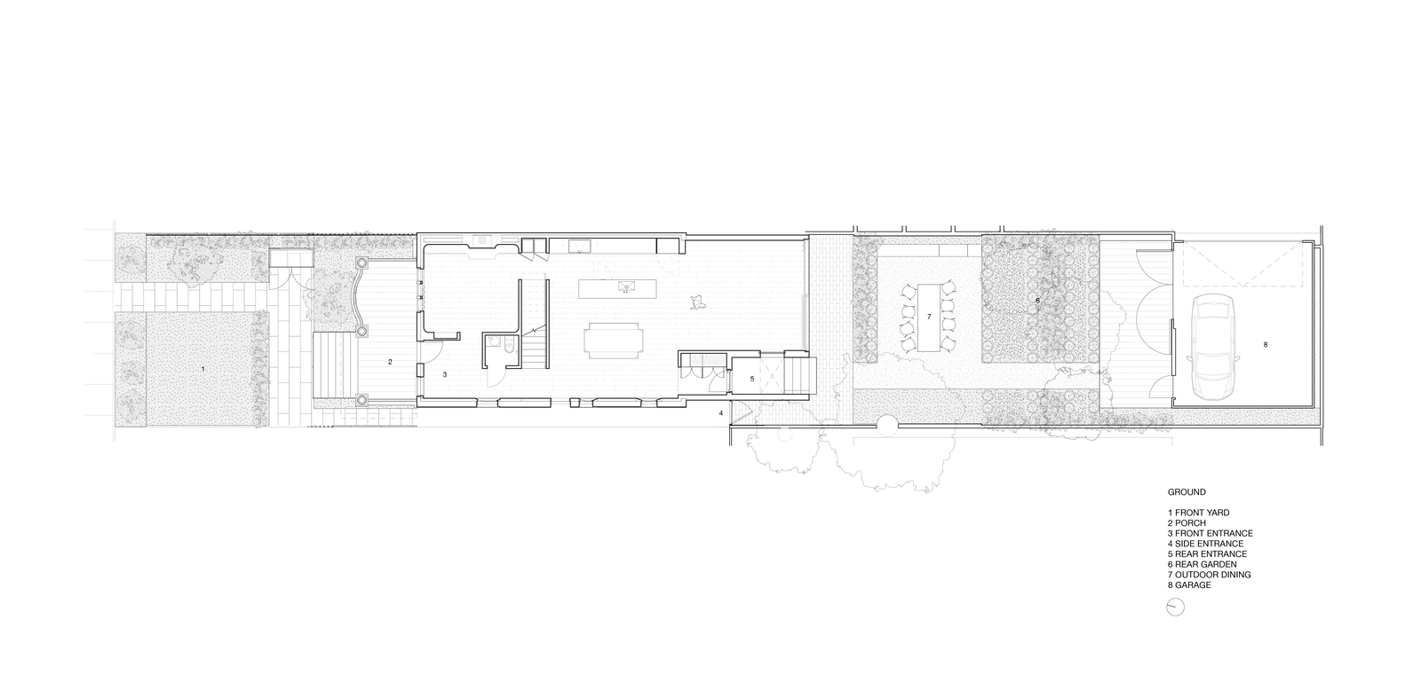
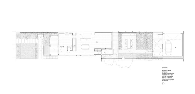
Heritage home renovation presents a unique challenge—balancing historic preservation with contemporary living. Roxborough House, designed by gh3*, is a prime example of this delicate equilibrium. Situated in South Rosedale, a designated heritage conservation district in Toronto, this Edwardian-era home underwent a thoughtful transformation that respects its historical character while embracing modern minimalism. The project carefully navigates stringent preservation regulations while introducing architectural refinements that enhance spatial flow, natural light, and material continuity.



A Sensitive Approach to Heritage Restoration
Originally built in the 1920s, Roxborough House stands as part of Toronto’s historic residential fabric. The renovation required adherence to heritage conservation guidelines while accommodating the owner’s desire for a minimalist aesthetic. Rather than imposing stark contrasts, gh3* sought to integrate new additions seamlessly with the existing structure.


The rear of the home now features a two-story addition and a garage, both clad in hand-molded brick to maintain visual cohesion with the neighborhood’s traditional masonry facades. The two new structures frame a private courtyard garden, creating an intimate outdoor space that enhances the home's connection to nature. In a nod to sustainability, reclaimed joists from the original house were repurposed in the garage, reinforcing a sense of continuity between past and present.


A Thoughtful Reconfiguration of Space
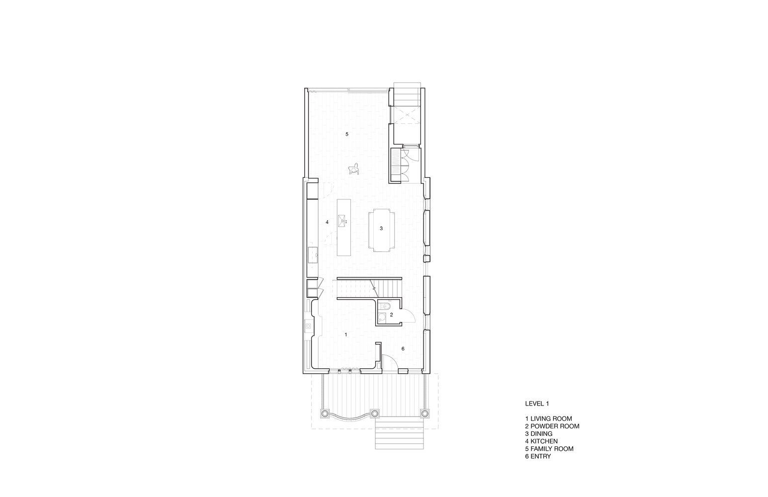
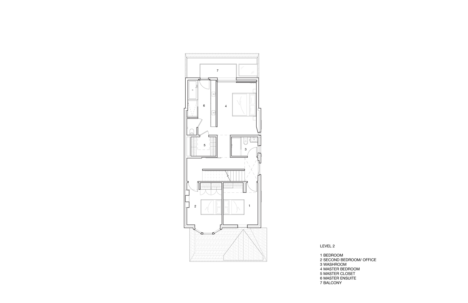
The architectural intervention at Roxborough House was not about expanding the footprint but refining its spatial relationships. The rear addition reimagines key living areas, extending the kitchen and living spaces on the ground floor while reorganizing the principal bedroom suite above. A newly introduced entrance from the courtyard features a vaulted structure, punctuated by a strategically placed skylight that establishes a visual link between the indoors and outdoors.


Spatial flow was enhanced by widening hallways and introducing voids in the central staircase, allowing natural light to filter throughout the home. The existing leaded windows, once confined to the staircase, were repositioned in sculptural niches along the western wall. Their varying heights and angles create a dynamic interplay of light and shadow, evolving throughout the day.


Modern Minimalism Rooted in Tradition
Despite the modern updates, Roxborough House maintains an architectural language deeply rooted in historical context. The minimalist interior is defined by material continuity and essential forms, a hallmark of gh3*’s design philosophy. The soapstone kitchen island, arched ante-room pantry, and deep-vaulted hallway leading to the principal bedroom reflect a disciplined approach to geometry and proportion.

This emphasis on simplicity extends to the detailing, where full-height flush doors and a restrained material palette allow spatial relationships to take precedence. The result is a home that feels both timeless and contemporary—respecting its Edwardian heritage while embracing modern living.

Integrating Architecture with Landscape
Beyond the built form, the project extends to the outdoor environment, creating a harmonious dialogue between the house, garage, and garden. The courtyard, nestled between the two new structures, serves as a natural extension of the home, offering a secluded retreat within the urban setting. The interplay between solid architectural elements and open landscape spaces reinforces a sense of balance, making the outdoor environment an integral part of the living experience.


A Model for Heritage Home Renovation
Roxborough House exemplifies the potential of heritage home renovation to celebrate architectural history while embracing contemporary design. The careful adaptation of historic elements, combined with a minimalist spatial approach, results in a residence that honors the past while accommodating the needs of modern life.



By synthesizing architecture and landscape into a cohesive whole, gh3* has created a home that transcends time, offering both a tribute to Toronto’s architectural heritage and a vision for the future of historic home restoration. This project serves as a benchmark for preserving character while evolving functionality, setting a precedent for sensitive, yet forward-thinking, renovations.


All Photographs are works of Raymond Chow
Popular Articles
Popular articles from the community
Atelier Macri Concept Store Interior Design by CASE-REAL
Atelier Macri store features a "ko" counter, walnut wood details, cork displays, blending retail, gallery, and seamless customer experiences.
Solar Steam: A Climate-Responsive Architecture That Redefines the Monument
A climate-responsive memorial architecture that transforms heat, decay, and time into a living system reflecting humanity’s ecological impact.
Inverted Architecture Installation by Studio Link-Arc: Exploring the Intersection of Architecture and Living Organisms
Inverted Architecture Installation by Studio Link-Arc blends mycelium, sustainability, inverted design, ecological cycles, and urban adaptive architecture in Shenzhen.
Similar Reads
You might also enjoy these articles
The Ken Roberts Memorial Delineation Competition (Krob)
As the most senior architectural drawing competition currently in operation anywhere in the world, it draws hundreds of entries each year, awarding the very best submissions in a series of medium-based categories.
Waterfront Redevelopment and Urban Revitalization in Mumbai: Forging a New Dawn for Darukhana
A transformative waterfront redevelopment project reimagining Darukhana’s shipbreaking heritage into an inclusive urban future.
OUT-OF-MAP: A Call for Postcards on Feminist Narratives of Public Space
Rhizoma Design and Research Lab invites artists, designers, architects, researchers, and students to reflect on how feminist perspectives can reshape public space. Selected works will be exhibited in Barcelona, October 2026. Submissions open until 15 April 2026.
Documentation Work on Buddhist Wooden Temple
Architectural syncretism and cultural hybridity: A comparative study of the Buddhist temples in Chattogram Hill tracks
Explore Architecture Competitions
Discover active competitions in this discipline
The International Standard for Design Portfolios
The Global Benchmark for Architecture Dissertation Awards
The Global Benchmark for Graduation Excellence
Challenge to reimagine the Iron Throne
Comments (0)
Please login or sign up to add comments
No comments yet. Be the first to comment!