Hourglass Building Amsterdam: Iconic Mixed-Use Architecture by Dam & Partners Architecten
The Hourglass Building combines iconic design, functionality, and sustainability, redefining mixed-use architecture in Amsterdam’s Zuidas district.
The Hourglass Building, designed by Dam & Partners Architecten, is a masterpiece of mixed-use architecture located in Amsterdam's Zuidas district. Completed in 2020, this striking high-rise is a symbol of innovation, functionality, and artistic design. Serving as a natural link between the bustling Zuidas area and the emerging Knowledge Quarter, the Hourglass integrates offices, long-stay apartments, retail spaces, and a public restaurant and café into a cohesive urban landmark.


Strategically positioned opposite the new courthouse and near the Vrije Universiteit (VU) and Amsterdam South train station, the building enhances the area's dynamic urban character with its multifunctional program and distinctive hourglass-inspired design.


Architectural Design and Inspiration
The Hourglass Building takes its name from its sculptural profile, reminiscent of geometric forms crafted by Romanian artist Constantin Brâncuși. The design merges form and function, creating an hourglass shape that widens at the top and bottom floors while narrowing in the middle. This innovative geometry optimizes space and connectivity, with wide atria on the upper and lower levels linked seamlessly by the waisted midsection.


The façade showcases meticulous craftsmanship and precision, featuring oblique natural stone planes intersected by glass. This design achieves a timeless aesthetic that balances modernity with elegance. Light-colored sandstone cladding enhances the building's monumentality, while upright window arrangements maximize light reflection. Prefabricated concrete panels, adorned with custom-cut white sandstone, were carefully assembled with minimal joints, giving the façade a seamless and refined appearance.


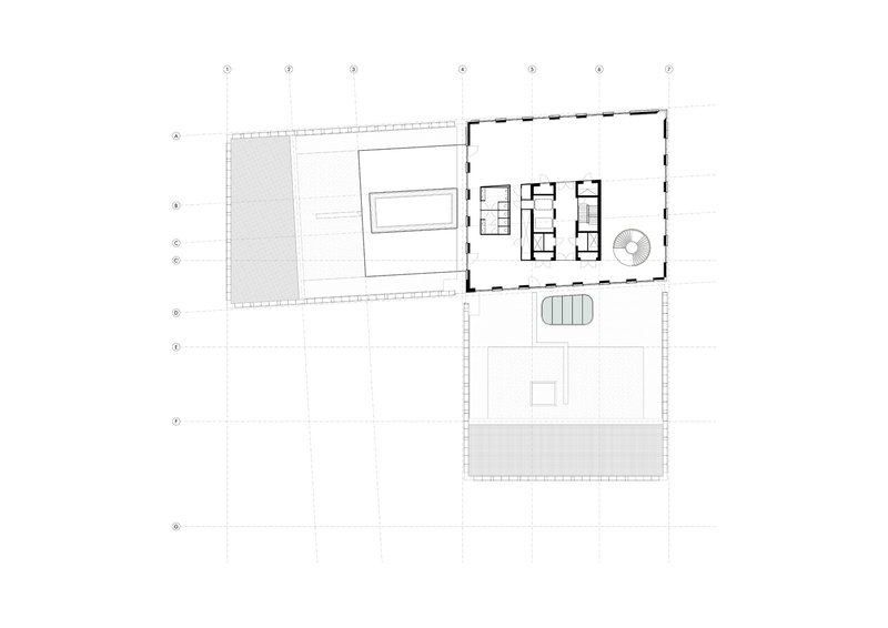
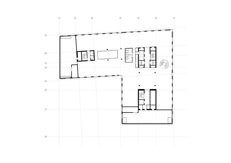
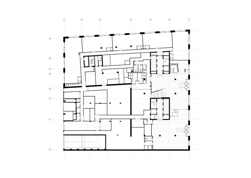
Functionality and Urban Integration
Hourglass exemplifies thoughtful urban planning, seamlessly blending public, residential, and commercial spaces to enrich the vibrant Zuidas district. Its L-shaped footprint opens onto a public square, inviting interaction and engagement. Active lobbies and commercial spaces face north and east, connecting with pedestrian traffic, while service areas are discreetly positioned to the west.

The integration of diverse functions within the building reflects a forward-thinking approach to urban design. Offices, long-stay apartments, and public spaces coexist harmoniously, contributing to the district's dynamic and multifunctional character. This integration aligns with the aspirations of the Knowledge Quarter, fostering collaboration and innovation.



Sustainability and Prefabrication
Sustainability lies at the core of the Hourglass Building's design. The use of prefabricated construction techniques not only ensured efficiency but also minimized waste during assembly. Custom-designed panels were precision-engineered for seamless integration, reducing construction time and environmental impact.


The building's design also emphasizes energy efficiency. The strategic arrangement of natural stone and glass optimizes insulation and lighting, creating an environmentally responsible architectural solution that balances aesthetics with performance.


Recognition and Awards
The Hourglass Building's innovative design and architectural excellence have earned it an Award of Excellence from the Council on Tall Buildings and Urban Habitat. This recognition highlights its fusion of artistic geometry, sustainable prefabrication, and meticulous attention to detail.


As an iconic addition to Amsterdam's skyline, the Hourglass Building sets a new standard for multifunctional high-rises. Its sculptural elegance, urban integration, and sustainable approach make it a symbol of timeless architecture and a testament to Dam & Partners Architecten's visionary design philosophy.


The Hourglass Building by Dam & Partners Architecten is a landmark of architectural sophistication and urban innovation. Its sculptural design, multifunctional program, and sustainable construction techniques redefine what a high-rise can achieve in a modern urban context. Standing as a beacon of Amsterdam's Zuidas district, the Hourglass embodies the intersection of art, functionality, and sustainability.


All Photographs are work of Sebastian van Damme
Popular Articles
Popular articles from the community
Alton Cliff House: A Harmonious Retreat by f2a Architecture in Lake Country, Canada
Alton Cliff House blends corten steel, prefabrication, and sustainable design, creating a luxurious, energy-efficient retreat perched on Canadian cliffs.
Fifth NRE Jazz Club – De Bever Architecten: Eindhoven’s Revitalized Cultural Hub
Historic gas factory transformed into Fifth NRE Jazz Club blending modern sustainability, jazz culture, dining, and heritage architecture seamlessly.
Free Architecture Competitions You Can Enter Right Now
No entry fees, real prizes. Here are the best free architecture competitions open for submissions in 2026.
Similar Reads
You might also enjoy these articles
The Ken Roberts Memorial Delineation Competition (Krob)
As the most senior architectural drawing competition currently in operation anywhere in the world, it draws hundreds of entries each year, awarding the very best submissions in a series of medium-based categories.
Waterfront Redevelopment and Urban Revitalization in Mumbai: Forging a New Dawn for Darukhana
A transformative waterfront redevelopment project reimagining Darukhana’s shipbreaking heritage into an inclusive urban future.
OUT-OF-MAP: A Call for Postcards on Feminist Narratives of Public Space
Rhizoma Design and Research Lab invites artists, designers, architects, researchers, and students to reflect on how feminist perspectives can reshape public space. Selected works will be exhibited in Barcelona, October 2026. Submissions open until 15 April 2026.
Documentation Work on Buddhist Wooden Temple
Architectural syncretism and cultural hybridity: A comparative study of the Buddhist temples in Chattogram Hill tracks
Explore Architecture Competitions
Discover active competitions in this discipline
The International Standard for Design Portfolios
The Global Benchmark for Architecture Dissertation Awards
The Global Benchmark for Graduation Excellence
Challenge to reimagine the Iron Throne
Comments (0)
Please login or sign up to add comments
No comments yet. Be the first to comment!